MORISAKA BASE 埼玉県 入間市 牛沢町9-3-2 入間市に車好きの為の大型ガレージハウス誕生!ガレージも敷地も広々していて使いやすい!!
宮寺ガレージハウス
防犯カメラ付き!人気の1LDK+Sタイプの物件 入間アウトレットパークにへアクセス良好!
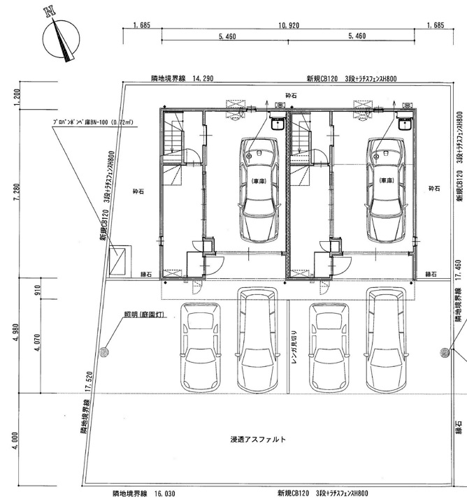
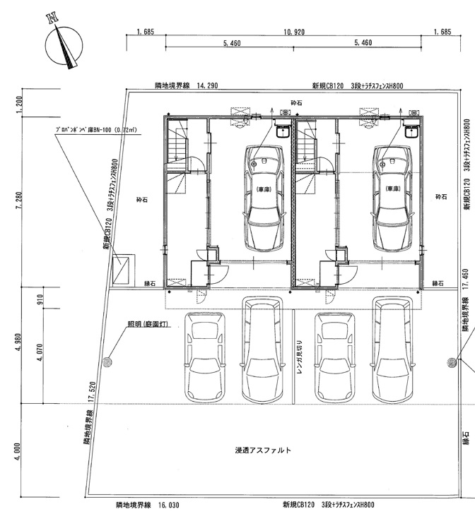
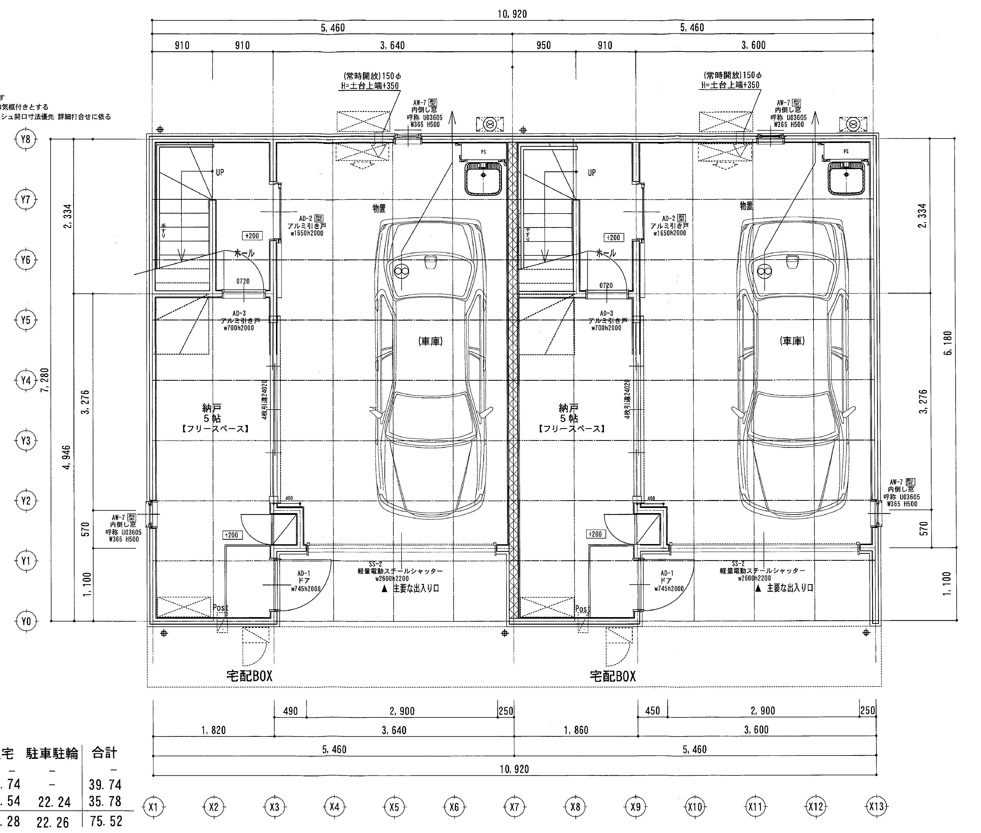
PLAN
見取り図
※画像をクリックすると拡大してご覧いただけます
SPEC
スペック
- 物件概要
-
・人気の1LDK+Sタイプの物件
・入間アウトレットパークにへアクセス良好 - 竣工日
- 2023年12月
- 交 通
・圏央道 入間IC 約7分
・三井アウトレットパーク入間 約6分- 設 備
-
ガレージ内設備
・防犯カメラ
・ シャッター/電動
・ 給水湯設備/有
・ 換気扇/人感センサー
・ 電気自動車充電用コンセント200V/有
・ テレビ用ジャック/有
・ 付け柱/有
・ 照明/レール式・人感センサー
・ エアコン設置/可
・ ガスコック/有
・ 車止め/有・非固定
住居設備
・ エアコン/1基(LDK)
・ 照明器具/有
・ ガス/プロパンガス
・ モニター付インターホン/有
・ 給湯器/有
・ 浴室/有
・ 洗面台/有
・ シャンプードレッサー/有 - 賃貸条件
- ※満室のため非表示
- その他
-
ペット不可
・間取りは参考図、現況優先
・事業用利用不可
MAP
地 図
ROOM
部屋一覧
入居予約をご希望の方は左の予約ボタンを押してください。専用のフォームへ移動します。
- ●:キャンセル待ちなし
- まだご予約が入っていないお部屋です。
- ▲:キャンセル待ちあり
- すでにご予約が入っているお部屋です (やむを得ない事情で入居辞退される方も一定数おられますので、ご入居できる可能性は十分にあります。)
| 入居予約 | No. | 間取り | 広さ | 駐車場 | 賃料 | その他 | 空き状況 | 入居可能日 |
|---|---|---|---|---|---|---|---|---|
| A号室 | 1LDK+S | ガレージ 幅 3.6m × 奥行 5.8m | ー | シャッター 幅 2.9m × 奥行 2.4m | 入居中 | |||
| B号室 | 1LDK+S | ガレージ 幅 3.6m × 奥行 5.8m | ー | シャッター 幅 2.9m × 奥行 2.4m | 入居中 |
| No. | A号室 |
|---|---|
| 間取り | 1LDK+S |
| 広さ | |
| 駐車場 | ガレージ 幅 3.6m × 奥行 5.8m |
| 賃料 | ー |
| その他 | シャッター 幅 2.9m × 奥行 2.4m |
| 空き状況 | 入居中 |
| 入居可能日 | |
| 入居予約 | |
| No. | B号室 |
| 間取り | 1LDK+S |
| 広さ | |
| 駐車場 | ガレージ 幅 3.6m × 奥行 5.8m |
| 賃料 | ー |
| その他 | シャッター 幅 2.9m × 奥行 2.4m |
| 空き状況 | 入居中 |
| 入居可能日 | |
| 入居予約 |
RECOMMEND
おすすめ物件
