MORISAKA BASE 埼玉県 入間市 牛沢町9-3-2 入間市に車好きの為の大型ガレージハウス誕生!ガレージも敷地も広々していて使いやすい!!
関越道、圏央道どちらも使える好立地! 人気の1LDKタイプ4世帯が狭山市に誕生!
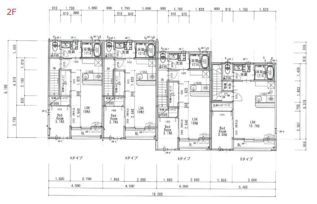
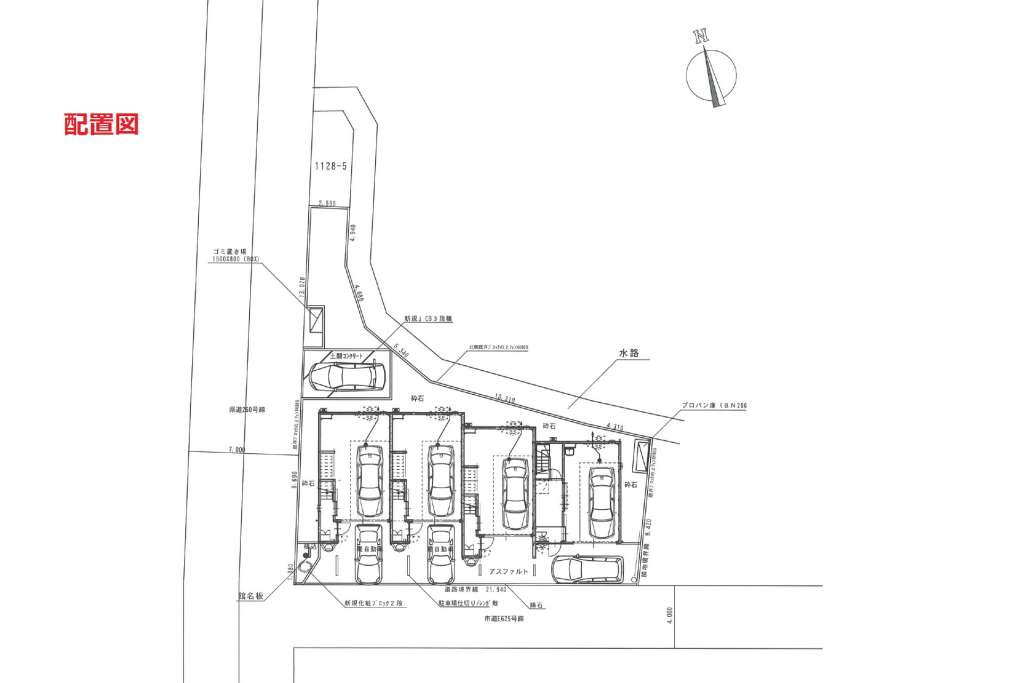
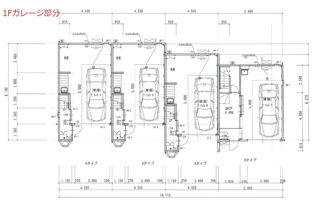
PLAN
見取り図
※画像をクリックすると拡大してご覧いただけます
SPEC
スペック
- 物件概要
-
■埼玉県狭山市柏原字本宿1128番3
■1棟4戸(1LDK4戸)
■2023年4月30日完成 - 竣工日
- 2023年4月
- 交 通
関越道川越ICより約13分
圏央道狭山日高IC約9分- 設 備
-
☆ガレージ内設備☆(予定)
リモコン式電動シャッター
給湯設備
レール式スポットライト+ダウンライト
センサー付き換気扇
収納棚取り付け可能
エアコン設置可
電気自動車対応
TV用ジャックあり - 賃貸条件
- 部屋一覧「賃料」に記載
- その他
-
ペット不可
・間取は参考図。現況優先。
・
・事業用利用不可
MAP
地 図
ROOM
部屋一覧
入居予約をご希望の方は左の予約ボタンを押してください。専用のフォームへ移動します。
- ●:キャンセル待ちなし
- まだご予約が入っていないお部屋です。
- ▲:キャンセル待ちあり
- すでにご予約が入っているお部屋です (やむを得ない事情で入居辞退される方も一定数おられますので、ご入居できる可能性は十分にあります。)
| 入居予約 | No. | 間取り | 広さ | 駐車場 | 賃料 | その他 | 空き状況 | 入居可能日 |
|---|---|---|---|---|---|---|---|---|
| A | 1LDK | 67.33㎡(ガレージ専有面積を含む) | ガレージ幅3.45m×奥行6.8m | ー | シャッター幅2.8m×高さ2.2m | 入居中 | ||
| B | 1LDK | 67.33㎡(ガレージ専有面積を含む) | ガレージ幅3.45m×奥行6.8m | ー | シャッター幅2.8m×高さ2.2m | 入居中 | ||
| C | 1LDK | 67.33㎡(ガレージ専有面積を含む) | ガレージ幅3.45m×奥行6.8m | ー | シャッター幅2.8m×高さ2.2m | 入居中 | ||
| 予約 | D | 1SLDK | 71.24㎡(ガレージ専有面積を含む) | ガレージ幅3.6m×奥行6.3m | 賃料:117,000円 共益費:賃料に込み |
シャッター幅2.8m×高さ2.2m | ▲ | 2025年12月31日~入居可 |
| No. | A |
|---|---|
| 間取り | 1LDK |
| 広さ | 67.33㎡(ガレージ専有面積を含む) |
| 駐車場 | ガレージ幅3.45m×奥行6.8m |
| 賃料 | ー |
| その他 | シャッター幅2.8m×高さ2.2m |
| 空き状況 | 入居中 |
| 入居可能日 | |
| 入居予約 | |
| No. | B |
| 間取り | 1LDK |
| 広さ | 67.33㎡(ガレージ専有面積を含む) |
| 駐車場 | ガレージ幅3.45m×奥行6.8m |
| 賃料 | ー |
| その他 | シャッター幅2.8m×高さ2.2m |
| 空き状況 | 入居中 |
| 入居可能日 | |
| 入居予約 | |
| No. | C |
| 間取り | 1LDK |
| 広さ | 67.33㎡(ガレージ専有面積を含む) |
| 駐車場 | ガレージ幅3.45m×奥行6.8m |
| 賃料 | ー |
| その他 | シャッター幅2.8m×高さ2.2m |
| 空き状況 | 入居中 |
| 入居可能日 | |
| 入居予約 | |
| No. | D |
| 間取り | 1SLDK |
| 広さ | 71.24㎡(ガレージ専有面積を含む) |
| 駐車場 | ガレージ幅3.6m×奥行6.3m |
| 賃料 |
賃料:117,000円 共益費:賃料に込み |
| その他 | シャッター幅2.8m×高さ2.2m |
| 空き状況 | ▲ |
| 入居可能日 | 2025年12月31日~入居可 |
| 入居予約 | 予約 |
RECOMMEND
おすすめ物件

