CARBINS 01 愛知県 尾張旭市 桜ヶ丘町西413番地 ガレージハウス7戸
国道1号、伊勢湾岸豊田南インターアクセス良好 !名鉄新安城駅まで徒歩8分(630m)交通至便!1階に洋室あり、車と一緒に生活を、 2階ロフト付き(4帖)!ガレージ両面シャッターにて出し入れ良好★
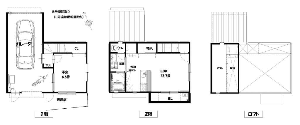
PLAN
見取り図
※画像をクリックすると拡大してご覧いただけます
SPEC
スペック
- 物件概要
-
■愛知県安城市今本町1丁目8-18
■ロフト付1LDK2戸/ロフト付1K2戸
■2017(平成29)年1月末完成
安城市の好立地!
4戸ともにロフト付きで便利。
1LDKタイプはガレージ横に6.6帖の洋室、2階に12.7帖のLDK、さらに専用庭付き! - 竣工日
- 2017年1月
- 交 通
・名鉄新安城駅まで徒歩8分(630m)交通至便
・国道1号線 車で約1分
・県道56号線(名古屋岡崎線)車で約5分- 設 備
-
☆ガレージ内設備は次の通り☆
リモコン式電動シャッター
給湯設備
レール式スポットライト
センサー付き換気扇
収納棚取り付け可能
エアコン設置可
電気自動車対応 - 賃貸条件
- 部屋一覧「賃料」に記載
- その他
- ペット不可
MAP
地 図
ROOM
部屋一覧
入居予約をご希望の方は左の予約ボタンを押してください。専用のフォームへ移動します。
- ●:キャンセル待ちなし
- まだご予約が入っていないお部屋です。
- ▲:キャンセル待ちあり
- すでにご予約が入っているお部屋です (やむを得ない事情で入居辞退される方も一定数おられますので、ご入居できる可能性は十分にあります。)
| 入居予約 | No. | 間取り | 広さ | 駐車場 | 賃料 | その他 | 空き状況 | 入居可能日 |
|---|---|---|---|---|---|---|---|---|
| A | ロフト付1K | 洋間10.0帖+ロフト約4.4帖 | ガレージ幅4.0m×奥行き7.28m(最大部分) | ー | 礼金80,000円 修理分担金120,000円 | 入居中 | ||
| B | ロフト付1LDK | LDK12.7帖+洋室6.6帖+ロフト4.0帖 | ガレージ幅3.3m×奥行き7.28m(最大部分)+2.25m×0.95m | ー | 入居中 | |||
| C | LDK12.7帖+洋室6.6帖+ロフト4.0帖 | ガレージ幅3.3m×奥行き7.28m(最大部分)+2.25m×0.95m | ー | 入居中 | ||||
| 予約 | D | ロフト付1K | 洋間10.0帖+ロフト約4.4帖 | ガレージ幅4.0m×奥行き7.28m(最大部分) | 賃料:80,000円 共益費:3,000円 |
礼金家賃1ヶ月。修理分担金家賃1.5ヶ月。 | ● | 2026年01月26日~入居可 |
| No. | A |
|---|---|
| 間取り | ロフト付1K |
| 広さ | 洋間10.0帖+ロフト約4.4帖 |
| 駐車場 | ガレージ幅4.0m×奥行き7.28m(最大部分) |
| 賃料 | ー |
| その他 | 礼金80,000円 修理分担金120,000円 |
| 空き状況 | 入居中 |
| 入居可能日 | |
| 入居予約 | |
| No. | B |
| 間取り | ロフト付1LDK |
| 広さ | LDK12.7帖+洋室6.6帖+ロフト4.0帖 |
| 駐車場 | ガレージ幅3.3m×奥行き7.28m(最大部分)+2.25m×0.95m |
| 賃料 | ー |
| その他 | |
| 空き状況 | 入居中 |
| 入居可能日 | |
| 入居予約 | |
| No. | C |
| 間取り | |
| 広さ | LDK12.7帖+洋室6.6帖+ロフト4.0帖 |
| 駐車場 | ガレージ幅3.3m×奥行き7.28m(最大部分)+2.25m×0.95m |
| 賃料 | ー |
| その他 | |
| 空き状況 | 入居中 |
| 入居可能日 | |
| 入居予約 | |
| No. | D |
| 間取り | ロフト付1K |
| 広さ | 洋間10.0帖+ロフト約4.4帖 |
| 駐車場 | ガレージ幅4.0m×奥行き7.28m(最大部分) |
| 賃料 |
賃料:80,000円 共益費:3,000円 |
| その他 | 礼金家賃1ヶ月。修理分担金家賃1.5ヶ月。 |
| 空き状況 | ● |
| 入居可能日 | 2026年01月26日~入居可 |
| 入居予約 | 予約 |
RECOMMEND
おすすめ物件

