MORISAKA BASE 埼玉県 入間市 牛沢町9-3-2 入間市に車好きの為の大型ガレージハウス誕生!ガレージも敷地も広々していて使いやすい!!
ガレージハウス藤木
埼玉県川越市新築!戸建て気分を味わえる貴重な物件!
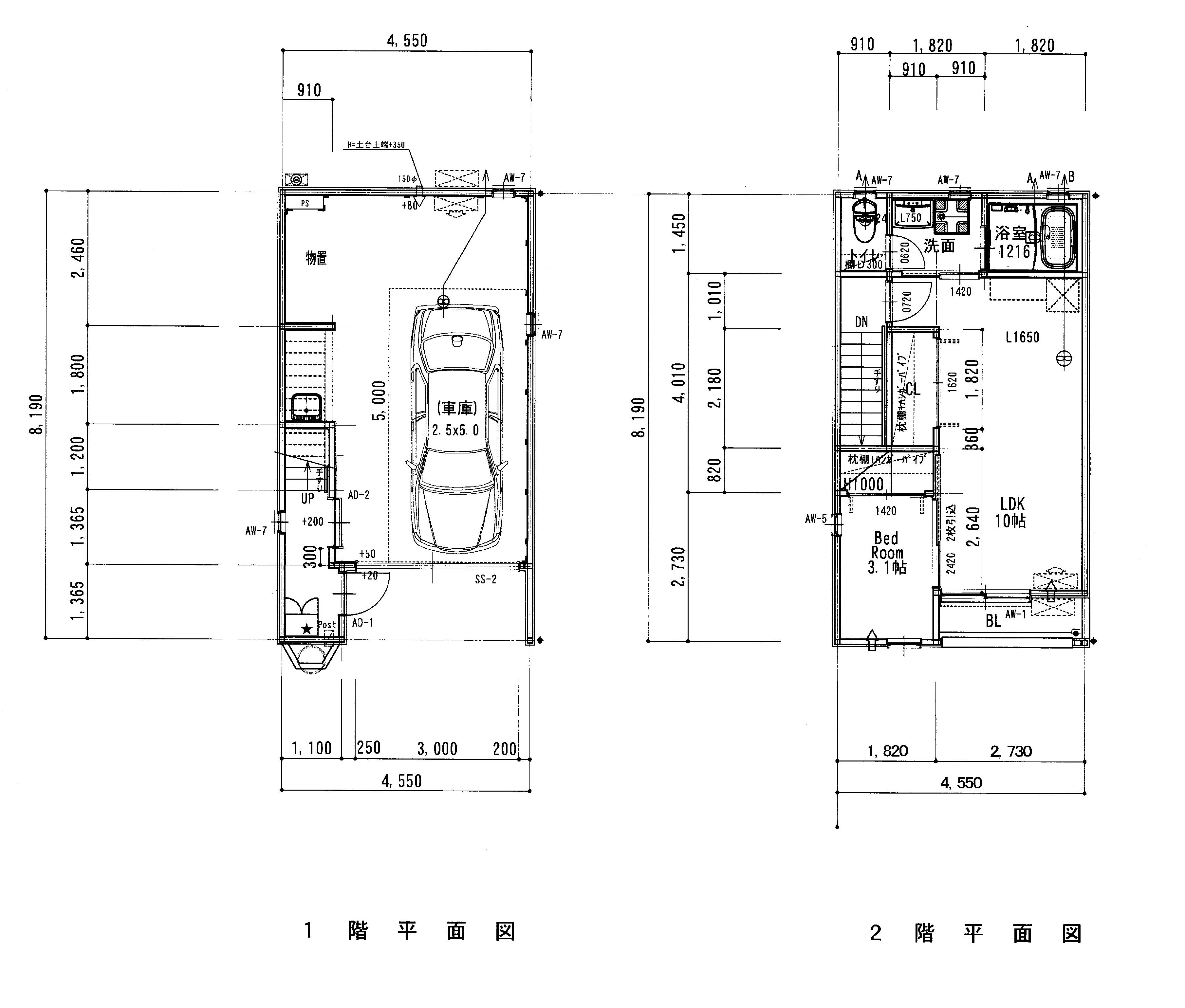
PLAN
見取り図
※画像をクリックすると拡大してご覧いただけます
SPEC
スペック
- 物件概要
-
●戸建てのガレージハウス
●戸建て気分を味わえる貴重な物件 - 竣工日
- 2023年8月
- 交 通
●ららぽーと富士見 車 11分
●関越道 川越インターチェンジ 車 20分- 設 備
-
◆ガレージ内設備
・ シャッター /電動
・ 給水湯設備 /有
・ 換気扇 /人感センサー
・ 電気自動車充電用コンセント200V /有
・ テレビ用ジャック /有
・ 付け柱 /有
・ 照明 /レール式・人感センサー
・ エアコン設置 /可
・ ガスコック /有
・ 車止め /有・非固定
◆住居設備
・ エアコン /1基(LDK)
・ 照明器具 /有
・ ガス /プロパンガス
・ モニター付インターホン /有
・ 給湯器 /有
・ 浴室 /有
・ 洗面台 /有
・ シャンプードレッサー /有 - 賃貸条件
- ※満室のため非表示
- その他
-
ペット不可
事業用利用不可
MAP
地 図
ROOM
部屋一覧
入居予約をご希望の方は左の予約ボタンを押してください。専用のフォームへ移動します。
- ●:キャンセル待ちなし
- まだご予約が入っていないお部屋です。
- ▲:キャンセル待ちあり
- すでにご予約が入っているお部屋です (やむを得ない事情で入居辞退される方も一定数おられますので、ご入居できる可能性は十分にあります。)
| 入居予約 | No. | 間取り | 広さ | 駐車場 | 賃料 | その他 | 空き状況 | 入居可能日 |
|---|---|---|---|---|---|---|---|---|
| 1 | 1LDK(LDK+1部屋) | ー | 入居中 |
| No. | 1 |
|---|---|
| 間取り | 1LDK(LDK+1部屋) |
| 広さ | |
| 駐車場 | |
| 賃料 | ー |
| その他 | |
| 空き状況 | 入居中 |
| 入居可能日 | |
| 入居予約 |
RECOMMEND
おすすめ物件
