MORISAKA BASE 埼玉県 入間市 牛沢町9-3-2 入間市に車好きの為の大型ガレージハウス誕生!ガレージも敷地も広々していて使いやすい!!
大塚Gハウス
川越インターまで1kmの好立地に戸建てタイプ登場!
PLAN
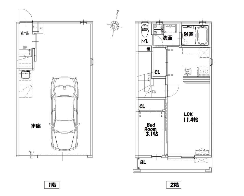
見取り図
※画像をクリックすると拡大してご覧いただけます
SPEC
スペック
- 物件概要
- 竣工日
- 2017年6月
- 交 通
- 関越自動車道 川越インター入口まで約1km
- 設 備
-
☆ガレージ内設備は次の通り☆
リモコン式電動シャッター
給湯設備
レール式スポットライト
センサー付き換気扇
収納棚取り付け可能
エアコン設置可
電気自動車対応 - 賃貸条件
- ※満室のため非表示
- その他
-
ペット不可
・シャッター前駐車スペースは横付けタイプ(小型自動車)
・スーパー(ベルク川越むさし野店)まで徒歩5分
MAP
地 図
ROOM
部屋一覧
入居予約をご希望の方は左の予約ボタンを押してください。専用のフォームへ移動します。
- ●:キャンセル待ちなし
- まだご予約が入っていないお部屋です。
- ▲:キャンセル待ちあり
- すでにご予約が入っているお部屋です (やむを得ない事情で入居辞退される方も一定数おられますので、ご入居できる可能性は十分にあります。)
| 入居予約 | No. | 間取り | 広さ | 駐車場 | 賃料 | その他 | 空き状況 | 入居可能日 |
|---|---|---|---|---|---|---|---|---|
| 1 | 1LDK | LDK11.4帖+Bed Room3.1帖 | ガレージ幅4.55m×奥行8.19m(最大部分) | ー | 入居中 |
| No. | 1 |
|---|---|
| 間取り | 1LDK |
| 広さ | LDK11.4帖+Bed Room3.1帖 |
| 駐車場 | ガレージ幅4.55m×奥行8.19m(最大部分) |
| 賃料 | ー |
| その他 | |
| 空き状況 | 入居中 |
| 入居可能日 | |
| 入居予約 |
RECOMMEND
おすすめ物件
