MORISAKA BASE 埼玉県 入間市 牛沢町9-3-2 入間市に車好きの為の大型ガレージハウス誕生!ガレージも敷地も広々していて使いやすい!!
ガレージハウスG-Base
越谷レイクタウンの人気物件!★
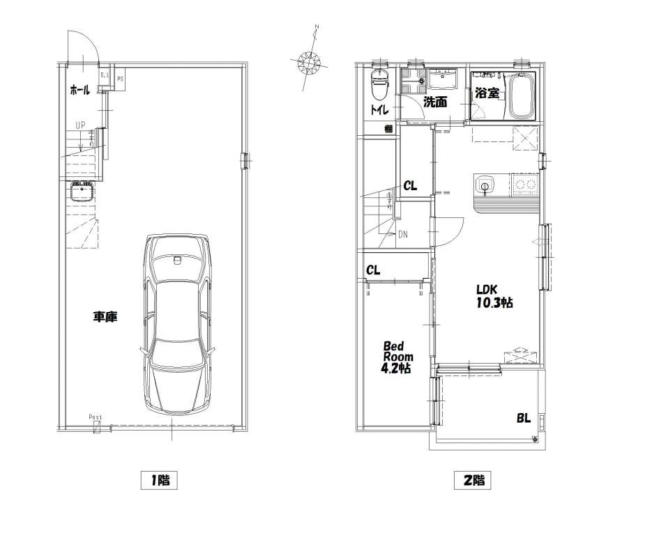
PLAN
見取り図
※画像をクリックすると拡大してご覧いただけます
SPEC
スペック
- 物件概要
-
■埼玉県越谷市レイクタウン6丁目20-1
■1LDK 6戸/ロフト付き1K 3戸
■2016年9月完成
埼玉県越谷市レイクタウンに新登場!レイクタウン駅南エリア。 - 竣工日
- 2016年9月
- 交 通
- 設 備
-
☆ガレージ内設備☆
リモコン式電動シャッター
給湯設備
レール式スポットライト
センサー付き換気扇
収納棚取り付け可能
エアコン設置可
電気自動車対応 - 賃貸条件
- ※満室のため非表示
- その他
-
ペット不可
屋外駐車場(シャッター前)各戸1台付!
各戸にガスファンヒーター付♪(ガレージにはガスコック完備)
入居者様無料でインターネット使い放題!
MAP
地 図
ROOM
部屋一覧
入居予約をご希望の方は左の予約ボタンを押してください。専用のフォームへ移動します。
- ●:キャンセル待ちなし
- まだご予約が入っていないお部屋です。
- ▲:キャンセル待ちあり
- すでにご予約が入っているお部屋です (やむを得ない事情で入居辞退される方も一定数おられますので、ご入居できる可能性は十分にあります。)
| 入居予約 | No. | 間取り | 広さ | 駐車場 | 賃料 | その他 | 空き状況 | 入居可能日 |
|---|---|---|---|---|---|---|---|---|
| A-1 | ロフト付1K | 洋室10.3帖+ロフト4.5帖 | ガレージ幅4.0m×奥行き7.28m(最大部分) | ー | リモコン式電動シャッター幅2.6m×高さ2.2m(現況優先) | 入居中 | ||
| A-2 | ロフト付1K | LDK10.3帖+ロフト4.5帖 | ガレージ幅4.0m×奥行き7.28m(最大部分) | ー | リモコン式電動シャッター幅2.6m×高さ2.2m(現況優先) | 入居中 | ||
| A-3 | ロフト付1K | LDK10.3帖+ロフト4.5帖 | ガレージ幅4.0m×奥行き7.28m(最大部分) | ー | リモコン式電動シャッター幅2.6m×高さ2.2m(現況優先) | 入居中 | ||
| A-4 | ロフト付1K | LDK10.3帖+ロフト4.5帖 | ガレージ幅4.0m×奥行き7.28m(最大部分) | ー | リモコン式電動シャッター幅2.6m×高さ2.2m(現況優先) | 入居中 | ||
| B-1 | 1LDK-1 | LDK11.4帖+洋室3.1帖 | ガレージ幅4.55m×奥行き8.19m(最大部分) | ー | リモコン式電動シャッター幅3.0m×高さ2.2m(現況優先) | 入居中 | ||
| B-2 | 1LDK-1 | LDK11.4帖+洋室3.1帖 | ガレージ幅4.55m×奥行き8.19m(最大部分) | ー | リモコン式電動シャッター幅3.0m×高さ2.2m(現況優先) | 入居中 | ||
| B-3 | 1LDK-1 | LDK11.4帖+洋室3.1帖 | ガレージ幅4.55m×奥行き8.19m(最大部分) | ー | リモコン式電動シャッター幅3.0m×高さ2.2m(現況優先) | 入居中 | ||
| C-1 | 1LDK-2 | LDK10.3帖+洋室4.2帖 | ガレージ幅4.55m×奥行き9.1m(最大部分) | ー | リモコン式電動シャッター幅3.0m×高さ2.2m(現況優先) | 入居中 | ||
| C-2 | 1LDK-2 | LDK10.3帖+洋室4.2帖 | ガレージ幅4.55m×奥行き9.1m(最大部分) | ー | リモコン式電動シャッター幅3.0m×高さ2.2m(現況優先) | 入居中 | ||
| C-3 | 1LDK-2 | LDK10.3帖+洋室4.2帖 | ガレージ幅4.55m×奥行き9.1m(最大部分) | ー | リモコン式電動シャッター幅3.0m×高さ2.2m(現況優先) | 入居中 |
| No. | A-1 |
|---|---|
| 間取り | ロフト付1K |
| 広さ | 洋室10.3帖+ロフト4.5帖 |
| 駐車場 | ガレージ幅4.0m×奥行き7.28m(最大部分) |
| 賃料 | ー |
| その他 | リモコン式電動シャッター幅2.6m×高さ2.2m(現況優先) |
| 空き状況 | 入居中 |
| 入居可能日 | |
| 入居予約 | |
| No. | A-2 |
| 間取り | ロフト付1K |
| 広さ | LDK10.3帖+ロフト4.5帖 |
| 駐車場 | ガレージ幅4.0m×奥行き7.28m(最大部分) |
| 賃料 | ー |
| その他 | リモコン式電動シャッター幅2.6m×高さ2.2m(現況優先) |
| 空き状況 | 入居中 |
| 入居可能日 | |
| 入居予約 | |
| No. | A-3 |
| 間取り | ロフト付1K |
| 広さ | LDK10.3帖+ロフト4.5帖 |
| 駐車場 | ガレージ幅4.0m×奥行き7.28m(最大部分) |
| 賃料 | ー |
| その他 | リモコン式電動シャッター幅2.6m×高さ2.2m(現況優先) |
| 空き状況 | 入居中 |
| 入居可能日 | |
| 入居予約 | |
| No. | A-4 |
| 間取り | ロフト付1K |
| 広さ | LDK10.3帖+ロフト4.5帖 |
| 駐車場 | ガレージ幅4.0m×奥行き7.28m(最大部分) |
| 賃料 | ー |
| その他 | リモコン式電動シャッター幅2.6m×高さ2.2m(現況優先) |
| 空き状況 | 入居中 |
| 入居可能日 | |
| 入居予約 | |
| No. | B-1 |
| 間取り | 1LDK-1 |
| 広さ | LDK11.4帖+洋室3.1帖 |
| 駐車場 | ガレージ幅4.55m×奥行き8.19m(最大部分) |
| 賃料 | ー |
| その他 | リモコン式電動シャッター幅3.0m×高さ2.2m(現況優先) |
| 空き状況 | 入居中 |
| 入居可能日 | |
| 入居予約 | |
| No. | B-2 |
| 間取り | 1LDK-1 |
| 広さ | LDK11.4帖+洋室3.1帖 |
| 駐車場 | ガレージ幅4.55m×奥行き8.19m(最大部分) |
| 賃料 | ー |
| その他 | リモコン式電動シャッター幅3.0m×高さ2.2m(現況優先) |
| 空き状況 | 入居中 |
| 入居可能日 | |
| 入居予約 | |
| No. | B-3 |
| 間取り | 1LDK-1 |
| 広さ | LDK11.4帖+洋室3.1帖 |
| 駐車場 | ガレージ幅4.55m×奥行き8.19m(最大部分) |
| 賃料 | ー |
| その他 | リモコン式電動シャッター幅3.0m×高さ2.2m(現況優先) |
| 空き状況 | 入居中 |
| 入居可能日 | |
| 入居予約 | |
| No. | C-1 |
| 間取り | 1LDK-2 |
| 広さ | LDK10.3帖+洋室4.2帖 |
| 駐車場 | ガレージ幅4.55m×奥行き9.1m(最大部分) |
| 賃料 | ー |
| その他 | リモコン式電動シャッター幅3.0m×高さ2.2m(現況優先) |
| 空き状況 | 入居中 |
| 入居可能日 | |
| 入居予約 | |
| No. | C-2 |
| 間取り | 1LDK-2 |
| 広さ | LDK10.3帖+洋室4.2帖 |
| 駐車場 | ガレージ幅4.55m×奥行き9.1m(最大部分) |
| 賃料 | ー |
| その他 | リモコン式電動シャッター幅3.0m×高さ2.2m(現況優先) |
| 空き状況 | 入居中 |
| 入居可能日 | |
| 入居予約 | |
| No. | C-3 |
| 間取り | 1LDK-2 |
| 広さ | LDK10.3帖+洋室4.2帖 |
| 駐車場 | ガレージ幅4.55m×奥行き9.1m(最大部分) |
| 賃料 | ー |
| その他 | リモコン式電動シャッター幅3.0m×高さ2.2m(現況優先) |
| 空き状況 | 入居中 |
| 入居可能日 | |
| 入居予約 |
RECOMMEND
おすすめ物件
