CARBINS 01 愛知県 尾張旭市 桜ヶ丘町西413番地 ガレージハウス7戸
SCUDERIA CARCLE
岐阜羽島駅すぐ!高速道路へのアクセスもバツグン!
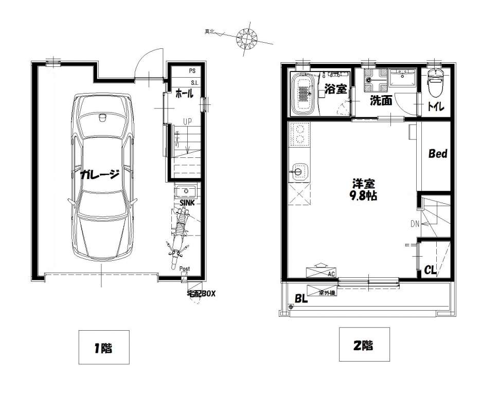
PLAN
見取り図
※画像をクリックすると拡大してご覧いただけます
SPEC
スペック
- 物件概要
- ■物件名 SCUDERIA CARCLE ■住 所 岐阜県羽島市舟橋町本町4丁目1-2 ■戸 数 4戸 ■間取り 1K+ロフト付1戸,1LDK+ロフト付3戸 ■完 成 2017(平成29)年6月完成
- 竣工日
- 2017年6月
- 交 通
- 新幹線岐阜羽島駅、名鉄新羽島駅 徒歩約6分 名神高速道路 岐阜羽島ICへ車で約4分 コンビニエンスストア 徒歩1分 南西へ50mほか近隣3件 スーパー・ホームセンター・ドラッグストア 北へ600mほか近隣2件コストコ岐阜羽島店 車で約5分 スターバックスコーヒー羽島店 車で約5分 ザ・ガーデンモールグルメタウン 車で約5分 軽自動車車検場 車で約5分 岐阜羽島オートオークション 車で約2分
- 設 備
- ・1LDK+ロフトタイプはガレージ内に車2台横並びで駐車が可能。 ・1K+ロフトタイプもシャッター外に1台置けるスペースを確保。 ・さらに敷地内に契約駐車場を1台ご用意。3台目の需要にも応え ます。(先着1枠) ・シャッターは木造建築として最大級の横幅4m10cmのリモコン式 電動ワイドシャッターを採用。 ・ガレージ内にもエアコン設置可。 ・100V電源コンセント2箇所に加え200V電源1箇所設置。電気自動 車にも対応。 ・ガレージ内にもお湯の出る手洗い場を用意。
- 賃貸条件
- ※満室のため非表示
- その他
- ペット不可
MAP
地 図
ROOM
部屋一覧
入居予約をご希望の方は左の予約ボタンを押してください。専用のフォームへ移動します。
- ●:キャンセル待ちなし
- まだご予約が入っていないお部屋です。
- ▲:キャンセル待ちあり
- すでにご予約が入っているお部屋です (やむを得ない事情で入居辞退される方も一定数おられますので、ご入居できる可能性は十分にあります。)
| 入居予約 | No. | 間取り | 広さ | 駐車場 | 賃料 | その他 | 空き状況 | 入居可能日 |
|---|---|---|---|---|---|---|---|---|
| 00 | 1LDK+ロフト(A) | LDK9.7帖+Bedroom3.5帖 | ガレージ内2台ガレージ幅5.8m×奥行5.8m(いずれも最大部分) | ー | シャッター幅4.1m×高さ2.2m | 入居中 | ||
| 01 | 1LDK+ロフト(A) | LDK9.7帖+Bedroom3.5帖 | ガレージ内2台ガレージ幅5.8m×奥行5.8m(いずれも最大部分) | ー | シャッター幅4.1m×高さ2.2m | 入居中 | ||
| 02 | 1LDK+ロフト(A) | LDK9.7帖+Bedroom3.5帖 | ガレージ内2台ガレージ幅5.8m×奥行5.8m(いずれも最大部分) | ー | シャッター幅4.1m×高さ2.2m | 入居中 | ||
| 03 | 1K+ロフト(B) | 洋室9.8帖+ロフトベッド | ガレージ内1台 ガレージ外1台ガレージ幅4.55m×奥行5.8m(いずれも最大部分) | ー | シャッター幅3.0m×高さ2.2m | 入居中 |
| No. | 00 |
|---|---|
| 間取り | 1LDK+ロフト(A) |
| 広さ | LDK9.7帖+Bedroom3.5帖 |
| 駐車場 | ガレージ内2台ガレージ幅5.8m×奥行5.8m(いずれも最大部分) |
| 賃料 | ー |
| その他 | シャッター幅4.1m×高さ2.2m |
| 空き状況 | 入居中 |
| 入居可能日 | |
| 入居予約 | |
| No. | 01 |
| 間取り | 1LDK+ロフト(A) |
| 広さ | LDK9.7帖+Bedroom3.5帖 |
| 駐車場 | ガレージ内2台ガレージ幅5.8m×奥行5.8m(いずれも最大部分) |
| 賃料 | ー |
| その他 | シャッター幅4.1m×高さ2.2m |
| 空き状況 | 入居中 |
| 入居可能日 | |
| 入居予約 | |
| No. | 02 |
| 間取り | 1LDK+ロフト(A) |
| 広さ | LDK9.7帖+Bedroom3.5帖 |
| 駐車場 | ガレージ内2台ガレージ幅5.8m×奥行5.8m(いずれも最大部分) |
| 賃料 | ー |
| その他 | シャッター幅4.1m×高さ2.2m |
| 空き状況 | 入居中 |
| 入居可能日 | |
| 入居予約 | |
| No. | 03 |
| 間取り | 1K+ロフト(B) |
| 広さ | 洋室9.8帖+ロフトベッド |
| 駐車場 | ガレージ内1台 ガレージ外1台ガレージ幅4.55m×奥行5.8m(いずれも最大部分) |
| 賃料 | ー |
| その他 | シャッター幅3.0m×高さ2.2m |
| 空き状況 | 入居中 |
| 入居可能日 | |
| 入居予約 |
RECOMMEND
おすすめ物件
