CARBINS 01 愛知県 尾張旭市 桜ヶ丘町西413番地 ガレージハウス7戸
ル・ボラン
名古屋市天白区に初登場!
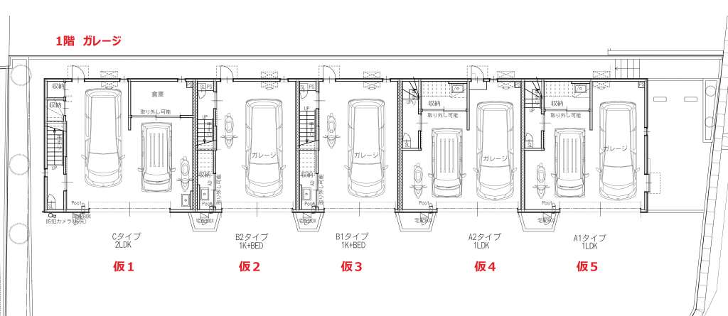
PLAN
見取り図
※画像をクリックすると拡大してご覧いただけます
SPEC
スペック
- 物件概要
-
■愛知県名古屋市天白区一つ山4丁目13番
■全5戸
(1K+BED2戸/1LDK2戸/2LDK1戸)
■2022年9月末完成
・天白区に初登場!
・1LDK、2LDKのガレージは車種により2台格納可能
・別途敷地内月極駐車場有り(1台分)・インターネット無料 - 竣工日
- 2022年9月
- 交 通
名二環「鳴海」ICから車で約6分
地下鉄桜通線「相生山」駅 徒歩17分- 設 備
-
☆ガレージ内設備☆
リモコン式電動シャッター
給湯設備
レール式スポットライト+ダウンライト
センサー付き換気扇
収納棚取り付け可能
エアコン設置可
電気自動車対応
TV用ジャックあり - 賃貸条件
- ※満室のため非表示
- その他
-
ペット不可
参考間取り・現況優先。
MAP
地 図
ROOM
部屋一覧
入居予約をご希望の方は左の予約ボタンを押してください。専用のフォームへ移動します。
- ●:キャンセル待ちなし
- まだご予約が入っていないお部屋です。
- ▲:キャンセル待ちあり
- すでにご予約が入っているお部屋です (やむを得ない事情で入居辞退される方も一定数おられますので、ご入居できる可能性は十分にあります。)
| 入居予約 | No. | 間取り | 広さ | 駐車場 | 賃料 | その他 | 空き状況 | 入居可能日 |
|---|---|---|---|---|---|---|---|---|
| A | 2LDK | LDK13.0帖+寝室2.8帖+洋室5.0帖 | ガレージ幅6.1m×奥行6.2m(最大部分) | ー | リモコン式電動シャッター幅3.9m×高さ2.2m | 入居中 | ||
| B | 1K+BED | LDK11.3帖 | ガレージ幅3.9m×奥行6.2m(最大部分) | ー | リモコン式電動シャッター幅3.4m×高さ2.3m | 入居中 | ||
| C | 1K+BED | LDK11.3帖 | ガレージ幅3.9m×奥行6.2m(最大部分) | ー | リモコン式電動シャッター幅3.4m×高さ2.5m | 入居中 | ||
| D | 1LDK | LDK10.7帖+洋室5.1帖 | ガレージ幅5.8m×奥行6.2m(最大部分) | ー | リモコン式電動シャッター幅3.9m×高さ2.3m | 入居中 | ||
| E | 1LDK | LDK10.7帖+洋室5.1帖 | ガレージ幅5.8m×奥行6.2m(最大部分) | ー | リモコン式電動シャッター幅3.9m×高さ2.5m | 入居中 |
| No. | A |
|---|---|
| 間取り | 2LDK |
| 広さ | LDK13.0帖+寝室2.8帖+洋室5.0帖 |
| 駐車場 | ガレージ幅6.1m×奥行6.2m(最大部分) |
| 賃料 | ー |
| その他 | リモコン式電動シャッター幅3.9m×高さ2.2m |
| 空き状況 | 入居中 |
| 入居可能日 | |
| 入居予約 | |
| No. | B |
| 間取り | 1K+BED |
| 広さ | LDK11.3帖 |
| 駐車場 | ガレージ幅3.9m×奥行6.2m(最大部分) |
| 賃料 | ー |
| その他 | リモコン式電動シャッター幅3.4m×高さ2.3m |
| 空き状況 | 入居中 |
| 入居可能日 | |
| 入居予約 | |
| No. | C |
| 間取り | 1K+BED |
| 広さ | LDK11.3帖 |
| 駐車場 | ガレージ幅3.9m×奥行6.2m(最大部分) |
| 賃料 | ー |
| その他 | リモコン式電動シャッター幅3.4m×高さ2.5m |
| 空き状況 | 入居中 |
| 入居可能日 | |
| 入居予約 | |
| No. | D |
| 間取り | 1LDK |
| 広さ | LDK10.7帖+洋室5.1帖 |
| 駐車場 | ガレージ幅5.8m×奥行6.2m(最大部分) |
| 賃料 | ー |
| その他 | リモコン式電動シャッター幅3.9m×高さ2.3m |
| 空き状況 | 入居中 |
| 入居可能日 | |
| 入居予約 | |
| No. | E |
| 間取り | 1LDK |
| 広さ | LDK10.7帖+洋室5.1帖 |
| 駐車場 | ガレージ幅5.8m×奥行6.2m(最大部分) |
| 賃料 | ー |
| その他 | リモコン式電動シャッター幅3.9m×高さ2.5m |
| 空き状況 | 入居中 |
| 入居可能日 | |
| 入居予約 |
RECOMMEND
おすすめ物件
