CARBINS 01 愛知県 尾張旭市 桜ヶ丘町西413番地 ガレージハウス7戸
ガレージタウンなかまち
愛知県岡崎市に新しく登場!国道1号線にも近く、高台で景観もOK!
PLAN
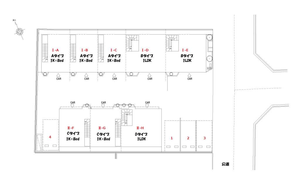
見取り図
※画像をクリックすると拡大してご覧いただけます
SPEC
スペック
- 物件概要
-
■愛知県岡崎市中町東丸根141
■1LDK3戸/ロフトベッド付1K5戸
■2017(平成29)年9月末完成
・両タイプとも間口広め!
・住環境バツグン
・東名高速道路へのアクセス便利
・高台にて景観良好
・宅配ボックス付きで便利! - 竣工日
- 2017年9月
- 交 通
・東名高速道路 岡崎IC 車で4分
・国道1号線 車で2分- 設 備
-
☆ガレージ内設備は次の通り☆
リモコン式電動シャッター
給湯設備
レール式スポットライト
センサー付き換気扇
収納棚取り付け可能
エアコン設置可
電気自動車対応 - 賃貸条件
- ※満室のため非表示
- その他
-
ペット不可
・コンビニ 徒歩8分
・スーパー2分
・ファーストフード 徒歩8分
*間取りは参考間取り。現況優先とします。
MAP
地 図
ROOM
部屋一覧
入居予約をご希望の方は左の予約ボタンを押してください。専用のフォームへ移動します。
- ●:キャンセル待ちなし
- まだご予約が入っていないお部屋です。
- ▲:キャンセル待ちあり
- すでにご予約が入っているお部屋です (やむを得ない事情で入居辞退される方も一定数おられますので、ご入居できる可能性は十分にあります。)
| 入居予約 | No. | 間取り | 広さ | 駐車場 | 賃料 | その他 | 空き状況 | 入居可能日 |
|---|---|---|---|---|---|---|---|---|
| Ⅰ-A | ロフトベッド付1K(A) | LDK10.1帖 | ガレージ幅4.4m×奥行5.9m(最大部分) | ー | シャッター幅3.0m×2.2m | 入居中 | ||
| Ⅰ-B | ロフトベッド付1K(A) | LDK10.1帖 | ガレージ幅4.4m×奥行5.9m(最大部分) | ー | シャッター幅3.0m×2.2m | 入居中 | ||
| Ⅰ-C | ロフトベッド付1K(A) | LDK10.1帖 | ガレージ幅4.4m×奥行5.9m(最大部分) | ー | シャッター幅3.0m×2.2m | 入居中 | ||
| Ⅰ-D | 1LDK(B) | LDK12.2帖+洋室3.6帖 | ガレージ幅6.4m×奥行5.9m(最大部分) | ー | シャッター幅3.75m×2.2m | 入居中 | ||
| Ⅰ-E | 1LDK(B) | LDK12.2帖+洋室3.6帖 | ガレージ幅6.4m×奥行5.9m(最大部分) | ー | シャッター幅3.75m×2.2m | 入居中 | ||
| Ⅱ-F | ロフトベッド付1K(C) | LDK8.5帖 | ガレージ幅4.9m×奥行5.9m(最大部分) | ー | シャッター幅3.3m×2.2m | 入居中 | ||
| Ⅱ-G | ロフトベッド付1K(C) | LDK8.5帖 | ガレージ幅4.9m×奥行5.9m(最大部分) | ー | シャッター幅3.3m×2.2m | 入居中 | ||
| Ⅱ-H | 1LDK(D) | LDK12.9帖+洋室3.2帖 | ガレージ幅6.4m×奥行5.9m(最大部分) | ー | シャッター幅3.6m×2.2m | 入居中 |
| No. | Ⅰ-A |
|---|---|
| 間取り | ロフトベッド付1K(A) |
| 広さ | LDK10.1帖 |
| 駐車場 | ガレージ幅4.4m×奥行5.9m(最大部分) |
| 賃料 | ー |
| その他 | シャッター幅3.0m×2.2m |
| 空き状況 | 入居中 |
| 入居可能日 | |
| 入居予約 | |
| No. | Ⅰ-B |
| 間取り | ロフトベッド付1K(A) |
| 広さ | LDK10.1帖 |
| 駐車場 | ガレージ幅4.4m×奥行5.9m(最大部分) |
| 賃料 | ー |
| その他 | シャッター幅3.0m×2.2m |
| 空き状況 | 入居中 |
| 入居可能日 | |
| 入居予約 | |
| No. | Ⅰ-C |
| 間取り | ロフトベッド付1K(A) |
| 広さ | LDK10.1帖 |
| 駐車場 | ガレージ幅4.4m×奥行5.9m(最大部分) |
| 賃料 | ー |
| その他 | シャッター幅3.0m×2.2m |
| 空き状況 | 入居中 |
| 入居可能日 | |
| 入居予約 | |
| No. | Ⅰ-D |
| 間取り | 1LDK(B) |
| 広さ | LDK12.2帖+洋室3.6帖 |
| 駐車場 | ガレージ幅6.4m×奥行5.9m(最大部分) |
| 賃料 | ー |
| その他 | シャッター幅3.75m×2.2m |
| 空き状況 | 入居中 |
| 入居可能日 | |
| 入居予約 | |
| No. | Ⅰ-E |
| 間取り | 1LDK(B) |
| 広さ | LDK12.2帖+洋室3.6帖 |
| 駐車場 | ガレージ幅6.4m×奥行5.9m(最大部分) |
| 賃料 | ー |
| その他 | シャッター幅3.75m×2.2m |
| 空き状況 | 入居中 |
| 入居可能日 | |
| 入居予約 | |
| No. | Ⅱ-F |
| 間取り | ロフトベッド付1K(C) |
| 広さ | LDK8.5帖 |
| 駐車場 | ガレージ幅4.9m×奥行5.9m(最大部分) |
| 賃料 | ー |
| その他 | シャッター幅3.3m×2.2m |
| 空き状況 | 入居中 |
| 入居可能日 | |
| 入居予約 | |
| No. | Ⅱ-G |
| 間取り | ロフトベッド付1K(C) |
| 広さ | LDK8.5帖 |
| 駐車場 | ガレージ幅4.9m×奥行5.9m(最大部分) |
| 賃料 | ー |
| その他 | シャッター幅3.3m×2.2m |
| 空き状況 | 入居中 |
| 入居可能日 | |
| 入居予約 | |
| No. | Ⅱ-H |
| 間取り | 1LDK(D) |
| 広さ | LDK12.9帖+洋室3.2帖 |
| 駐車場 | ガレージ幅6.4m×奥行5.9m(最大部分) |
| 賃料 | ー |
| その他 | シャッター幅3.6m×2.2m |
| 空き状況 | 入居中 |
| 入居可能日 | |
| 入居予約 |
RECOMMEND
おすすめ物件
