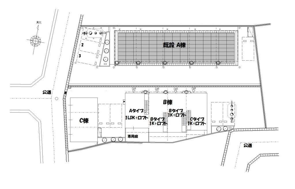
CARBINS 01 愛知県 尾張旭市 桜ヶ丘町西413番地 ガレージハウス7戸
アベーレグロスノボ
大人気の大留町に再登場!全室ロフト付き!
PLAN
見取り図
※画像をクリックすると拡大してご覧いただけます
SPEC
スペック
- 物件概要
-
■愛知県春日井市大留町7丁目2-8
■ロフト付1LDK1戸/ロフト付1K3戸
■2017(平成29)年9月末完成
全室ロフト付き、1LDKタイプは限定1戸。 - 竣工日
- 2017年9月
- 交 通
- JR神領駅 クルマ2分
東名高速道路 春日井IC クルマ7分 - 設 備
-
☆ガレージ内設備☆
リモコン式電動シャッター
給湯設備
レール式スポットライト
センサー付き換気扇
収納棚取り付け可能
エアコン設置可
電気自動車対応 - 賃貸条件
- ※満室のため非表示
- その他
-
ペット不可
コンビニ徒歩12分
MAP
地 図
ROOM
部屋一覧
入居予約をご希望の方は左の予約ボタンを押してください。専用のフォームへ移動します。
- ●:キャンセル待ちなし
- まだご予約が入っていないお部屋です。
- ▲:キャンセル待ちあり
- すでにご予約が入っているお部屋です (やむを得ない事情で入居辞退される方も一定数おられますので、ご入居できる可能性は十分にあります。)
| 入居予約 | No. | 間取り | 広さ | 駐車場 | 賃料 | その他 | 空き状況 | 入居可能日 |
|---|---|---|---|---|---|---|---|---|
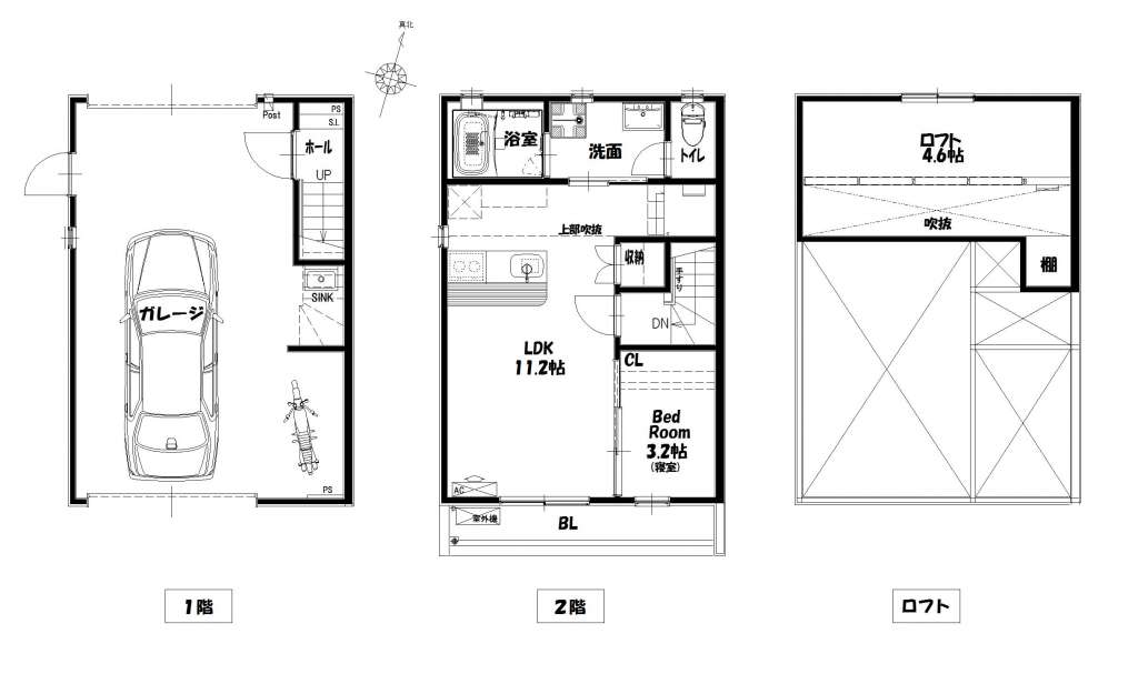
| A | ロフト付1LDK Aタイプ | LDK11.2帖+Bedroom3.2帖+ロフト4.6帖 | ガレージ幅4.9m×奥行7.2m(最大部分) | ー | シャッター幅3.1m×高さ2.1m | 入居中 | ||
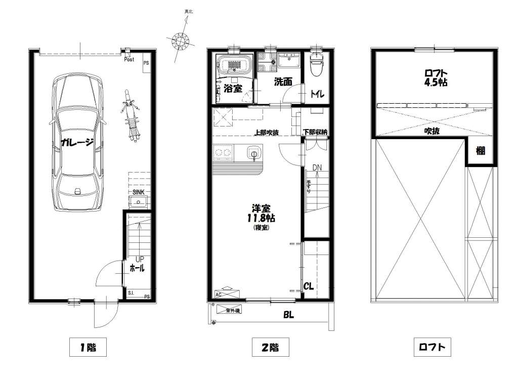
| B | ロフト付1K Bタイプ | LDK11.8帖+ロフト4.5帖 | ガレージ幅3.9m×奥行8.0m(最大部分) | ー | シャッター幅2.7m×高さ2.1m | 入居中 | ||
| C | ロフト付1K Bタイプ | LDK11.8帖+ロフト4.5帖 | ガレージ幅3.9m×奥行8.0m(最大部分) | ー | シャッター幅2.7m×高さ2.1m | 入居中 | ||
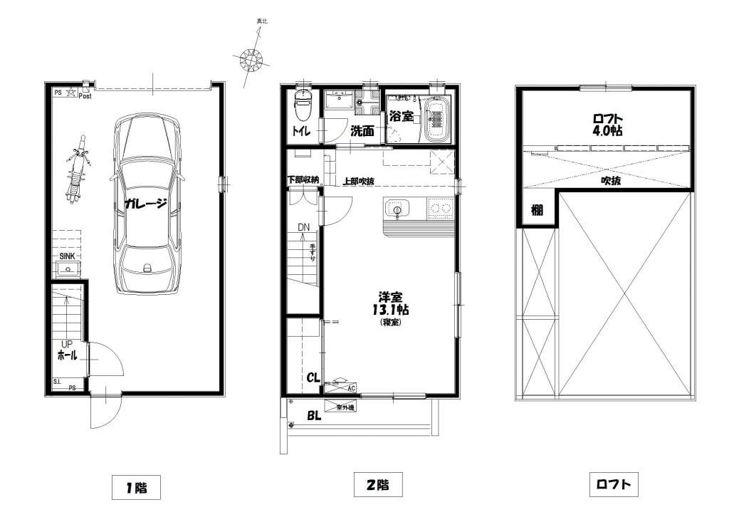
| D | ロフト付1K Cタイプ | LDK13.1帖+ロフト4帖 | ガレージ幅4.2m×奥行7.7m(最大部分) | ー | シャッター幅3.0m×高さ2.1m | 入居中 |
| No. | A |
|---|---|
| 間取り | ロフト付1LDK Aタイプ |
| 広さ | LDK11.2帖+Bedroom3.2帖+ロフト4.6帖 |
| 駐車場 | ガレージ幅4.9m×奥行7.2m(最大部分) |
| 賃料 | ー |
| その他 | シャッター幅3.1m×高さ2.1m |
| 空き状況 | 入居中 |
| 入居可能日 | |
| 入居予約 | |
| No. | B |
| 間取り | ロフト付1K Bタイプ |
| 広さ | LDK11.8帖+ロフト4.5帖 |
| 駐車場 | ガレージ幅3.9m×奥行8.0m(最大部分) |
| 賃料 | ー |
| その他 | シャッター幅2.7m×高さ2.1m |
| 空き状況 | 入居中 |
| 入居可能日 | |
| 入居予約 | |
| No. | C |
| 間取り | ロフト付1K Bタイプ |
| 広さ | LDK11.8帖+ロフト4.5帖 |
| 駐車場 | ガレージ幅3.9m×奥行8.0m(最大部分) |
| 賃料 | ー |
| その他 | シャッター幅2.7m×高さ2.1m |
| 空き状況 | 入居中 |
| 入居可能日 | |
| 入居予約 | |
| No. | D |
| 間取り | ロフト付1K Cタイプ |
| 広さ | LDK13.1帖+ロフト4帖 |
| 駐車場 | ガレージ幅4.2m×奥行7.7m(最大部分) |
| 賃料 | ー |
| その他 | シャッター幅3.0m×高さ2.1m |
| 空き状況 | 入居中 |
| 入居可能日 | |
| 入居予約 |
RECOMMEND
おすすめ物件
