CARBINS 01 愛知県 尾張旭市 桜ヶ丘町西413番地 ガレージハウス7戸
ウィズダムM
岡崎南部エリア!3タイプのバリエーション!
PLAN
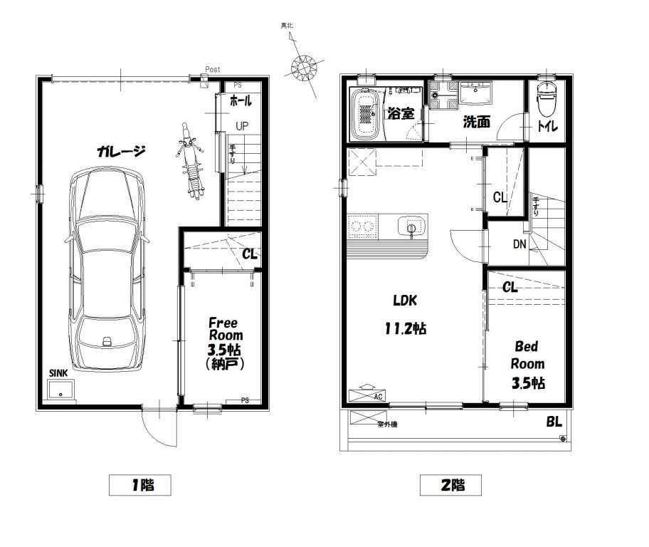
見取り図
※画像をクリックすると拡大してご覧いただけます
SPEC
スペック
- 物件概要
-
■愛知県岡崎市明大寺町兎ヶ入5-71
■ロフトベッド付1K・1LDK・2LDK 各1戸
■2018(H30)年3月完成
岡崎南部エリアに登場!
国道248号線近く(車で約1分)
イオンモール岡崎店まで徒歩約10分 - 竣工日
- 2018年3月
- 交 通
JR岡崎駅まで車で約10分
名鉄名古屋本線 東岡崎駅まで車で約11分
東名高速道路岡崎ICまで車で約16分- 設 備
-
☆ガレージ内設備は次の通り☆
リモコン式電動シャッター
給湯設備
レール式スポットライト
センサー付き換気扇
収納棚取り付け可能
エアコン設置可
電気自動車対応 - 賃貸条件
- ※満室のため非表示
- その他
-
ペット不可
間取り図は参考間取り。現況優先とします。
MAP
地 図
ROOM
部屋一覧
入居予約をご希望の方は左の予約ボタンを押してください。専用のフォームへ移動します。
- ●:キャンセル待ちなし
- まだご予約が入っていないお部屋です。
- ▲:キャンセル待ちあり
- すでにご予約が入っているお部屋です (やむを得ない事情で入居辞退される方も一定数おられますので、ご入居できる可能性は十分にあります。)
| 入居予約 | No. | 間取り | 広さ | 駐車場 | 賃料 | その他 | 空き状況 | 入居可能日 |
|---|---|---|---|---|---|---|---|---|
| 1号室 | 1LDK | LDK9.7帖+洋室3.3帖 | ガレージ幅4.55m×奥行7.28m(最大部分) | ー | シャッター幅3.0m×高さ2.25m | 入居中 | ||
| 2号室 | ロフトベッド付1K | LDK10.9帖 | ガレージ幅4.2m×奥行7.28m(最大部分) | ー | シャッター幅2.7m×高さ2.25m | 入居中 | ||
| 3号室 | 2LDK | LDK11.2帖+洋室3.5帖+洋室3.5帖 | ガレージ幅5.0m×奥行7.28m(最大部分) | ー | シャッター幅3.0m×高さ2.25m | 入居中 |
| No. | 1号室 |
|---|---|
| 間取り | 1LDK |
| 広さ | LDK9.7帖+洋室3.3帖 |
| 駐車場 | ガレージ幅4.55m×奥行7.28m(最大部分) |
| 賃料 | ー |
| その他 | シャッター幅3.0m×高さ2.25m |
| 空き状況 | 入居中 |
| 入居可能日 | |
| 入居予約 | |
| No. | 2号室 |
| 間取り | ロフトベッド付1K |
| 広さ | LDK10.9帖 |
| 駐車場 | ガレージ幅4.2m×奥行7.28m(最大部分) |
| 賃料 | ー |
| その他 | シャッター幅2.7m×高さ2.25m |
| 空き状況 | 入居中 |
| 入居可能日 | |
| 入居予約 | |
| No. | 3号室 |
| 間取り | 2LDK |
| 広さ | LDK11.2帖+洋室3.5帖+洋室3.5帖 |
| 駐車場 | ガレージ幅5.0m×奥行7.28m(最大部分) |
| 賃料 | ー |
| その他 | シャッター幅3.0m×高さ2.25m |
| 空き状況 | 入居中 |
| 入居可能日 | |
| 入居予約 |
RECOMMEND
おすすめ物件
