CARBINS 01 愛知県 尾張旭市 桜ヶ丘町西413番地 ガレージハウス7戸
アルセラ ディペンダ
名古屋市内・人気エリアに新登場!
PLAN
見取り図
※画像をクリックすると拡大してご覧いただけます
SPEC
スペック
- 物件概要
-
■愛知県名古屋市昭和区御器所2丁目407-1
■1LDK1戸&ロフトベッド付1K5戸
■2018(H30)年4月末完成
・名古屋市昭和区御器所に新登場!
・地下鉄駅まで徒歩10分圏内の好立地
・屋外駐車場2台付きの部屋あり。ガレージ内をフリースペースとして利用OK!
・コンビニ徒歩4分 - 竣工日
- 2018年4月
- 交 通
- ・地下鉄鶴舞線 荒畑駅 徒歩9分
・名古屋高速 吹上入口 車3分 - 設 備
-
☆ガレージ内設備は次の通り☆
リモコン式電動シャッター
給水給湯設備
レール式スポットライト(人感センサー付)
センサー付き換気扇
収納棚取り付け可能
エアコン設置可
電気自動車充電用コンセント(200V) - 賃貸条件
- ※満室のため非表示
- その他
- ペット不可
MAP
地 図
ROOM
部屋一覧
入居予約をご希望の方は左の予約ボタンを押してください。専用のフォームへ移動します。
- ●:キャンセル待ちなし
- まだご予約が入っていないお部屋です。
- ▲:キャンセル待ちあり
- すでにご予約が入っているお部屋です (やむを得ない事情で入居辞退される方も一定数おられますので、ご入居できる可能性は十分にあります。)
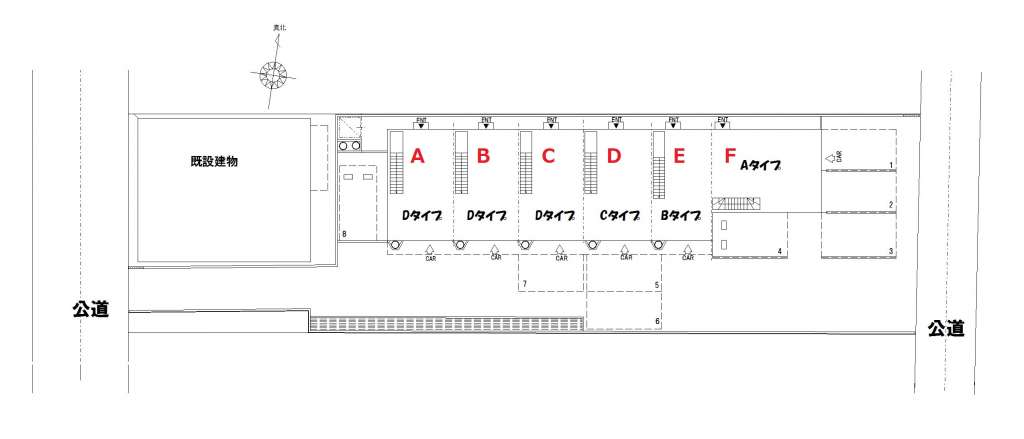
| 入居予約 | No. | 間取り | 広さ | 駐車場 | 賃料 | その他 | 空き状況 | 入居可能日 |
|---|---|---|---|---|---|---|---|---|
| A | ロフトベッド付1K(D) | LDK12.1帖+ロフトベッド | ガレージ幅4.2m×奥行7.2m(最大部分) | ー | シャッター幅2.9m×高さ2.1m | 入居中 | ||
| B | ロフトベッド付1K(D) | LDK12.1帖+ロフトベッド | ガレージ幅4.2m×奥行7.2m(最大部分) | ー | シャッター幅2.9m×高さ2.1m | 入居中 | ||
| C | ロフトベッド付1K(D) | LDK12.1帖+ロフトベッド | ガレージ幅4.2m×奥行7.2m(最大部分) | ー | シャッター幅2.9m×高さ2.1m、屋外P1台付き | 入居中 | ||
| D | ロフトベッド付1K(C) | LDK12.8帖+ロフトベッド | 倉庫部分 幅4.4m×奥行7.2m(最大部分) | ー | シャッター幅4.4m×高さ2.1m、屋外P2台付き | 入居中 | ||
| E | ロフトベッド付1K(B) | LDK10.3帖+ロフトベッド | 倉庫部分 幅3.9m×奥行7.2m(最大部分) | ー | シャッター幅2.7m×高さ2.1m、屋外P2台付き | 入居中 | ||
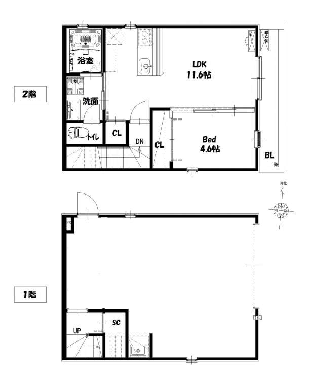
| F | 1LDK(A) | LDK11.6帖+BedRoom4.6帖 | 倉庫部分 幅5.3m×奥行7.2m(最大部分) | ー | シャッター幅3.5m×高さ2.1m、屋外P2台付き | 入居中 |
| No. | A |
|---|---|
| 間取り | ロフトベッド付1K(D) |
| 広さ | LDK12.1帖+ロフトベッド |
| 駐車場 | ガレージ幅4.2m×奥行7.2m(最大部分) |
| 賃料 | ー |
| その他 | シャッター幅2.9m×高さ2.1m |
| 空き状況 | 入居中 |
| 入居可能日 | |
| 入居予約 | |
| No. | B |
| 間取り | ロフトベッド付1K(D) |
| 広さ | LDK12.1帖+ロフトベッド |
| 駐車場 | ガレージ幅4.2m×奥行7.2m(最大部分) |
| 賃料 | ー |
| その他 | シャッター幅2.9m×高さ2.1m |
| 空き状況 | 入居中 |
| 入居可能日 | |
| 入居予約 | |
| No. | C |
| 間取り | ロフトベッド付1K(D) |
| 広さ | LDK12.1帖+ロフトベッド |
| 駐車場 | ガレージ幅4.2m×奥行7.2m(最大部分) |
| 賃料 | ー |
| その他 | シャッター幅2.9m×高さ2.1m、屋外P1台付き |
| 空き状況 | 入居中 |
| 入居可能日 | |
| 入居予約 | |
| No. | D |
| 間取り | ロフトベッド付1K(C) |
| 広さ | LDK12.8帖+ロフトベッド |
| 駐車場 | 倉庫部分 幅4.4m×奥行7.2m(最大部分) |
| 賃料 | ー |
| その他 | シャッター幅4.4m×高さ2.1m、屋外P2台付き |
| 空き状況 | 入居中 |
| 入居可能日 | |
| 入居予約 | |
| No. | E |
| 間取り | ロフトベッド付1K(B) |
| 広さ | LDK10.3帖+ロフトベッド |
| 駐車場 | 倉庫部分 幅3.9m×奥行7.2m(最大部分) |
| 賃料 | ー |
| その他 | シャッター幅2.7m×高さ2.1m、屋外P2台付き |
| 空き状況 | 入居中 |
| 入居可能日 | |
| 入居予約 | |
| No. | F |
| 間取り | 1LDK(A) |
| 広さ | LDK11.6帖+BedRoom4.6帖 |
| 駐車場 | 倉庫部分 幅5.3m×奥行7.2m(最大部分) |
| 賃料 | ー |
| その他 | シャッター幅3.5m×高さ2.1m、屋外P2台付き |
| 空き状況 | 入居中 |
| 入居可能日 | |
| 入居予約 |
RECOMMEND
おすすめ物件
