CARBINS 01 愛知県 尾張旭市 桜ヶ丘町西413番地 ガレージハウス7戸
ルーセント東茶屋
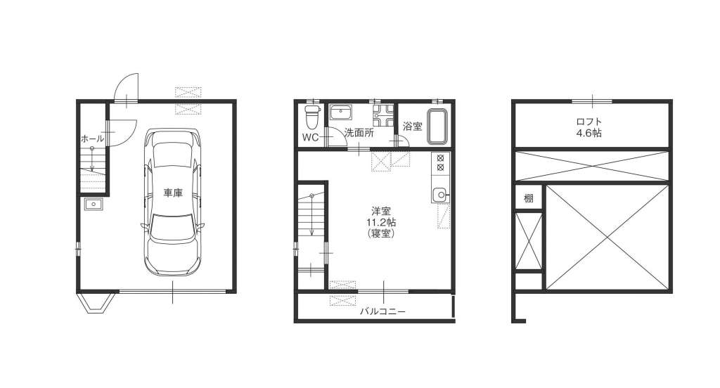
デッドストックの4.6帖ロフトあり! ガレージ間口が4.9mと広め★ 名二環南陽インター自動車2分!伊勢湾岸道そのままアクセス 名四国道自動車10分!イオンモール直ぐ!
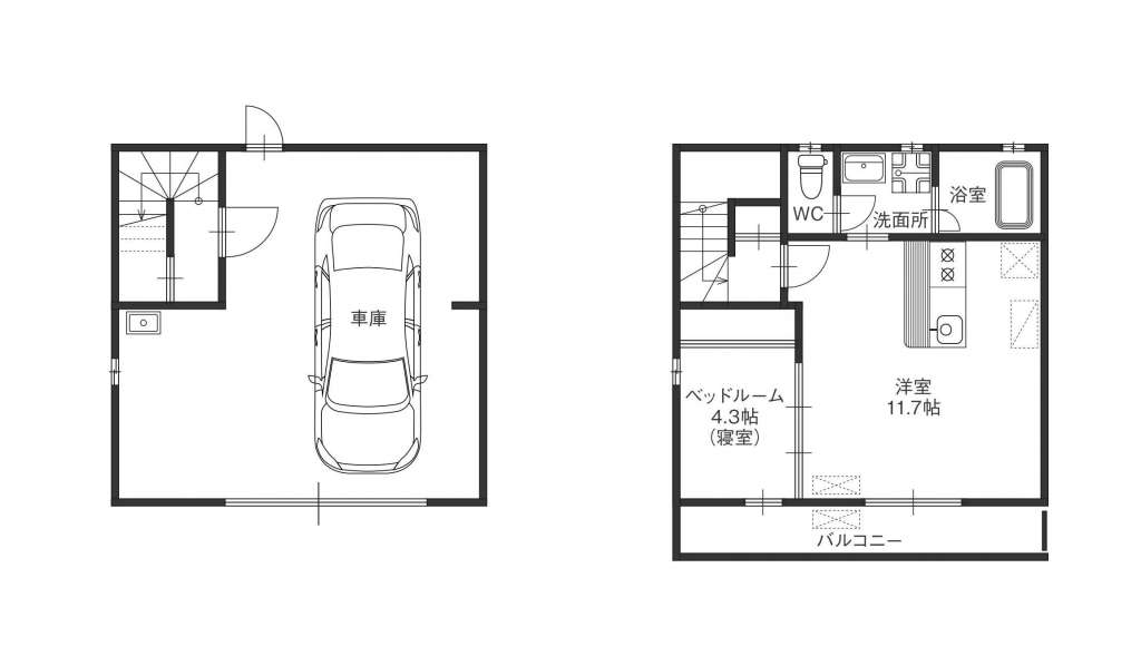
PLAN
見取り図
※画像をクリックすると拡大してご覧いただけます
SPEC
スペック
- 物件概要
-
■愛知県名古屋市港区東茶屋2丁目238
■1LDK4戸/ロフト付き1K4戸
■2018(H30)年4月末完成
名古屋市港区に初登場!
大型商業施設近く!
1LDKタイプは、南側ガレージ前駐車場2台付き。 - 竣工日
- 2018年4月
- 交 通
- 名四国道(23号線)10分
伊勢湾岸道路 飛島IC車15分
名古屋環状2号線南部Ⅱ開通後 南陽IC 車2分 - 設 備
-
☆ガレージ内設備は次の通り☆
リモコン式電動シャッター
給湯設備
レール式スポットライト
センサー付き換気扇
収納棚取り付け可能
エアコン設置可
電気自動車対応 - 賃貸条件
- ※満室のため非表示
- その他
- ペット不可
MAP
地 図
ROOM
部屋一覧
入居予約をご希望の方は左の予約ボタンを押してください。専用のフォームへ移動します。
- ●:キャンセル待ちなし
- まだご予約が入っていないお部屋です。
- ▲:キャンセル待ちあり
- すでにご予約が入っているお部屋です (やむを得ない事情で入居辞退される方も一定数おられますので、ご入居できる可能性は十分にあります。)
| 入居予約 | No. | 間取り | 広さ | 駐車場 | 賃料 | その他 | 空き状況 | 入居可能日 |
|---|---|---|---|---|---|---|---|---|
| A-1 | ロフト付1K | LDK11.2帖+ロフト4.6帖 | ガレージ幅4.9m×奥行5.9m(最大部分) | ー | シャッター幅3.4m×高さ2.1m | 入居中 | ||
| A-2 | ロフト付1K | LDK11.2帖+ロフト4.6帖 | ガレージ幅4.9m×奥行5.9m(最大部分) | ー | シャッター幅3.4m×高さ2.1m | 入居中 | ||
| A-3 | ロフト付1K | LDK11.2帖+ロフト4.6帖 | ガレージ幅4.9m×奥行5.9m(最大部分) | ー | シャッター幅3.4m×高さ2.1m | 入居中 | ||
| A-5 | ロフト付1K | LDK11.2帖+ロフト4.6帖 | ガレージ幅4.9m×奥行5.9m(最大部分) | ー | シャッター幅3.4m×高さ2.1m | 入居中 | ||
| B-1 | 1LDK | LDK11.7帖+洋室4.3帖 | ガレージ幅6.2m×奥行5.9m(最大部分) | ー | シャッター幅2.7m×高さ2.1m | 入居中 | ||
| B-2 | 1LDK | LDK11.7帖+洋室4.3帖 | ガレージ幅6.2m×奥行5.9m(最大部分) | ー | シャッター幅2.7m×高さ2.1m | 入居中 | ||
| B-3 | 1LDK | LDK11.7帖+洋室4.3帖 | ガレージ幅6.2m×奥行5.9m(最大部分) | ー | シャッター幅2.7m×高さ2.1m | 入居中 | ||
| B-5 | 1LDK | LDK11.7帖+洋室4.3帖 | ガレージ幅6.2m×奥行5.9m(最大部分) | ー | シャッター幅2.7m×高さ2.1m | 入居中 |
| No. | A-1 |
|---|---|
| 間取り | ロフト付1K |
| 広さ | LDK11.2帖+ロフト4.6帖 |
| 駐車場 | ガレージ幅4.9m×奥行5.9m(最大部分) |
| 賃料 | ー |
| その他 | シャッター幅3.4m×高さ2.1m |
| 空き状況 | 入居中 |
| 入居可能日 | |
| 入居予約 | |
| No. | A-2 |
| 間取り | ロフト付1K |
| 広さ | LDK11.2帖+ロフト4.6帖 |
| 駐車場 | ガレージ幅4.9m×奥行5.9m(最大部分) |
| 賃料 | ー |
| その他 | シャッター幅3.4m×高さ2.1m |
| 空き状況 | 入居中 |
| 入居可能日 | |
| 入居予約 | |
| No. | A-3 |
| 間取り | ロフト付1K |
| 広さ | LDK11.2帖+ロフト4.6帖 |
| 駐車場 | ガレージ幅4.9m×奥行5.9m(最大部分) |
| 賃料 | ー |
| その他 | シャッター幅3.4m×高さ2.1m |
| 空き状況 | 入居中 |
| 入居可能日 | |
| 入居予約 | |
| No. | A-5 |
| 間取り | ロフト付1K |
| 広さ | LDK11.2帖+ロフト4.6帖 |
| 駐車場 | ガレージ幅4.9m×奥行5.9m(最大部分) |
| 賃料 | ー |
| その他 | シャッター幅3.4m×高さ2.1m |
| 空き状況 | 入居中 |
| 入居可能日 | |
| 入居予約 | |
| No. | B-1 |
| 間取り | 1LDK |
| 広さ | LDK11.7帖+洋室4.3帖 |
| 駐車場 | ガレージ幅6.2m×奥行5.9m(最大部分) |
| 賃料 | ー |
| その他 | シャッター幅2.7m×高さ2.1m |
| 空き状況 | 入居中 |
| 入居可能日 | |
| 入居予約 | |
| No. | B-2 |
| 間取り | 1LDK |
| 広さ | LDK11.7帖+洋室4.3帖 |
| 駐車場 | ガレージ幅6.2m×奥行5.9m(最大部分) |
| 賃料 | ー |
| その他 | シャッター幅2.7m×高さ2.1m |
| 空き状況 | 入居中 |
| 入居可能日 | |
| 入居予約 | |
| No. | B-3 |
| 間取り | 1LDK |
| 広さ | LDK11.7帖+洋室4.3帖 |
| 駐車場 | ガレージ幅6.2m×奥行5.9m(最大部分) |
| 賃料 | ー |
| その他 | シャッター幅2.7m×高さ2.1m |
| 空き状況 | 入居中 |
| 入居可能日 | |
| 入居予約 | |
| No. | B-5 |
| 間取り | 1LDK |
| 広さ | LDK11.7帖+洋室4.3帖 |
| 駐車場 | ガレージ幅6.2m×奥行5.9m(最大部分) |
| 賃料 | ー |
| その他 | シャッター幅2.7m×高さ2.1m |
| 空き状況 | 入居中 |
| 入居可能日 | |
| 入居予約 |
RECOMMEND
おすすめ物件
