CARBINS 01 愛知県 尾張旭市 桜ヶ丘町西413番地 ガレージハウス7戸
FUKUOKA BASE(フクオカベース)
各部屋専用庭付きの好物件
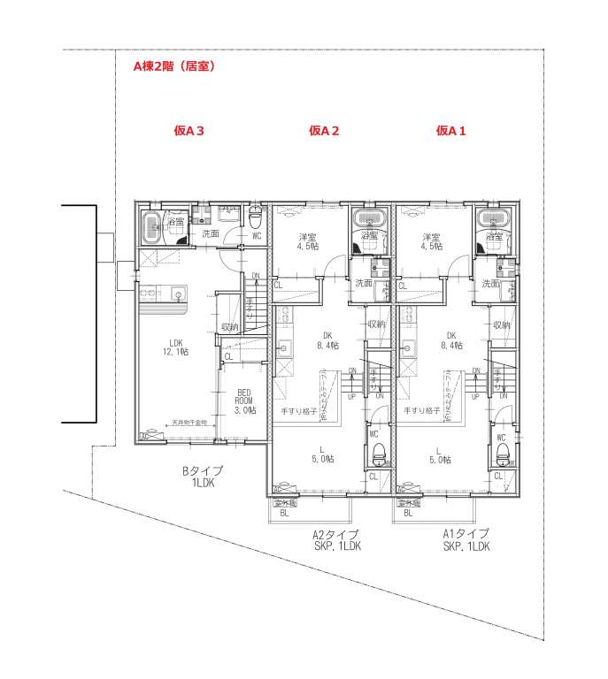
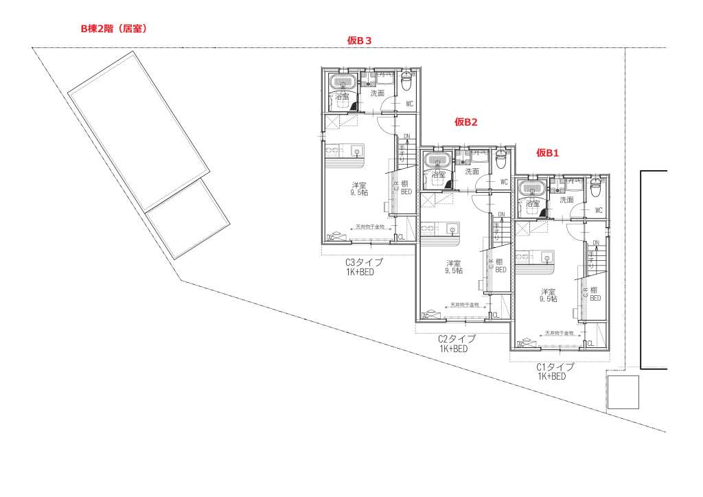
PLAN
見取り図
※画像をクリックすると拡大してご覧いただけます
SPEC
スペック
- 物件概要
-
■愛知県岡崎市福岡町
■2棟6戸
(2LDKスキップフロア2戸/1LDK1戸/1K+BED3戸)
■2022年10月15日入居開始!
・2LDKスキップフロア 限定2戸:リビングから愛車を眺められるタイプ。ガレージ奥の洋室はコンクリート床仕上げで、ガレージと一体化して利用することも可能なため、縦列で2台格納もOK!
・各部屋に専用庭付き
・各部屋屋外駐車スペースあり
・防犯カメラ付きで安心。 - 竣工日
- 2022年10月
- 交 通
・国道23号線 西尾東インター 車で約12分(約7㎞)
・東名高速道路 岡崎インター 車で約18分(約7㎞)
・JR東海道本線 相見駅 徒歩約23分- 設 備
-
☆ガレージ内設備☆
リモコン式電動シャッター
給湯設備
レール式スポットライト+ダウンライト
センサー付き換気扇
収納棚取り付け可能
エアコン設置可
電気自動車対応
TV用ジャックあり - 賃貸条件
- ※満室のため非表示
- その他
-
ペット不可
・防犯カメラ設置
・参考間取り・現況優先
・
MAP
地 図
ROOM
部屋一覧
入居予約をご希望の方は左の予約ボタンを押してください。専用のフォームへ移動します。
- ●:キャンセル待ちなし
- まだご予約が入っていないお部屋です。
- ▲:キャンセル待ちあり
- すでにご予約が入っているお部屋です (やむを得ない事情で入居辞退される方も一定数おられますので、ご入居できる可能性は十分にあります。)
| 入居予約 | No. | 間取り | 広さ | 駐車場 | 賃料 | その他 | 空き状況 | 入居可能日 |
|---|---|---|---|---|---|---|---|---|
| A1 | 2LDKスキップフロア | LDK13.4帖+洋室4.5帖+洋室(コンクリート床)6.4帖 | ガレージ幅4.1m×奥行7.5m(最大部分) | ー | リモコン式電動シャッター幅2.9m×高さ2.2m | 入居中 | ||
| A2 | 2LDKスキップフロア | LDK13.4帖+洋室4.5帖+洋室(コンクリート床)6.4帖 | ガレージ幅4.1m×奥行7.5m(最大部分) | ー | リモコン式電動シャッター幅2.9m×高さ2.2m | 入居中 | ||
| A3 | 1LDK | LDK12.1帖+洋室3.0帖 | ガレージ幅4.4m×奥行8.0m(最大部分) | ー | リモコン式電動シャッター幅3.1m×高さ2.2m | 入居中 | ||
| B1 | 1K+BED | 洋室9.5帖 | ガレージ幅3.9m×奥行7.1m(最大部分) | ー | リモコン式電動シャッター幅2.7m×高さ2.2m | 入居中 | ||
| B2 | 1K+BED | 洋室9.5帖 | ガレージ幅3.9m×奥行7.1m(最大部分) | ー | リモコン式電動シャッター幅2.7m×高さ2.2m | 入居中 | ||
| B3 | 1K+BED | 洋室9.5帖 | ガレージ幅3.9m×奥行7.1m(最大部分) | ー | リモコン式電動シャッター幅2.7m×高さ2.2m | 入居中 |
| No. | A1 |
|---|---|
| 間取り | 2LDKスキップフロア |
| 広さ | LDK13.4帖+洋室4.5帖+洋室(コンクリート床)6.4帖 |
| 駐車場 | ガレージ幅4.1m×奥行7.5m(最大部分) |
| 賃料 | ー |
| その他 | リモコン式電動シャッター幅2.9m×高さ2.2m |
| 空き状況 | 入居中 |
| 入居可能日 | |
| 入居予約 | |
| No. | A2 |
| 間取り | 2LDKスキップフロア |
| 広さ | LDK13.4帖+洋室4.5帖+洋室(コンクリート床)6.4帖 |
| 駐車場 | ガレージ幅4.1m×奥行7.5m(最大部分) |
| 賃料 | ー |
| その他 | リモコン式電動シャッター幅2.9m×高さ2.2m |
| 空き状況 | 入居中 |
| 入居可能日 | |
| 入居予約 | |
| No. | A3 |
| 間取り | 1LDK |
| 広さ | LDK12.1帖+洋室3.0帖 |
| 駐車場 | ガレージ幅4.4m×奥行8.0m(最大部分) |
| 賃料 | ー |
| その他 | リモコン式電動シャッター幅3.1m×高さ2.2m |
| 空き状況 | 入居中 |
| 入居可能日 | |
| 入居予約 | |
| No. | B1 |
| 間取り | 1K+BED |
| 広さ | 洋室9.5帖 |
| 駐車場 | ガレージ幅3.9m×奥行7.1m(最大部分) |
| 賃料 | ー |
| その他 | リモコン式電動シャッター幅2.7m×高さ2.2m |
| 空き状況 | 入居中 |
| 入居可能日 | |
| 入居予約 | |
| No. | B2 |
| 間取り | 1K+BED |
| 広さ | 洋室9.5帖 |
| 駐車場 | ガレージ幅3.9m×奥行7.1m(最大部分) |
| 賃料 | ー |
| その他 | リモコン式電動シャッター幅2.7m×高さ2.2m |
| 空き状況 | 入居中 |
| 入居可能日 | |
| 入居予約 | |
| No. | B3 |
| 間取り | 1K+BED |
| 広さ | 洋室9.5帖 |
| 駐車場 | ガレージ幅3.9m×奥行7.1m(最大部分) |
| 賃料 | ー |
| その他 | リモコン式電動シャッター幅2.7m×高さ2.2m |
| 空き状況 | 入居中 |
| 入居可能日 | |
| 入居予約 |
RECOMMEND
おすすめ物件
