CARBINS 01 愛知県 尾張旭市 桜ヶ丘町西413番地 ガレージハウス7戸
ガレージハウス ディレット
東海市大田町の新興住宅地、駅近くに新登場!
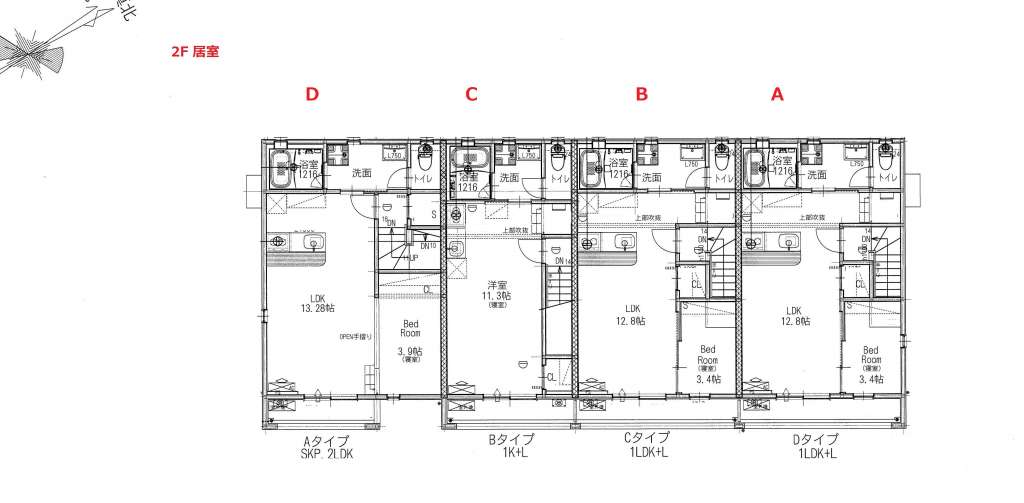
PLAN
見取り図
※画像をクリックすると拡大してご覧いただけます
SPEC
スペック
- 物件概要
-
■愛知県東海市大田町的場56-1
■ロフト付1K1戸/1LDKロフト付2戸/2LDKスキップフロア1戸
■2018(H30)年12月完成
新興住宅地に新登場!
駅近くで便利!
全室ダブルシャッタータイプ=専用庭付き。
全室 シャッター前に屋外駐車スペース完備。 - 竣工日
- 2018年12月
- 交 通
- ・名古屋鉄道常滑線太田川駅 徒歩11分
・西知多産業道路 自動車3分
・知多半島道路 大府東海IC 自動車6分 - 設 備
-
☆ガレージ内設備は次の通り☆
リモコン式電動シャッター
給湯設備
レール式スポットライト
センサー付き換気扇
収納棚取り付け可能
エアコン設置可
電気自動車対応
TV端子 - 賃貸条件
- ※満室のため非表示
- その他
- ペット不可
MAP
地 図
ROOM
部屋一覧
入居予約をご希望の方は左の予約ボタンを押してください。専用のフォームへ移動します。
- ●:キャンセル待ちなし
- まだご予約が入っていないお部屋です。
- ▲:キャンセル待ちあり
- すでにご予約が入っているお部屋です (やむを得ない事情で入居辞退される方も一定数おられますので、ご入居できる可能性は十分にあります。)
| 入居予約 | No. | 間取り | 広さ | 駐車場 | 賃料 | その他 | 空き状況 | 入居可能日 |
|---|---|---|---|---|---|---|---|---|
| A | 1LDKロフト付 | LDK12.8帖+寝室3.4帖 | ガレージ幅4.9m×奥行7.7m(最大部分) | ー | シャッター幅2.9m×高さ2.2m | 入居中 | ||
| B | 1LDKロフト付 | LDK12.8帖+寝室3.4帖 | ガレージ幅4.9m×奥行6.6m(最大部分) | ー | シャッター幅2.9m×高さ2.2m | 入居中 | ||
| C | ロフト付1K | LDK11.3帖 | ガレージ幅3.9m×奥行6.6m(最大部分) | ー | シャッター幅2.4m×高さ2.2m | 入居中 | ||
| D | 2LDKスキップフロア | LDK13.3帖+寝室3.9帖+納戸4.8帖 | ガレージ幅3.4m×奥行7.7m(最大部分) | ー | シャッター幅2.8×高さ2.2m | 入居中 |
| No. | A |
|---|---|
| 間取り | 1LDKロフト付 |
| 広さ | LDK12.8帖+寝室3.4帖 |
| 駐車場 | ガレージ幅4.9m×奥行7.7m(最大部分) |
| 賃料 | ー |
| その他 | シャッター幅2.9m×高さ2.2m |
| 空き状況 | 入居中 |
| 入居可能日 | |
| 入居予約 | |
| No. | B |
| 間取り | 1LDKロフト付 |
| 広さ | LDK12.8帖+寝室3.4帖 |
| 駐車場 | ガレージ幅4.9m×奥行6.6m(最大部分) |
| 賃料 | ー |
| その他 | シャッター幅2.9m×高さ2.2m |
| 空き状況 | 入居中 |
| 入居可能日 | |
| 入居予約 | |
| No. | C |
| 間取り | ロフト付1K |
| 広さ | LDK11.3帖 |
| 駐車場 | ガレージ幅3.9m×奥行6.6m(最大部分) |
| 賃料 | ー |
| その他 | シャッター幅2.4m×高さ2.2m |
| 空き状況 | 入居中 |
| 入居可能日 | |
| 入居予約 | |
| No. | D |
| 間取り | 2LDKスキップフロア |
| 広さ | LDK13.3帖+寝室3.9帖+納戸4.8帖 |
| 駐車場 | ガレージ幅3.4m×奥行7.7m(最大部分) |
| 賃料 | ー |
| その他 | シャッター幅2.8×高さ2.2m |
| 空き状況 | 入居中 |
| 入居可能日 | |
| 入居予約 |
RECOMMEND
おすすめ物件
