CARBINS 01 愛知県 尾張旭市 桜ヶ丘町西413番地 ガレージハウス7戸
Gスタイルクラブほら貝
アクセス抜群!人気エリア物件!
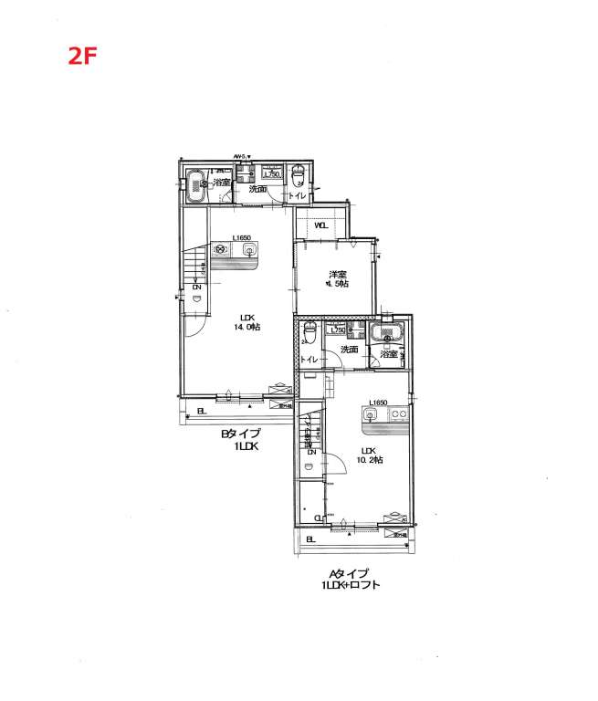
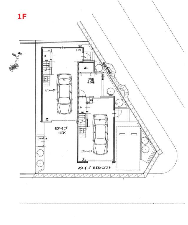
PLAN
見取り図
※画像をクリックすると拡大してご覧いただけます
SPEC
スペック
- 物件概要
-
■愛知県名古屋市緑区ほら貝1丁目103-2
■1LDK1戸/ロフト付1LDK1戸
■2019年8月完成
全戸屋外駐車場付き。
アクセス抜群の好立地!
ウォークインクロゼット付! - 竣工日
- 2019年8月
- 交 通
- 名古屋市営地下鉄桜通線 相生駅徒歩5分。
名古屋環状2号線 鳴海IC 車で約2分。 - 設 備
-
☆ガレージ内設備は次の通り☆
リモコン式電動シャッター
給湯設備
レール式スポットライト
センサー付き換気扇
収納棚取り付け可能
エアコン設置可
電気自動車対応
TV端子 - 賃貸条件
- ※満室のため非表示
- その他
- ペット不可
MAP
地 図
ROOM
部屋一覧
入居予約をご希望の方は左の予約ボタンを押してください。専用のフォームへ移動します。
- ●:キャンセル待ちなし
- まだご予約が入っていないお部屋です。
- ▲:キャンセル待ちあり
- すでにご予約が入っているお部屋です (やむを得ない事情で入居辞退される方も一定数おられますので、ご入居できる可能性は十分にあります。)
| 入居予約 | No. | 間取り | 広さ | 駐車場 | 賃料 | その他 | 空き状況 | 入居可能日 |
|---|---|---|---|---|---|---|---|---|
| Aタイプ | ロフト付1LDK | LDK10.2帖+洋室4.5帖+ロフト4.5帖 | ガレージ幅3.8m×奥行7.2m(最大部分) | ー | シャッター幅2.7m×高さ2.2m | 入居中 | ||
| Bタイプ | 1LDK | LDK14.0帖+洋室4.5帖 | ガレージ幅3.8m×奥行8.1m(最大部分) | ー | シャッター幅2.7m×高さ2.2m | 入居中 |
| No. | Aタイプ |
|---|---|
| 間取り | ロフト付1LDK |
| 広さ | LDK10.2帖+洋室4.5帖+ロフト4.5帖 |
| 駐車場 | ガレージ幅3.8m×奥行7.2m(最大部分) |
| 賃料 | ー |
| その他 | シャッター幅2.7m×高さ2.2m |
| 空き状況 | 入居中 |
| 入居可能日 | |
| 入居予約 | |
| No. | Bタイプ |
| 間取り | 1LDK |
| 広さ | LDK14.0帖+洋室4.5帖 |
| 駐車場 | ガレージ幅3.8m×奥行8.1m(最大部分) |
| 賃料 | ー |
| その他 | シャッター幅2.7m×高さ2.2m |
| 空き状況 | 入居中 |
| 入居可能日 | |
| 入居予約 |
RECOMMEND
おすすめ物件
