CARBINS 01 愛知県 尾張旭市 桜ヶ丘町西413番地 ガレージハウス7戸
ウィズダムK
刈谷市南部・小垣江町半崎に登場!ゆったりサイズの1LDK3戸!
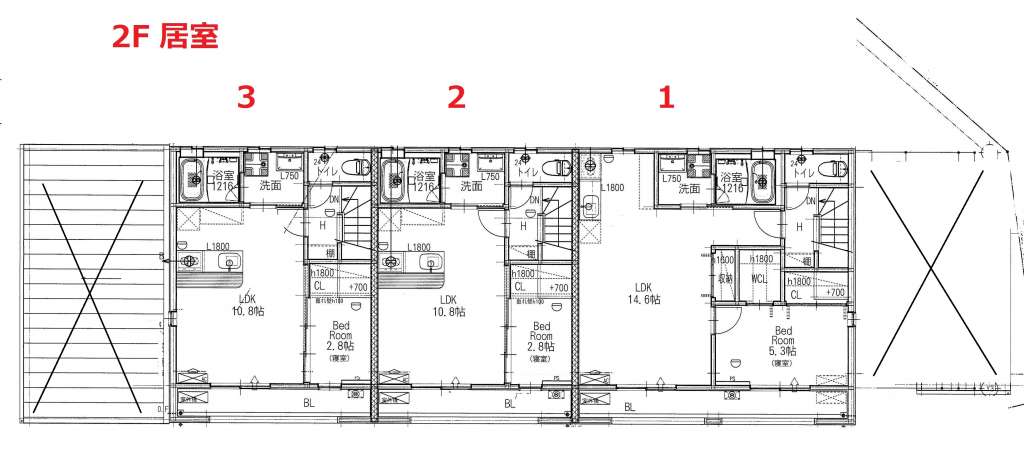
PLAN
見取り図
※画像をクリックすると拡大してご覧いただけます
SPEC
スペック
- 物件概要
-
■愛知県刈谷市小垣江町半崎10-2
■1LDK3戸
■2019年9月完成
・刈谷南部 小垣江町半崎に新規計画登場。
・全戸シャッター前に屋外駐車場付き。しかも3戸中2戸には屋外駐車場2台!
・横幅ゆったり。Bタイプのお部屋(1戸限定)には2台入庫可!希少です!! - 竣工日
- 2019年9月
- 交 通
・名古屋鉄道三河線 小垣江駅 徒歩約12分
・国道419号線 半城土町西十三塚まで車で約4分
・伊勢湾岸道路 豊明ICまで車で約18分
・知多半島道路 東浦知多IC 車で約15分- 設 備
-
☆ガレージ内設備は次の通り☆
リモコン式電動シャッター
給湯設備
レール式スポットライト
センサー付き換気扇
収納棚取り付け可能
エアコン設置可
電気自動車対応
TV端子 - 賃貸条件
- ※満室のため非表示
- その他
-
ペット不可
・寸法は図面上。現況優先。
MAP
地 図
ROOM
部屋一覧
入居予約をご希望の方は左の予約ボタンを押してください。専用のフォームへ移動します。
- ●:キャンセル待ちなし
- まだご予約が入っていないお部屋です。
- ▲:キャンセル待ちあり
- すでにご予約が入っているお部屋です (やむを得ない事情で入居辞退される方も一定数おられますので、ご入居できる可能性は十分にあります。)
| 入居予約 | No. | 間取り | 広さ | 駐車場 | 賃料 | その他 | 空き状況 | 入居可能日 |
|---|---|---|---|---|---|---|---|---|
| 1 | 1LDK(Bタイプ) | LDK14.6帖+洋室5.3帖 | ガレージ幅7.5m×奥行7.28m(最大部分) | ー | シャッター幅2.45m×高さ2.2mのシャッターが2枚 | 入居中 | ||
| 2 | 1LDK(Aタイプ) | LDK10.8帖+洋室2.8帖 | ガレージ幅5.46m×奥行7.28m(最大部分) | ー | シャッター幅2.8m×高さ2.2m | 入居中 | ||
| 3 | 1LDK(Aタイプ) | LDK10.8帖+洋室2.8帖 | ガレージ幅5.46m×奥行7.28m(最大部分) | ー | シャッター幅2.8m×高さ2.2m | 入居中 |
| No. | 1 |
|---|---|
| 間取り | 1LDK(Bタイプ) |
| 広さ | LDK14.6帖+洋室5.3帖 |
| 駐車場 | ガレージ幅7.5m×奥行7.28m(最大部分) |
| 賃料 | ー |
| その他 | シャッター幅2.45m×高さ2.2mのシャッターが2枚 |
| 空き状況 | 入居中 |
| 入居可能日 | |
| 入居予約 | |
| No. | 2 |
| 間取り | 1LDK(Aタイプ) |
| 広さ | LDK10.8帖+洋室2.8帖 |
| 駐車場 | ガレージ幅5.46m×奥行7.28m(最大部分) |
| 賃料 | ー |
| その他 | シャッター幅2.8m×高さ2.2m |
| 空き状況 | 入居中 |
| 入居可能日 | |
| 入居予約 | |
| No. | 3 |
| 間取り | 1LDK(Aタイプ) |
| 広さ | LDK10.8帖+洋室2.8帖 |
| 駐車場 | ガレージ幅5.46m×奥行7.28m(最大部分) |
| 賃料 | ー |
| その他 | シャッター幅2.8m×高さ2.2m |
| 空き状況 | 入居中 |
| 入居可能日 | |
| 入居予約 |
RECOMMEND
おすすめ物件
