CARBINS 01 愛知県 尾張旭市 桜ヶ丘町西413番地 ガレージハウス7戸
エスプライム
新タイプ!防音室&広いルーフバルコニー付き。
PLAN
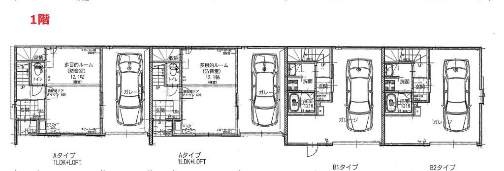
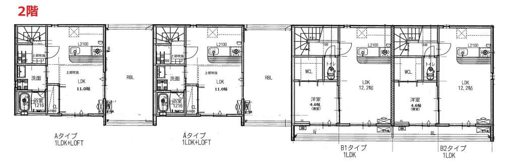
見取り図
※画像をクリックすると拡大してご覧いただけます
SPEC
スペック
- 物件概要
-
■愛知県東海市名和町出崎6-1
■1LDK2戸/1LDKロフト付2戸
■2019年10月完成
G-styleclubガレージ付アパートにニュータイプ登場!
○Aタイプ:1階ガレージ横に防音設備付きの多目的ルームあり!
多目的ルームは住む人によっていろんな楽しみ方が出来ます!音楽鑑賞や楽器の練習、シアタールーム、小さいお子さんがいる場合は泣き声を気にしないで育児できたり、家庭用であれば卓球やビリヤードも楽しめるかもしれません!多目的ルーム内にシンク付き。
○Aタイプ2階には約11帖の広いルーフバルコニー!
○Bタイプ ガレージ内には約3帖の大型物置スペースあり。
○Bタイプ 2階の居室は12.2帖のLDKと4.6帖の洋室でゆったり暮らせる!ウォークインクロゼット付き! - 竣工日
- 2019年10月
- 交 通
- ・名鉄常滑線 名和駅 車で約7分/徒歩約15分。
・伊勢湾岸道 東海IC 車で約6分。
・国道23号線302号線交差点(名古屋南) 車で約7分。 - 設 備
-
☆ガレージ内設備は次の通り☆
リモコン式電動シャッター
給湯設備
レール式スポットライト
センサー付き換気扇
収納棚取り付け可能
エアコン設置可
電気自動車対応
TV端子 - 賃貸条件
- ※満室のため非表示
- その他
- ペット不可
MAP
地 図
ROOM
部屋一覧
入居予約をご希望の方は左の予約ボタンを押してください。専用のフォームへ移動します。
- ●:キャンセル待ちなし
- まだご予約が入っていないお部屋です。
- ▲:キャンセル待ちあり
- すでにご予約が入っているお部屋です (やむを得ない事情で入居辞退される方も一定数おられますので、ご入居できる可能性は十分にあります。)
| 入居予約 | No. | 間取り | 広さ | 駐車場 | 賃料 | その他 | 空き状況 | 入居可能日 |
|---|---|---|---|---|---|---|---|---|
| Ⅰ | 1LDKロフト付 | LDK11.0帖+洋室12.1帖+ロフト4.9帖 | ガレージ幅3.1m×奥行5.45m(最大部分) | ー | シャッター幅2.6m×高さ2.2m | 入居中 | ||
| Ⅱ | 1LDKロフト付 | LDK11.0帖+洋室12.1帖+ロフト4.9帖 | ガレージ幅3.1m×奥行5.45m(最大部分) | ー | シャッター幅2.6m×高さ2.2m | 入居中 | ||
| Ⅲ | 1LDK | LDK12.2帖+洋室4.6帖+WCL1.6帖 | ガレージ幅3.3m×奥行6.0m(最大部分) | ー | シャッター幅2.9m×高さ2.2m | 入居中 | ||
| Ⅳ | 1LDK | LDK12.2帖+洋室4.6帖+WCL1.6帖 | ガレージ幅3.3m×奥行6.0m(最大部分) | ー | シャッター幅2.9m×高さ2.2m | 入居中 |
| No. | Ⅰ |
|---|---|
| 間取り | 1LDKロフト付 |
| 広さ | LDK11.0帖+洋室12.1帖+ロフト4.9帖 |
| 駐車場 | ガレージ幅3.1m×奥行5.45m(最大部分) |
| 賃料 | ー |
| その他 | シャッター幅2.6m×高さ2.2m |
| 空き状況 | 入居中 |
| 入居可能日 | |
| 入居予約 | |
| No. | Ⅱ |
| 間取り | 1LDKロフト付 |
| 広さ | LDK11.0帖+洋室12.1帖+ロフト4.9帖 |
| 駐車場 | ガレージ幅3.1m×奥行5.45m(最大部分) |
| 賃料 | ー |
| その他 | シャッター幅2.6m×高さ2.2m |
| 空き状況 | 入居中 |
| 入居可能日 | |
| 入居予約 | |
| No. | Ⅲ |
| 間取り | 1LDK |
| 広さ | LDK12.2帖+洋室4.6帖+WCL1.6帖 |
| 駐車場 | ガレージ幅3.3m×奥行6.0m(最大部分) |
| 賃料 | ー |
| その他 | シャッター幅2.9m×高さ2.2m |
| 空き状況 | 入居中 |
| 入居可能日 | |
| 入居予約 | |
| No. | Ⅳ |
| 間取り | 1LDK |
| 広さ | LDK12.2帖+洋室4.6帖+WCL1.6帖 |
| 駐車場 | ガレージ幅3.3m×奥行6.0m(最大部分) |
| 賃料 | ー |
| その他 | シャッター幅2.9m×高さ2.2m |
| 空き状況 | 入居中 |
| 入居可能日 | |
| 入居予約 |
RECOMMEND
おすすめ物件
