CARBINS 01 愛知県 尾張旭市 桜ヶ丘町西413番地 ガレージハウス7戸
ガレージハウス ニュルブルク
全戸南向き・屋外駐車場付き&岐阜街道190号沿いの好立地!
PLAN
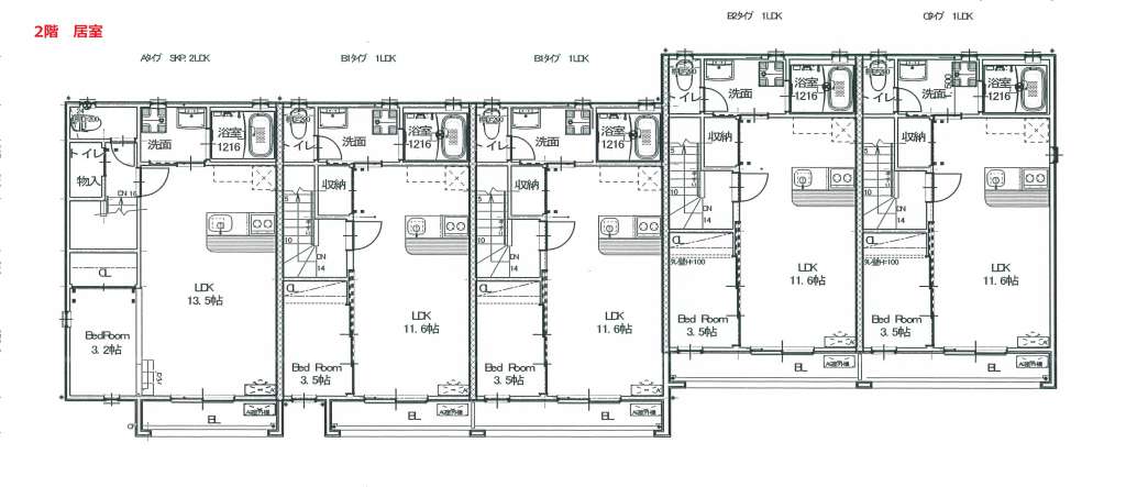
見取り図
※画像をクリックすると拡大してご覧いただけます
SPEC
スペック
- 物件概要
-
■愛知県一宮市公園通5丁目3-1
■1LDK4戸/2LDKスキップフロア1戸
■2019年11月完成
・岐阜街道190号沿いの好立地!交通の便は良好!
・全戸南向き・屋外駐車場付き。
・一宮初の2LDKスキップフロアは限定1戸。屋外駐車スペース2台、専用中庭付き。
・人気のダブルシャッター専用庭付き1LDKもあり。 - 竣工日
- 2019年11月
- 交 通
- ・名古屋高速16号線一宮中IC 車約8分。
・JR尾張一宮駅 徒歩約25分、自転車約7分、車約2分。 - 設 備
-
☆ガレージ内設備は次の通り☆
リモコン式電動シャッター
給湯設備
レール式スポットライト
センサー付き換気扇
収納棚取り付け可能
エアコン設置可
電気自動車対応
TV端子 - 賃貸条件
- ※満室のため非表示
- その他
-
ペット不可
間取りは参考。現況優先。
。
MAP
地 図
ROOM
部屋一覧
入居予約をご希望の方は左の予約ボタンを押してください。専用のフォームへ移動します。
- ●:キャンセル待ちなし
- まだご予約が入っていないお部屋です。
- ▲:キャンセル待ちあり
- すでにご予約が入っているお部屋です (やむを得ない事情で入居辞退される方も一定数おられますので、ご入居できる可能性は十分にあります。)
| 入居予約 | No. | 間取り | 広さ | 駐車場 | 賃料 | その他 | 空き状況 | 入居可能日 |
|---|---|---|---|---|---|---|---|---|
| A | 2LDKスキップフロア | LDK13.5帖+中2階4.2帖+洋室3.2帖 | ガレージ幅3.6m×奥行7.4m(最大部分) | ー | シャッター幅3.0m×高さ2.2m | 入居中 | ||
| B | 1LDK(専用中庭付き) | LDK11.6帖+洋室3.5帖 | ガレージ幅4.9m×奥行6.3m(最大部分) | ー | シャッター幅3.4m×高さ2.2m | 入居中 | ||
| C | 1LDK(専用中庭付き) | LDK11.6帖+洋室3.5帖 | ガレージ幅4.9m×奥行6.3m(最大部分) | ー | シャッター幅3.4m×高さ2.2m | 入居中 | ||
| D | 1LDK | LDK11.6帖+洋室3.5帖 | ガレージ幅4.9m×奥行6.3m(最大部分) | ー | シャッター幅3.4m×高さ2.2m | 入居中 | ||
| E | 1LDK | LDK11.6帖+洋室3.5帖 | ガレージ幅4.9m×奥行7.4m(最大部分) | ー | シャッター幅3.4m×高さ2.2m | 入居中 |
| No. | A |
|---|---|
| 間取り | 2LDKスキップフロア |
| 広さ | LDK13.5帖+中2階4.2帖+洋室3.2帖 |
| 駐車場 | ガレージ幅3.6m×奥行7.4m(最大部分) |
| 賃料 | ー |
| その他 | シャッター幅3.0m×高さ2.2m |
| 空き状況 | 入居中 |
| 入居可能日 | |
| 入居予約 | |
| No. | B |
| 間取り | 1LDK(専用中庭付き) |
| 広さ | LDK11.6帖+洋室3.5帖 |
| 駐車場 | ガレージ幅4.9m×奥行6.3m(最大部分) |
| 賃料 | ー |
| その他 | シャッター幅3.4m×高さ2.2m |
| 空き状況 | 入居中 |
| 入居可能日 | |
| 入居予約 | |
| No. | C |
| 間取り | 1LDK(専用中庭付き) |
| 広さ | LDK11.6帖+洋室3.5帖 |
| 駐車場 | ガレージ幅4.9m×奥行6.3m(最大部分) |
| 賃料 | ー |
| その他 | シャッター幅3.4m×高さ2.2m |
| 空き状況 | 入居中 |
| 入居可能日 | |
| 入居予約 | |
| No. | D |
| 間取り | 1LDK |
| 広さ | LDK11.6帖+洋室3.5帖 |
| 駐車場 | ガレージ幅4.9m×奥行6.3m(最大部分) |
| 賃料 | ー |
| その他 | シャッター幅3.4m×高さ2.2m |
| 空き状況 | 入居中 |
| 入居可能日 | |
| 入居予約 | |
| No. | E |
| 間取り | 1LDK |
| 広さ | LDK11.6帖+洋室3.5帖 |
| 駐車場 | ガレージ幅4.9m×奥行7.4m(最大部分) |
| 賃料 | ー |
| その他 | シャッター幅3.4m×高さ2.2m |
| 空き状況 | 入居中 |
| 入居可能日 | |
| 入居予約 |
RECOMMEND
おすすめ物件
