CARBINS 01 愛知県 尾張旭市 桜ヶ丘町西413番地 ガレージハウス7戸
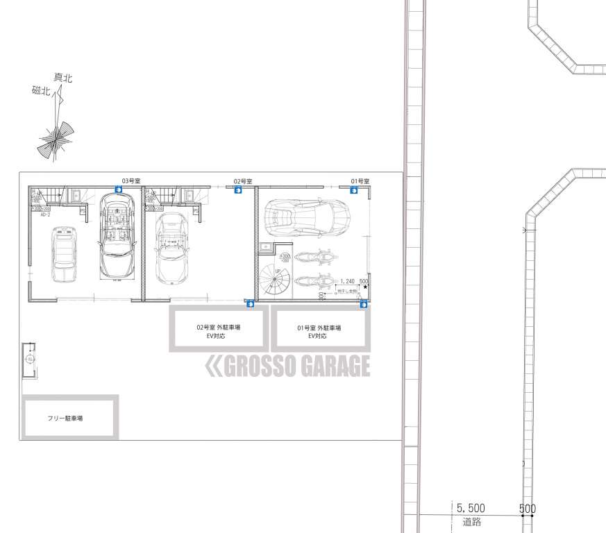
CARCLE GROSSO GARAGE
ガレージ内2台+外1台の3台体制可能。賃貸ガレージハウス初、外駐車場にEVコンセントを装備
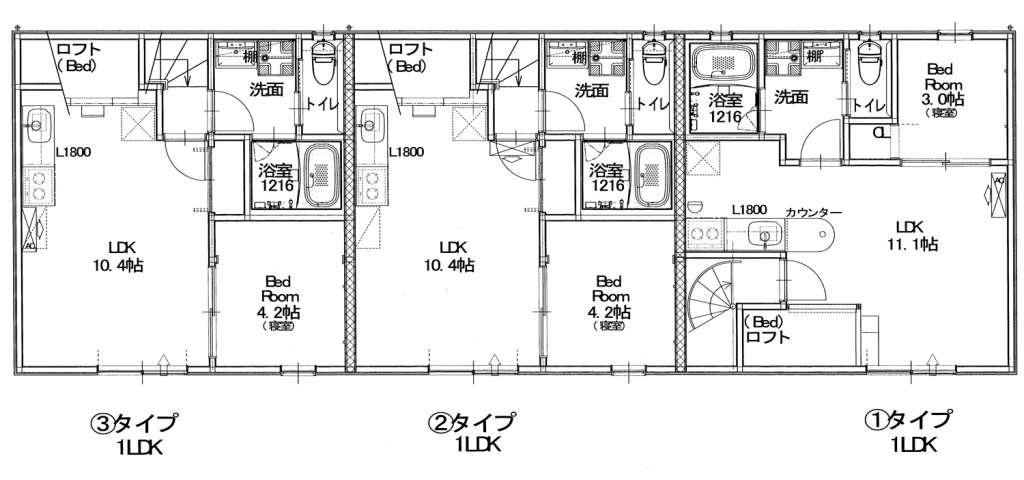
PLAN
見取り図
※画像をクリックすると拡大してご覧いただけます
SPEC
スペック
- 物件概要
-
■岐阜県大垣市和合本町2丁目80
■1LDK+ロフト付き×3戸 ガレージ内2台駐車可能
■2020年1月完成
■物件概要
岐阜県大垣市にG-styleclubガレージ付アパート初登場。全戸ガレージ内に2台駐車可能。さらに賃貸ガレージハウスで初の外駐車場にEVコンセントを装備。将来のEV時代に対応した仕様になっています。高級感のある外観・内観はスタイリッシュな生活を送り、素敵な愛車を置くガレージとして最高の環境です。
住居部分もLDKに加え新設計のロフトや、高い天井は空間に広がりを感じさせます。全戸南向き。1人でも2人でも小さいお子様がいらっしゃるご家庭でもガレージライフを満喫できます。
■特徴
01号室:1階ガレージはG-styleclub初の螺旋階段でガレージをクール&モダンに演出。将来のEV時代に対応、ガレージ内にも外駐車場にもEV用200Vコンセントを完備。2Fは1LDK+ニュータイプのロフト
02号室:将来のEV時代に対応、ガレージ内にも外駐車場にもEV用200Vコンセントを完備。2Fは1LDK+ロフト付
03号室:外駐車場は別途契約とすることで、駐車はガレージだけで十分というニーズに対応。
■建物コンセプト
GROSSOとはイタリア語で「大きい」という意味を持ちます。ガレージ内に2台駐車出来る大きなガレージを持つこの物件のコンセプトと、Grigio(グリージョ:グレー)とRosso(ロッソ:レッド)をイメージカラーとしている2つの意味を持つ言葉として命名されました。外観、ガレージともにグレーと赤に拘りを持ったデザインとなっており、外観はガンメタリックのガリバリウム鋼板、ガレージ枠とシャッターの01,02,03号室表示に赤を使用。ガレージ内は赤とグレーのツートン仕様となっており、ガレージに愛車を置いて撮影する際に「映える」作りになっています。建物外壁や外駐車場のアスファルトにも「GROSSO GARAGE」の文字が。建物全体をコンセプトで包む設計となっています。 - 竣工日
- 2020年1月
- 交 通
- JR大垣駅からひと駅の垂水鉄道 東大垣駅徒歩5分と公共交通機関の便が良く、国道21号線にもすぐ出られる抜群のアクセスです。
- 設 備
-
■ガレージ内設備・リモコン式電動シャッター
・給湯設備
・レール式スポットライト(センサー式)
・センサー付き換気扇
・収納棚取り付け可能
・エアコン設置可
・電気自動車対応 200Vコンセント
(01号室、02号室は外駐車場も200Vコンセント有)
・螺旋階段(01号室のみ)
・トグルスイッチ
■住居設備
・エアコン1台
・TVモニターホン
・洗浄暖房便座
・洗面化粧台(三面鏡)
・追い炊き機能
・浴室暖房換気乾燥機付
・宅配ボックス
■共用設備
・センサーライト
・防犯カメラ - 賃貸条件
- ※満室のため非表示
- その他
-
ペット不可
間取りは参考。現況優先。
*。
MAP
地 図
ROOM
部屋一覧
入居予約をご希望の方は左の予約ボタンを押してください。専用のフォームへ移動します。
- ●:キャンセル待ちなし
- まだご予約が入っていないお部屋です。
- ▲:キャンセル待ちあり
- すでにご予約が入っているお部屋です (やむを得ない事情で入居辞退される方も一定数おられますので、ご入居できる可能性は十分にあります。)
| 入居予約 | No. | 間取り | 広さ | 駐車場 | 賃料 | その他 | 空き状況 | 入居可能日 |
|---|---|---|---|---|---|---|---|---|
| 01 | 1LDK+ロフト | LDK11.1帖+洋室3.0帖+ロフト | ガレージ幅6m×奥行6m(最大部分) ガレージ内2台+敷地内駐車場1台 | ー | シャッター幅4.07m×高さ2.2m | 入居中 | ||
| 02 | 1LDK+ロフト | LDK10.4帖+洋室4.2帖+ロフト | ガレージ幅6m×奥行6m(最大部分) ガレージ内2台+敷地内駐車場1台 | ー | シャッター幅4.07m×高さ2.2m | 入居中 | ||
| 03 | 1LDK+ロフト | LDK10.4帖+洋室4.2帖+ロフト | ガレージ幅6m×奥行6m(最大部分) ガレージ内2台 | ー | シャッター幅4.07m×高さ2.2m | 入居中 |
| No. | 01 |
|---|---|
| 間取り | 1LDK+ロフト |
| 広さ | LDK11.1帖+洋室3.0帖+ロフト |
| 駐車場 | ガレージ幅6m×奥行6m(最大部分) ガレージ内2台+敷地内駐車場1台 |
| 賃料 | ー |
| その他 | シャッター幅4.07m×高さ2.2m |
| 空き状況 | 入居中 |
| 入居可能日 | |
| 入居予約 | |
| No. | 02 |
| 間取り | 1LDK+ロフト |
| 広さ | LDK10.4帖+洋室4.2帖+ロフト |
| 駐車場 | ガレージ幅6m×奥行6m(最大部分) ガレージ内2台+敷地内駐車場1台 |
| 賃料 | ー |
| その他 | シャッター幅4.07m×高さ2.2m |
| 空き状況 | 入居中 |
| 入居可能日 | |
| 入居予約 | |
| No. | 03 |
| 間取り | 1LDK+ロフト |
| 広さ | LDK10.4帖+洋室4.2帖+ロフト |
| 駐車場 | ガレージ幅6m×奥行6m(最大部分) ガレージ内2台 |
| 賃料 | ー |
| その他 | シャッター幅4.07m×高さ2.2m |
| 空き状況 | 入居中 |
| 入居可能日 | |
| 入居予約 |
RECOMMEND
おすすめ物件
