CARBINS 01 愛知県 尾張旭市 桜ヶ丘町西413番地 ガレージハウス7戸
アンビート
愛知県岡崎市中心部に新登場!ガレージライフを楽しみたいカップルにオススメ!
PLAN
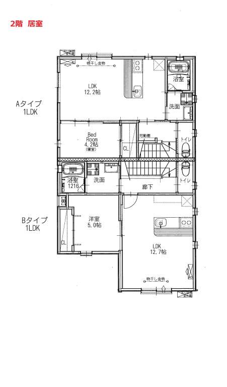
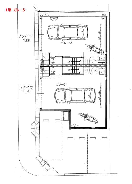
見取り図
※画像をクリックすると拡大してご覧いただけます
SPEC
スペック
- 物件概要
-
■愛知県岡崎市若宮町2丁目52番
■1LDK 2戸
■2020年4月末完成
・岡崎市中心部の立地
・青空駐車場が敷地内に3台あり(賃料5500円/月)
・LDKには大型エアコン設置!寝室までOK!
広めのガレージ+LDKで2人暮らしにもオススメ
・インナーバルコニータイプ(ベランダは有りません)
・シャッター高め!(2.35m)*現況優先 - 竣工日
- 2020年4月
- 交 通
・国道1号線まで車で約2分
・東名高速道路 岡崎ICまで車で約10分
・岡崎市役所まで車で約5分- 設 備
-
☆ガレージ内設備☆
リモコン式電動シャッター
給湯設備
レール式スポットライト
センサー付き換気扇
収納棚取り付け可能
エアコン設置可
電気自動車対応
室内物干し(ガレージ内と居室内)
宅配ボックス - 賃貸条件
- ※満室のため非表示
- その他
-
ペット不可
*
・LDKエアコン4KW設置あり
MAP
地 図
ROOM
部屋一覧
入居予約をご希望の方は左の予約ボタンを押してください。専用のフォームへ移動します。
- ●:キャンセル待ちなし
- まだご予約が入っていないお部屋です。
- ▲:キャンセル待ちあり
- すでにご予約が入っているお部屋です (やむを得ない事情で入居辞退される方も一定数おられますので、ご入居できる可能性は十分にあります。)
| 入居予約 | No. | 間取り | 広さ | 駐車場 | 賃料 | その他 | 空き状況 | 入居可能日 |
|---|---|---|---|---|---|---|---|---|
| Aタイプ | 1LDK | LDK12.2帖+洋室4.2帖 | ガレージ幅5.46m×奥行7.28m(最大部分) | ー | シャッター幅3.5m×高さ2.35m | 入居中 | ||
| Bタイプ | 1LDK | LDK12.7帖+洋室5.0帖 | ガレージ幅6.05m×奥行7.28m(最大部分) | ー | シャッター幅3.25m×高さ2.35m | 入居中 |
| No. | Aタイプ |
|---|---|
| 間取り | 1LDK |
| 広さ | LDK12.2帖+洋室4.2帖 |
| 駐車場 | ガレージ幅5.46m×奥行7.28m(最大部分) |
| 賃料 | ー |
| その他 | シャッター幅3.5m×高さ2.35m |
| 空き状況 | 入居中 |
| 入居可能日 | |
| 入居予約 | |
| No. | Bタイプ |
| 間取り | 1LDK |
| 広さ | LDK12.7帖+洋室5.0帖 |
| 駐車場 | ガレージ幅6.05m×奥行7.28m(最大部分) |
| 賃料 | ー |
| その他 | シャッター幅3.25m×高さ2.35m |
| 空き状況 | 入居中 |
| 入居可能日 | |
| 入居予約 |
RECOMMEND
おすすめ物件
