CARBINS 01 愛知県 尾張旭市 桜ヶ丘町西413番地 ガレージハウス7戸
ガレージハウス プリモラ
広めの1LDK・全室屋外駐車場付き!
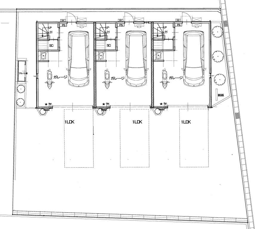
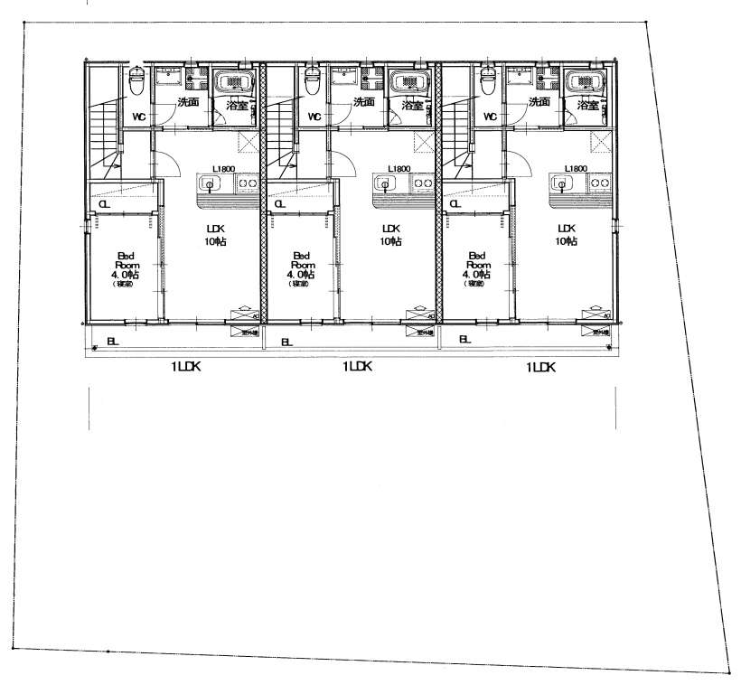
PLAN
見取り図
※画像をクリックすると拡大してご覧いただけます
SPEC
スペック
- 物件概要
-
■愛知県一宮市冨田立石765-1
■1LDK 3戸
■2020年6月末完成
7年ぶりに一宮市西部(元は尾西市)に登場!
広めの1LDK3戸。
全室南向き&屋外駐車場付き。
2号館もあり!https://g-styleclub.com/qs/object/objectdetail/141 - 竣工日
- 2020年6月
- 交 通
- ・東海北陸自動車道 一宮西インター 車で約6分
・濃尾大橋まで車で約3分
・JR東海道線 尾張一宮駅 車で約9分 - 設 備
-
☆ガレージ内設備☆
リモコン式電動シャッター
給湯設備
レール式スポットライト
センサー付き換気扇
収納棚取り付け可能
エアコン設置可
電気自動車対応
宅配ボックス付き - 賃貸条件
- ※満室のため非表示
- その他
- ペット不可 *
MAP
地 図
ROOM
部屋一覧
入居予約をご希望の方は左の予約ボタンを押してください。専用のフォームへ移動します。
- ●:キャンセル待ちなし
- まだご予約が入っていないお部屋です。
- ▲:キャンセル待ちあり
- すでにご予約が入っているお部屋です (やむを得ない事情で入居辞退される方も一定数おられますので、ご入居できる可能性は十分にあります。)
| 入居予約 | No. | 間取り | 広さ | 駐車場 | 賃料 | その他 | 空き状況 | 入居可能日 |
|---|---|---|---|---|---|---|---|---|
| A | 1LDK | LDK10帖+洋室4帖 | ガレージ幅4.9m×奥行7.1m(最大部分) | ー | シャッター幅3.4m×高さ2.2m | 入居中 | ||
| B | 1LDK | LDK10帖+洋室4帖 | ガレージ幅4.9m×奥行7.1m(最大部分) | ー | シャッター幅3.4m×高さ2.2m | 入居中 | ||
| C | 1LDK | LDK10帖+洋室4帖 | ガレージ幅4.9m×奥行7.1m(最大部分) | ー | シャッター幅3.4m×高さ2.2m | 入居中 |
| No. | A |
|---|---|
| 間取り | 1LDK |
| 広さ | LDK10帖+洋室4帖 |
| 駐車場 | ガレージ幅4.9m×奥行7.1m(最大部分) |
| 賃料 | ー |
| その他 | シャッター幅3.4m×高さ2.2m |
| 空き状況 | 入居中 |
| 入居可能日 | |
| 入居予約 | |
| No. | B |
| 間取り | 1LDK |
| 広さ | LDK10帖+洋室4帖 |
| 駐車場 | ガレージ幅4.9m×奥行7.1m(最大部分) |
| 賃料 | ー |
| その他 | シャッター幅3.4m×高さ2.2m |
| 空き状況 | 入居中 |
| 入居可能日 | |
| 入居予約 | |
| No. | C |
| 間取り | 1LDK |
| 広さ | LDK10帖+洋室4帖 |
| 駐車場 | ガレージ幅4.9m×奥行7.1m(最大部分) |
| 賃料 | ー |
| その他 | シャッター幅3.4m×高さ2.2m |
| 空き状況 | 入居中 |
| 入居可能日 | |
| 入居予約 |
RECOMMEND
おすすめ物件
