CARBINS 01 愛知県 尾張旭市 桜ヶ丘町西413番地 ガレージハウス7戸
G-Style高柳西町
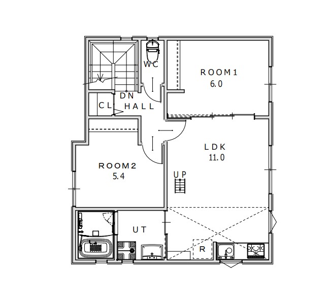
PLAN
見取り図
※画像をクリックすると拡大してご覧いただけます
SPEC
スペック
- 物件概要
-
- 岡山県岡山市北区高柳
- 戸建て住宅(3LDK+ロフト)
- 幅5mの電動ワイドシャッター付きで並列駐車
- 好きな車を室内からでも眺められます
- 竣工日
- 2025年3月
- 交 通
- JR備前三門駅まで徒歩16分
- 岡山駅西口まで車で7分
- 高柳東町バス停まで徒歩6分
- 設 備
-
◆ガレージ内設備
- シャッター /電動
- 給水湯設備 /有
- 換気扇 /人感センサー
- 電気自動車充電用コンセント200V /有
- テレビ用ジャック /有
- 照明 /レール式・人感センサー
- エアコン設置 /有
- ガスコック /有
- 車止め /有・非固定
◆住居設備- エアコン /2基(ガレージ・LDK)
- 照明器具 /有
- ガス /プロパンガス
- IHクッキングヒーター
- モニター付インターホン /有
- 給湯器 /有
- 浴室 /有
- 洗面台 /有
- シャンプードレッサー /有
- 賃貸条件
- ※満室のため非表示
- その他
-
ペット不可
敷金なし
礼金1ヵ月
MAP
地 図
ROOM
部屋一覧
入居予約をご希望の方は左の予約ボタンを押してください。専用のフォームへ移動します。
- ●:キャンセル待ちなし
- まだご予約が入っていないお部屋です。
- ▲:キャンセル待ちあり
- すでにご予約が入っているお部屋です (やむを得ない事情で入居辞退される方も一定数おられますので、ご入居できる可能性は十分にあります。)
| 入居予約 | No. | 間取り | 広さ | 駐車場 | 賃料 | その他 | 空き状況 | 入居可能日 |
|---|---|---|---|---|---|---|---|---|
| 1 | その他 | LDK11帖 洋室1 6.0帖 洋室2 5.4帖 Loft 4.0帖 多目的室 6.0帖 | ガレージ(最大部分) 幅 6.0m ×奥行5.5m |
ー | シャッター 幅 5m ×高さ2.5m |
入居中 |
| No. | 1 |
|---|---|
| 間取り | その他 |
| 広さ | LDK11帖 洋室1 6.0帖 洋室2 5.4帖 Loft 4.0帖 多目的室 6.0帖 |
| 駐車場 | ガレージ(最大部分) 幅 6.0m ×奥行5.5m |
| 賃料 | ー |
| その他 | シャッター 幅 5m ×高さ2.5m |
| 空き状況 | 入居中 |
| 入居可能日 | |
| 入居予約 |
RECOMMEND
おすすめ物件
