CARBINS 01 愛知県 尾張旭市 桜ヶ丘町西413番地 ガレージハウス7戸
U-Proud
住居兼オフィス 業種により相談可能!2台駐車可能☆屋外駐車場スペース車種制限あり
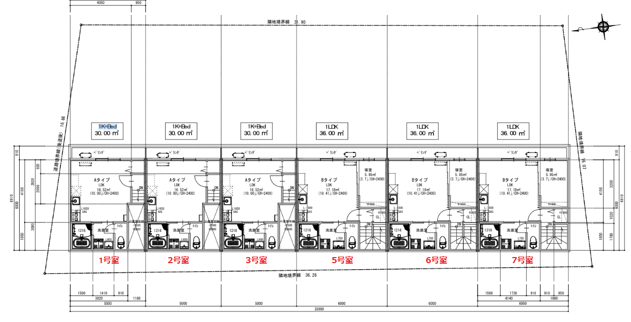
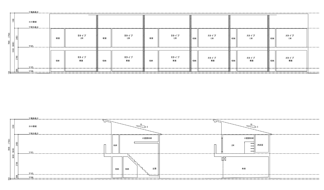
PLAN
見取り図
※画像をクリックすると拡大してご覧いただけます
SPEC
スペック
- 物件概要
-
■大阪府大東市御領4-46-1
■1棟6戸(1K 3戸+1LDK 3戸)
■2024年4月末完成予定
・2台駐車可能※屋外駐車スぺース車種制限あり愛車を雨や土ボコリの影響を受けることなく、また紫外線などからも保護し、塗装及びボディ-が傷まないよう長期的に守ることができます。
愛車と過ごす至福のガレージライフを愉しんでください♪
- 竣工日
- 2024年4月
- 交 通
・JR学研都市線『住道駅』徒歩37分
・地下鉄 長堀鶴見緑地線『門真南駅』徒歩26分- 設 備
-
【ガレージ内設備】
シャッター/電動
付け柱
給水湯設備
照明
換気扇/人感センサー
エアコン設置可
電気自動車充電用コンセント200V
テレビ用ジャック
【住宅設備】
エアコン/1基(LDK)
給湯器
照明器具
浴室
都市ガス
洗面台
モニター付インターホン
シャンプードレッサー - 賃貸条件
- ※満室のため非表示
- その他
- ペット不可
MAP
地 図
ROOM
部屋一覧
入居予約をご希望の方は左の予約ボタンを押してください。専用のフォームへ移動します。
- ●:キャンセル待ちなし
- まだご予約が入っていないお部屋です。
- ▲:キャンセル待ちあり
- すでにご予約が入っているお部屋です (やむを得ない事情で入居辞退される方も一定数おられますので、ご入居できる可能性は十分にあります。)
| 入居予約 | No. | 間取り | 広さ | 駐車場 | 賃料 | その他 | 空き状況 | 入居可能日 |
|---|---|---|---|---|---|---|---|---|
| 1号 | 1K+BED | 1K10.0帖 | ガレージ幅4.0m×奥行6.0m(最大部分) | ー | シャッター幅2.8m×高さ2.2m | 入居中 | ||
| 2号 | 1K+BED | 1K10.0帖 | ガレージ幅4.0m×奥行6.0m(最大部分) | ー | シャッター幅2.8m×高さ2.2m | 入居中 | ||
| 3号 | 1K+BED | 1K10.0帖 | ガレージ幅4.0m×奥行6.0m(最大部分) | ー | シャッター幅2.8m×高さ2.2m | 入居中 | ||
| 5号 | 1LDK(LDK+1部屋) | LDK10.41帖 洋室3.7帖 | ガレージ(最大部分) 幅 4.1m × 奥行 6.0m | ー | シャッター 幅 2.8m × 高さ 2.2m | 入居中 | ||
| 6号 | 1LDK(LDK+1部屋) | LDK10.41帖 洋室3.7帖 | ガレージ(最大部分) 幅 4.1m × 奥行 6.0m | ー | シャッター 幅 2.8m × 高さ 2.2m | 入居中 | ||
| 7号 | 1LDK(LDK+1部屋) | LDK10.41帖 洋室3.7帖 | ガレージ(最大部分) 幅 4.1m × 奥行 6.0m | ー | シャッター 幅 2.8m × 高さ 2.2m | 入居中 |
| No. | 1号 |
|---|---|
| 間取り | 1K+BED |
| 広さ | 1K10.0帖 |
| 駐車場 | ガレージ幅4.0m×奥行6.0m(最大部分) |
| 賃料 | ー |
| その他 | シャッター幅2.8m×高さ2.2m |
| 空き状況 | 入居中 |
| 入居可能日 | |
| 入居予約 | |
| No. | 2号 |
| 間取り | 1K+BED |
| 広さ | 1K10.0帖 |
| 駐車場 | ガレージ幅4.0m×奥行6.0m(最大部分) |
| 賃料 | ー |
| その他 | シャッター幅2.8m×高さ2.2m |
| 空き状況 | 入居中 |
| 入居可能日 | |
| 入居予約 | |
| No. | 3号 |
| 間取り | 1K+BED |
| 広さ | 1K10.0帖 |
| 駐車場 | ガレージ幅4.0m×奥行6.0m(最大部分) |
| 賃料 | ー |
| その他 | シャッター幅2.8m×高さ2.2m |
| 空き状況 | 入居中 |
| 入居可能日 | |
| 入居予約 | |
| No. | 5号 |
| 間取り | 1LDK(LDK+1部屋) |
| 広さ | LDK10.41帖 洋室3.7帖 |
| 駐車場 | ガレージ(最大部分) 幅 4.1m × 奥行 6.0m |
| 賃料 | ー |
| その他 | シャッター 幅 2.8m × 高さ 2.2m |
| 空き状況 | 入居中 |
| 入居可能日 | |
| 入居予約 | |
| No. | 6号 |
| 間取り | 1LDK(LDK+1部屋) |
| 広さ | LDK10.41帖 洋室3.7帖 |
| 駐車場 | ガレージ(最大部分) 幅 4.1m × 奥行 6.0m |
| 賃料 | ー |
| その他 | シャッター 幅 2.8m × 高さ 2.2m |
| 空き状況 | 入居中 |
| 入居可能日 | |
| 入居予約 | |
| No. | 7号 |
| 間取り | 1LDK(LDK+1部屋) |
| 広さ | LDK10.41帖 洋室3.7帖 |
| 駐車場 | ガレージ(最大部分) 幅 4.1m × 奥行 6.0m |
| 賃料 | ー |
| その他 | シャッター 幅 2.8m × 高さ 2.2m |
| 空き状況 | 入居中 |
| 入居可能日 | |
| 入居予約 |
RECOMMEND
おすすめ物件
