CARBINS 01 愛知県 尾張旭市 桜ヶ丘町西413番地 ガレージハウス7戸
99'GARAGE 南草津 Ⅱ期
両世帯ともに2台格納型ガレージ(乗用車+小型車)!両部屋共に角部屋!
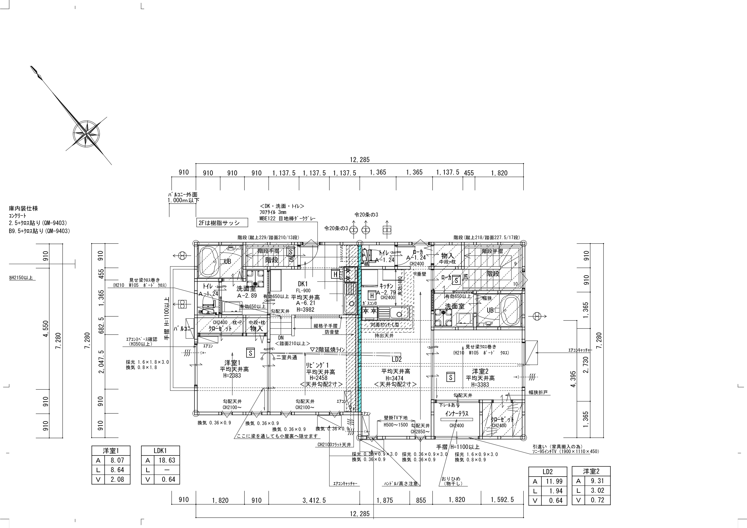
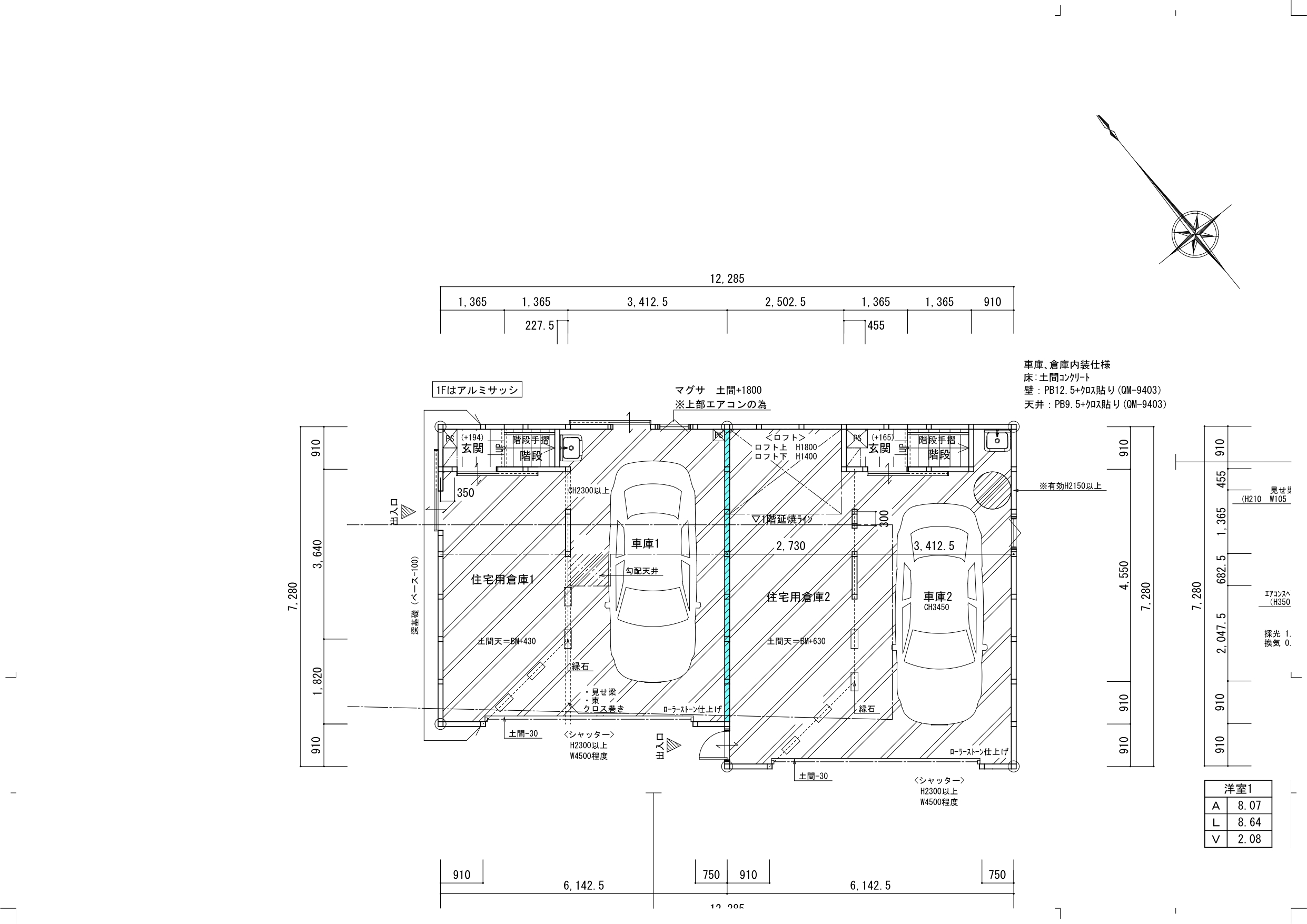
PLAN
見取り図
※画像をクリックすると拡大してご覧いただけます
SPEC
スペック
- 物件概要
-
JR南草津駅まで徒歩14分!!
2台格納型大型ガレージ!
2部屋共に角部屋!
F号室はガレージ内のフリースペースで車と共にくつろぎの時間を!!
G号室はLDKスキップフロア仕様で2階から車を眺める生活が可能!!「イオンモール草津」まで車で7分!
国道1号線、京滋バイパス、湖岸道路、名神高速など、主要な幹線道路すべてにアクセス良好!
ショッピング等の生活至便!
- 竣工日
- 2024年9月
- 交 通
・草津JCT、新名神「草津田上IC」まで車で10分
・国道1号線まで車で5分
・湖岸道路まで車で4分
・「JR南草津駅」まで車で5分、徒歩14分
- 設 備
-
・オール電化
・システムK(W1800・IHコンロ)、システムバス1216(浴室暖房乾燥機付き)
・対面キッチン(F号室はフレームシェルフ・G号室は吊戸棚)
・ウォシュレット
・カラードアホン
・給湯(電気)
・エアコン設置済(LDK×1)
・LDKフローリング仕上げ
・車庫シャッター:電動リモコンシャッター
・車庫床:ローラーストーン仕上げ - 賃貸条件
- ※満室のため非表示
- その他
-
ペット不可
「フレンドマート南草津店」まで徒歩5分
「ローソン南草津三丁目店」まで徒歩8分
「京都銀行南草津支店」まで車で3分
「南草津郵便局」まで車で3分
「ドラッグユタカ南草津店」まで車で4分
「イオンモール草津」まで車で7分
「草津市役所」まで車で9分
MAP
地 図
ROOM
部屋一覧
入居予約をご希望の方は左の予約ボタンを押してください。専用のフォームへ移動します。
- ●:キャンセル待ちなし
- まだご予約が入っていないお部屋です。
- ▲:キャンセル待ちあり
- すでにご予約が入っているお部屋です (やむを得ない事情で入居辞退される方も一定数おられますので、ご入居できる可能性は十分にあります。)
| 入居予約 | No. | 間取り | 広さ | 駐車場 | 賃料 | その他 | 空き状況 | 入居可能日 |
|---|---|---|---|---|---|---|---|---|
| F号室 | 1LDK(2台格納タイプ) | LDK11帖+洋室5.6帖+ガレージ内フリースペース3帖 | 幅6,142×奥行7,280×高さ2,400(最大部・壁芯寸法) | ー | シャッター幅4,500×高さ2,300 | 入居中 | ||
| G号室 | 1LDK(2台格納タイプ) | LDK12.5帖+洋室4.5帖 | ガレージ幅6,142×奥行6,370×高さ2,400(最大部・壁芯寸法) | ー | シャッター幅4,500×高さ2,300 | 入居中 |
| No. | F号室 |
|---|---|
| 間取り | 1LDK(2台格納タイプ) |
| 広さ | LDK11帖+洋室5.6帖+ガレージ内フリースペース3帖 |
| 駐車場 | 幅6,142×奥行7,280×高さ2,400(最大部・壁芯寸法) |
| 賃料 | ー |
| その他 | シャッター幅4,500×高さ2,300 |
| 空き状況 | 入居中 |
| 入居可能日 | |
| 入居予約 | |
| No. | G号室 |
| 間取り | 1LDK(2台格納タイプ) |
| 広さ | LDK12.5帖+洋室4.5帖 |
| 駐車場 | ガレージ幅6,142×奥行6,370×高さ2,400(最大部・壁芯寸法) |
| 賃料 | ー |
| その他 | シャッター幅4,500×高さ2,300 |
| 空き状況 | 入居中 |
| 入居可能日 | |
| 入居予約 |
RECOMMEND
おすすめ物件
