CARBINS 01 愛知県 尾張旭市 桜ヶ丘町西413番地 ガレージハウス7戸
栗東ベース
栗東市初登場!! 【周辺施設】 ローソン栗東綣5丁目店まで徒歩6分、車で2分 アル・プラザ栗東まで徒歩9分、車で3分 ドラッグストアコスモスへそ店まで徒歩11分、車で4分 滋賀銀行大宝店まで徒歩9分、車で3分
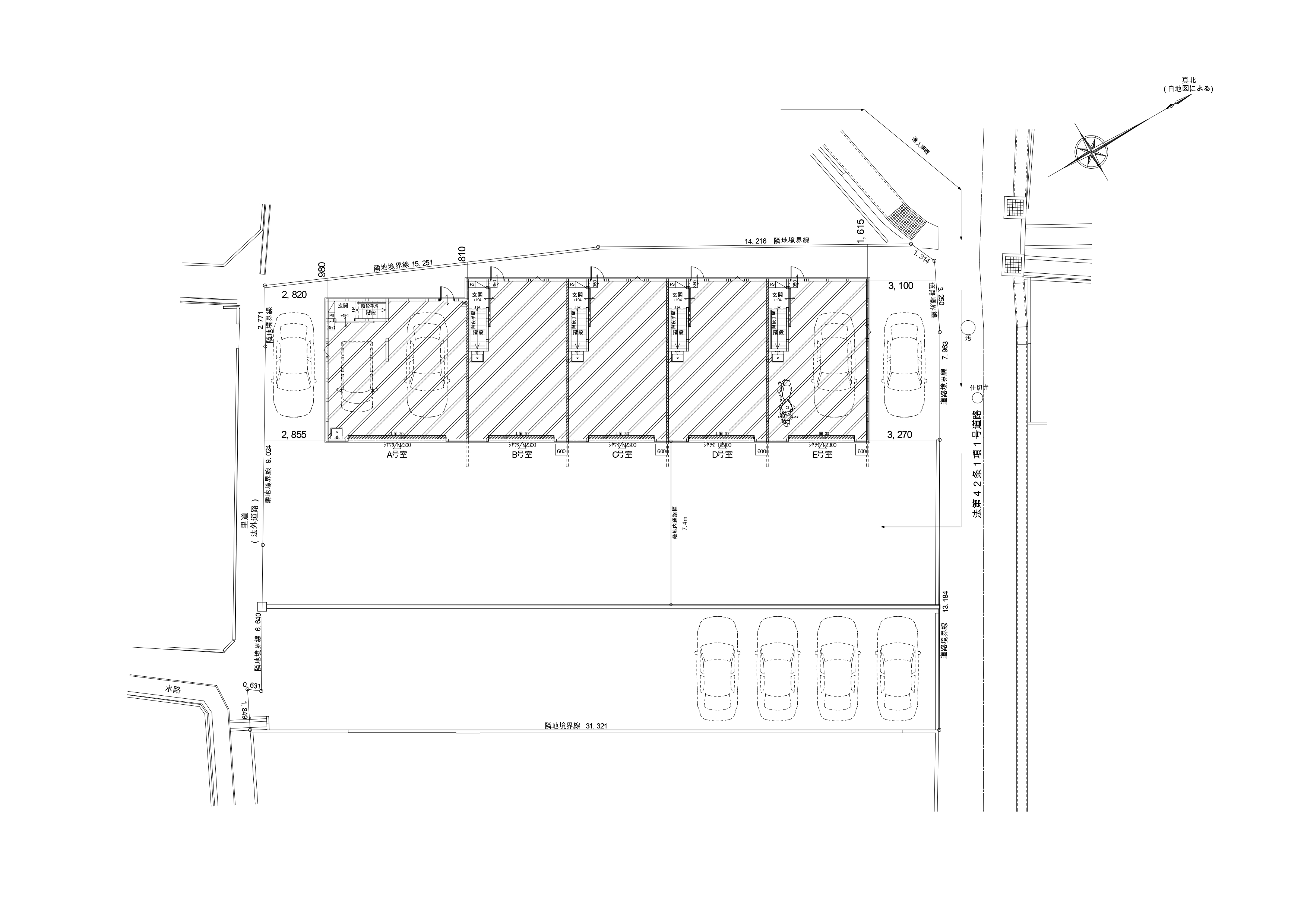
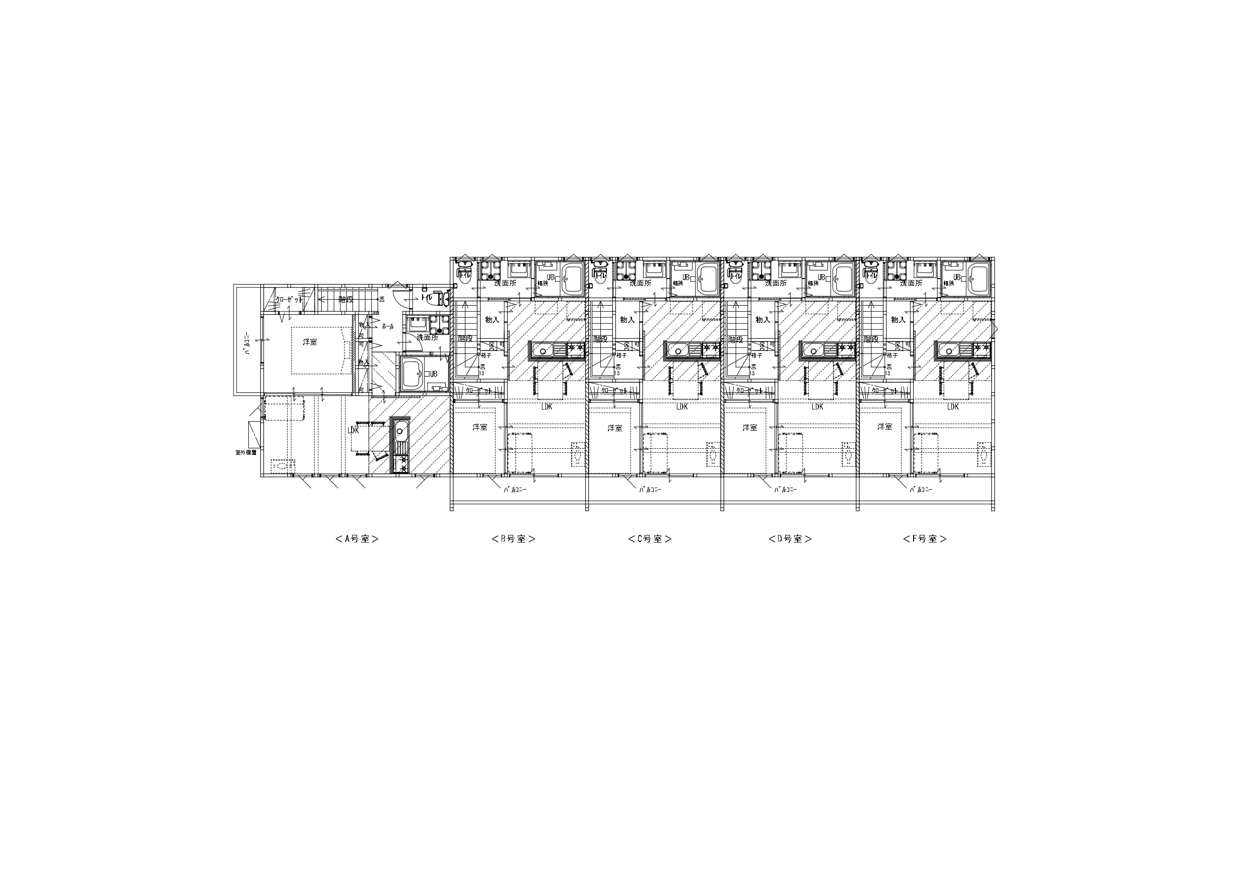
PLAN
見取り図
※画像をクリックすると拡大してご覧いただけます
SPEC
スペック
- 物件概要
-
物件住所:滋賀県栗東市綣8丁目17-34
・2台格納型の大型ガレージあり(A号室のみ)
・ガレージ外に屋外駐車可能(別途料金)
・近隣環境良好・生活至便!(駅徒歩6分)
・アルプラザ徒歩9分
・コンビニ・ドラックストア徒歩圏内
・敷地内通路幅員6M有り
- 竣工日
- 2024年7月
- 交 通
栗東駅まで徒歩6分(500m) 国道1号線まで車で11分 栗東インターまで車で12分 湖岸道路まで車で14分
★栗東大宝郵便局側の道から現地へ進入下さい。広い道幅のルートです。
- 設 備
-
システムK(W1800・ガスコンロ)、
システムバス1216(浴室暖房乾燥機付き)
対面キッチン(吊戸棚フレームシェルフ)
ウォシュレット
カラードアホン
給湯(ガス)
エアコン設置済(LDK×1)
LDKフローリング仕上げ
車庫シャッター:電動リモコンシャッター
車庫床:ローラーストーン仕上げ
- 賃貸条件
- ※満室のため非表示
- その他
-
ペット不可
全5戸
MAP
地 図
ROOM
部屋一覧
入居予約をご希望の方は左の予約ボタンを押してください。専用のフォームへ移動します。
- ●:キャンセル待ちなし
- まだご予約が入っていないお部屋です。
- ▲:キャンセル待ちあり
- すでにご予約が入っているお部屋です (やむを得ない事情で入居辞退される方も一定数おられますので、ご入居できる可能性は十分にあります。)
| 入居予約 | No. | 間取り | 広さ | 駐車場 | 賃料 | その他 | 空き状況 | 入居可能日 |
|---|---|---|---|---|---|---|---|---|
| A | 1LDK(LDK+1部屋) | LDK:10.5帖 洋室:5.3帖 | 2台格納型の大型ガレージ ガレージ(最大部分) 幅 6.37 × 奥行 6.37 |
ー | シャッター 幅 4.0m × 高さ 2.3m | 入居中 | ||
| B | 1LDK(LDK+1部屋) | LDK:9.8帖 洋室:2.8帖 | ガレージ(最大部分) 幅 4.5m × 奥行 7.3m | ー | シャッター 幅 2.9m × 高さ 2.3m | 入居中 | ||
| C | 1LDK(LDK+1部屋) | LDK:9.8帖 洋室:2.8帖 | ガレージ(最大部分) 幅 4.5m × 奥行 7.3m | ー | シャッター 幅 2.9m × 高さ 2.3m | 入居中 | ||
| D | 1LDK(LDK+1部屋) | LDK:9.8帖 洋室:2.8帖 | ガレージ(最大部分) 幅 4.5m × 奥行 7.3m | ー | シャッター 幅 2.9m × 高さ 2.3m | 入居中 | ||
| E | 1LDK(LDK+1部屋) | LDK:9.8帖 洋室:2.8帖 | ガレージ(最大部分) 幅 4.5m × 奥行 7.3m | ー | シャッター 幅 2.9m × 高さ 2.3m | 入居中 |
| No. | A |
|---|---|
| 間取り | 1LDK(LDK+1部屋) |
| 広さ | LDK:10.5帖 洋室:5.3帖 |
| 駐車場 | 2台格納型の大型ガレージ ガレージ(最大部分) 幅 6.37 × 奥行 6.37 |
| 賃料 | ー |
| その他 | シャッター 幅 4.0m × 高さ 2.3m |
| 空き状況 | 入居中 |
| 入居可能日 | |
| 入居予約 | |
| No. | B |
| 間取り | 1LDK(LDK+1部屋) |
| 広さ | LDK:9.8帖 洋室:2.8帖 |
| 駐車場 | ガレージ(最大部分) 幅 4.5m × 奥行 7.3m |
| 賃料 | ー |
| その他 | シャッター 幅 2.9m × 高さ 2.3m |
| 空き状況 | 入居中 |
| 入居可能日 | |
| 入居予約 | |
| No. | C |
| 間取り | 1LDK(LDK+1部屋) |
| 広さ | LDK:9.8帖 洋室:2.8帖 |
| 駐車場 | ガレージ(最大部分) 幅 4.5m × 奥行 7.3m |
| 賃料 | ー |
| その他 | シャッター 幅 2.9m × 高さ 2.3m |
| 空き状況 | 入居中 |
| 入居可能日 | |
| 入居予約 | |
| No. | D |
| 間取り | 1LDK(LDK+1部屋) |
| 広さ | LDK:9.8帖 洋室:2.8帖 |
| 駐車場 | ガレージ(最大部分) 幅 4.5m × 奥行 7.3m |
| 賃料 | ー |
| その他 | シャッター 幅 2.9m × 高さ 2.3m |
| 空き状況 | 入居中 |
| 入居可能日 | |
| 入居予約 | |
| No. | E |
| 間取り | 1LDK(LDK+1部屋) |
| 広さ | LDK:9.8帖 洋室:2.8帖 |
| 駐車場 | ガレージ(最大部分) 幅 4.5m × 奥行 7.3m |
| 賃料 | ー |
| その他 | シャッター 幅 2.9m × 高さ 2.3m |
| 空き状況 | 入居中 |
| 入居可能日 | |
| 入居予約 |
RECOMMEND
おすすめ物件
