CARBINS 01 愛知県 尾張旭市 桜ヶ丘町西413番地 ガレージハウス7戸
ガレージハウス パシフローラ
愛知県知立市八ツ田町にて広々専用庭、前面外駐車場1台付きのガレージ付きアパートを建設中!人気の1K,1LDKの間取りバリエーションからお選びください。
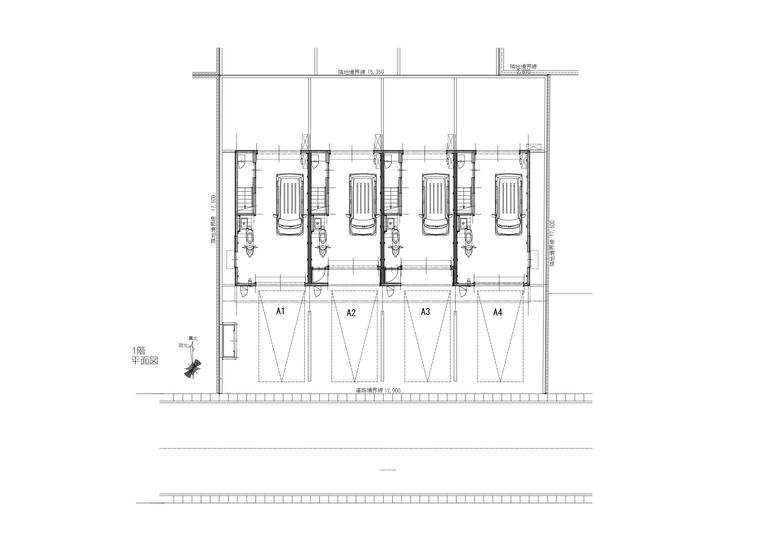
PLAN
見取り図
※画像をクリックすると拡大してご覧いただけます
SPEC
スペック
- 物件概要
-
・ガレージ外に専用スペース(1台駐車可)
・各戸専用庭付
・前面道路幅員6M有り - 竣工日
- 2024年5月
- 交 通
・名鉄名古屋本線牛田駅徒歩13分
・伊勢湾岸自動車道 豊田南インターチェンジ車で10分- 設 備
-
◆ガレージ内設備
・ シャッター /電動
・ 給水湯設備 /有
・ 換気扇 /人感センサー
・ 電気自動車充電用コンセント200V /有
・ テレビ用ジャック /有
・ 付け柱 /有
・ 照明 /レール式・人感センサー
・ エアコン設置 /可
・ ガスコック /有
・ 車止め /有・非固定
◆住居設備
・ エアコン /1基(LDK)
・ 照明器具 /有
・ ガス /プロパンガス
・ モニター付インターホン /有
・ 給湯器 /有
・ 浴室 /有
・ 洗面台 /有
・ シャンプードレッサー /有 - 賃貸条件
- ※満室のため非表示
- その他
-
ペット不可
全7戸
1LDK 3戸
1K 4戸
MAP
地 図
ROOM
部屋一覧
入居予約をご希望の方は左の予約ボタンを押してください。専用のフォームへ移動します。
- ●:キャンセル待ちなし
- まだご予約が入っていないお部屋です。
- ▲:キャンセル待ちあり
- すでにご予約が入っているお部屋です (やむを得ない事情で入居辞退される方も一定数おられますので、ご入居できる可能性は十分にあります。)
| 入居予約 | No. | 間取り | 広さ | 駐車場 | 賃料 | その他 | 空き状況 | 入居可能日 |
|---|---|---|---|---|---|---|---|---|
| A1 | 1K(1部屋+キッチン) | 洋室10.3帖 | 【ガレージ】幅 2.8m × 奥行 7.1m | ー | 【シャッター】幅 2.6m × 高さ 2.2m | 入居中 | ||
| A2 | 1K(1部屋+キッチン) | 洋室10.3帖 | 【ガレージ】幅 2.8m × 奥行 6.2m | ー | 【シャッター】幅 2.6m × 高さ 2.2m | 入居中 | ||
| A3 | 1K(1部屋+キッチン) | 洋室10.3帖 | 【ガレージ】幅 2.8m × 奥行 6.2m | ー | 【シャッター】幅 2.6m × 高さ 2.2m | 入居中 | ||
| A4 | 1K(1部屋+キッチン) | 洋室10.3帖 | 【ガレージ】幅 2.8m × 奥行 7.1m | ー | 【シャッター】幅 2.6m × 高さ 2.2m | 入居中 | ||
| B1 | 1LDK(LDK+1部屋) | LDK:12.1帖 洋室 :3.1帖 | 【ガレージ】幅 3.2m × 奥行 8.0m | ー | 【シャッター】幅 2.9m × 高さ 2.2m | 入居中 | ||
| B2 | 1LDK(LDK+1部屋) | LDK:12.1帖 洋室 :3.1帖 | 【ガレージ】幅 3.2m × 奥行 7.1m | ー | 【シャッター】幅 2.8m × 高さ 2.2m | 入居中 | ||
| B3 | 1LDK(LDK+1部屋) | LDK:12.1帖 洋室 :3.1帖 | 【ガレージ】幅 3.2m × 奥行 8.0m | ー | 【シャッター】幅 2.9m × 高さ 2.2m | 入居中 |
| No. | A1 |
|---|---|
| 間取り | 1K(1部屋+キッチン) |
| 広さ | 洋室10.3帖 |
| 駐車場 | 【ガレージ】幅 2.8m × 奥行 7.1m |
| 賃料 | ー |
| その他 | 【シャッター】幅 2.6m × 高さ 2.2m |
| 空き状況 | 入居中 |
| 入居可能日 | |
| 入居予約 | |
| No. | A2 |
| 間取り | 1K(1部屋+キッチン) |
| 広さ | 洋室10.3帖 |
| 駐車場 | 【ガレージ】幅 2.8m × 奥行 6.2m |
| 賃料 | ー |
| その他 | 【シャッター】幅 2.6m × 高さ 2.2m |
| 空き状況 | 入居中 |
| 入居可能日 | |
| 入居予約 | |
| No. | A3 |
| 間取り | 1K(1部屋+キッチン) |
| 広さ | 洋室10.3帖 |
| 駐車場 | 【ガレージ】幅 2.8m × 奥行 6.2m |
| 賃料 | ー |
| その他 | 【シャッター】幅 2.6m × 高さ 2.2m |
| 空き状況 | 入居中 |
| 入居可能日 | |
| 入居予約 | |
| No. | A4 |
| 間取り | 1K(1部屋+キッチン) |
| 広さ | 洋室10.3帖 |
| 駐車場 | 【ガレージ】幅 2.8m × 奥行 7.1m |
| 賃料 | ー |
| その他 | 【シャッター】幅 2.6m × 高さ 2.2m |
| 空き状況 | 入居中 |
| 入居可能日 | |
| 入居予約 | |
| No. | B1 |
| 間取り | 1LDK(LDK+1部屋) |
| 広さ | LDK:12.1帖 洋室 :3.1帖 |
| 駐車場 | 【ガレージ】幅 3.2m × 奥行 8.0m |
| 賃料 | ー |
| その他 | 【シャッター】幅 2.9m × 高さ 2.2m |
| 空き状況 | 入居中 |
| 入居可能日 | |
| 入居予約 | |
| No. | B2 |
| 間取り | 1LDK(LDK+1部屋) |
| 広さ | LDK:12.1帖 洋室 :3.1帖 |
| 駐車場 | 【ガレージ】幅 3.2m × 奥行 7.1m |
| 賃料 | ー |
| その他 | 【シャッター】幅 2.8m × 高さ 2.2m |
| 空き状況 | 入居中 |
| 入居可能日 | |
| 入居予約 | |
| No. | B3 |
| 間取り | 1LDK(LDK+1部屋) |
| 広さ | LDK:12.1帖 洋室 :3.1帖 |
| 駐車場 | 【ガレージ】幅 3.2m × 奥行 8.0m |
| 賃料 | ー |
| その他 | 【シャッター】幅 2.9m × 高さ 2.2m |
| 空き状況 | 入居中 |
| 入居可能日 | |
| 入居予約 |
RECOMMEND
おすすめ物件
