CARBINS 01 愛知県 尾張旭市 桜ヶ丘町西413番地 ガレージハウス7戸
Midhill (ミッドヒル)
大府市に新規物件登場!!
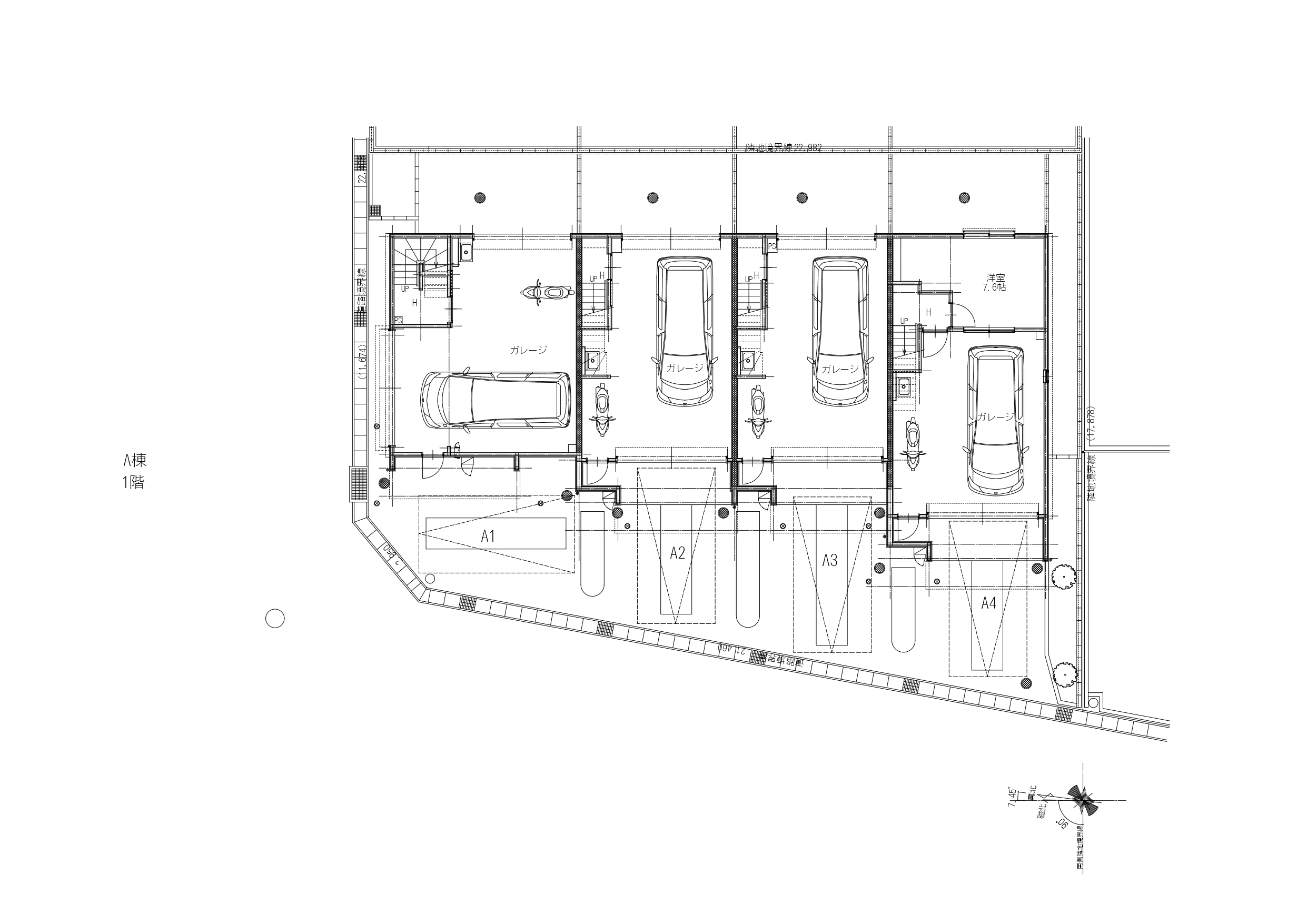
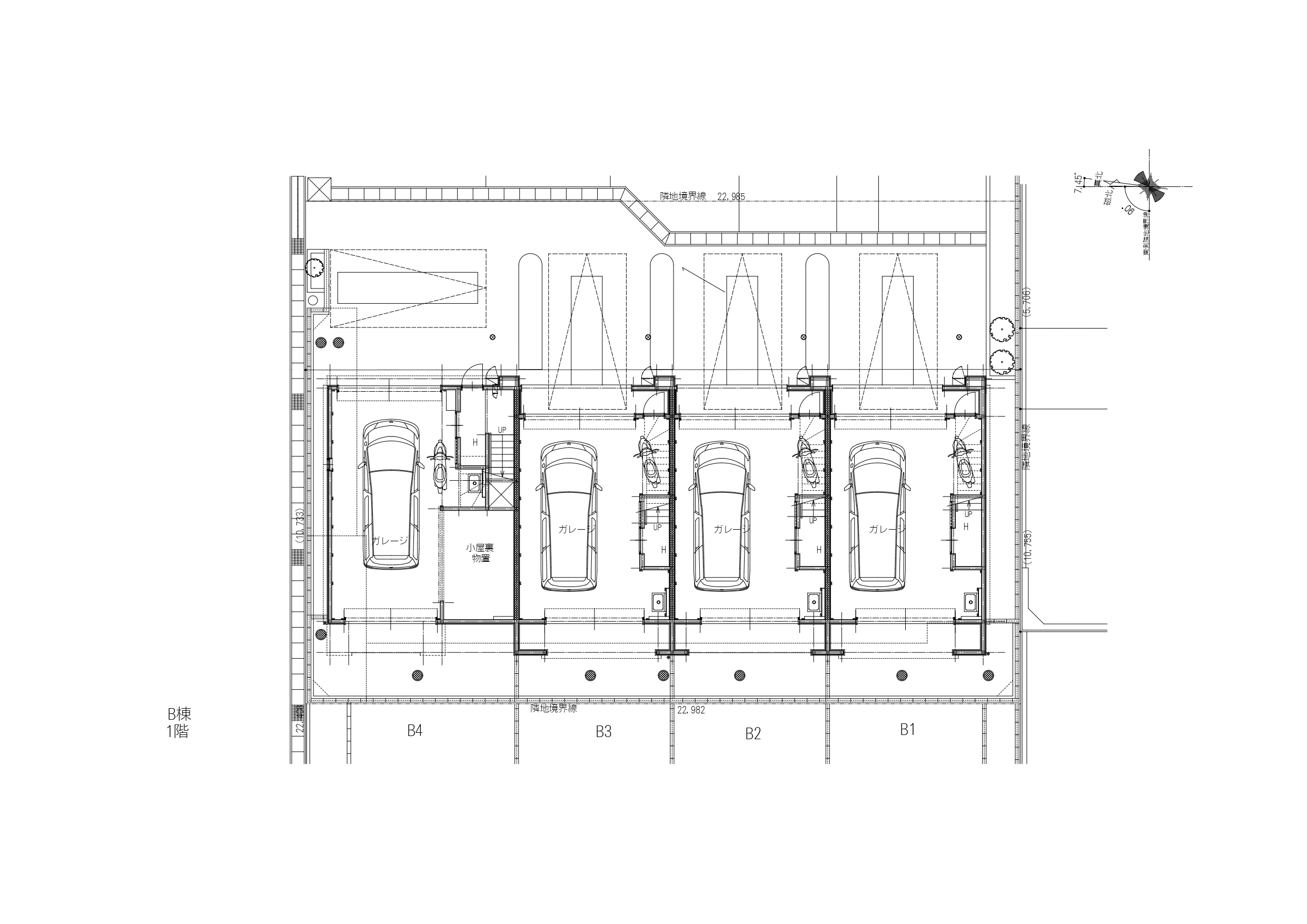
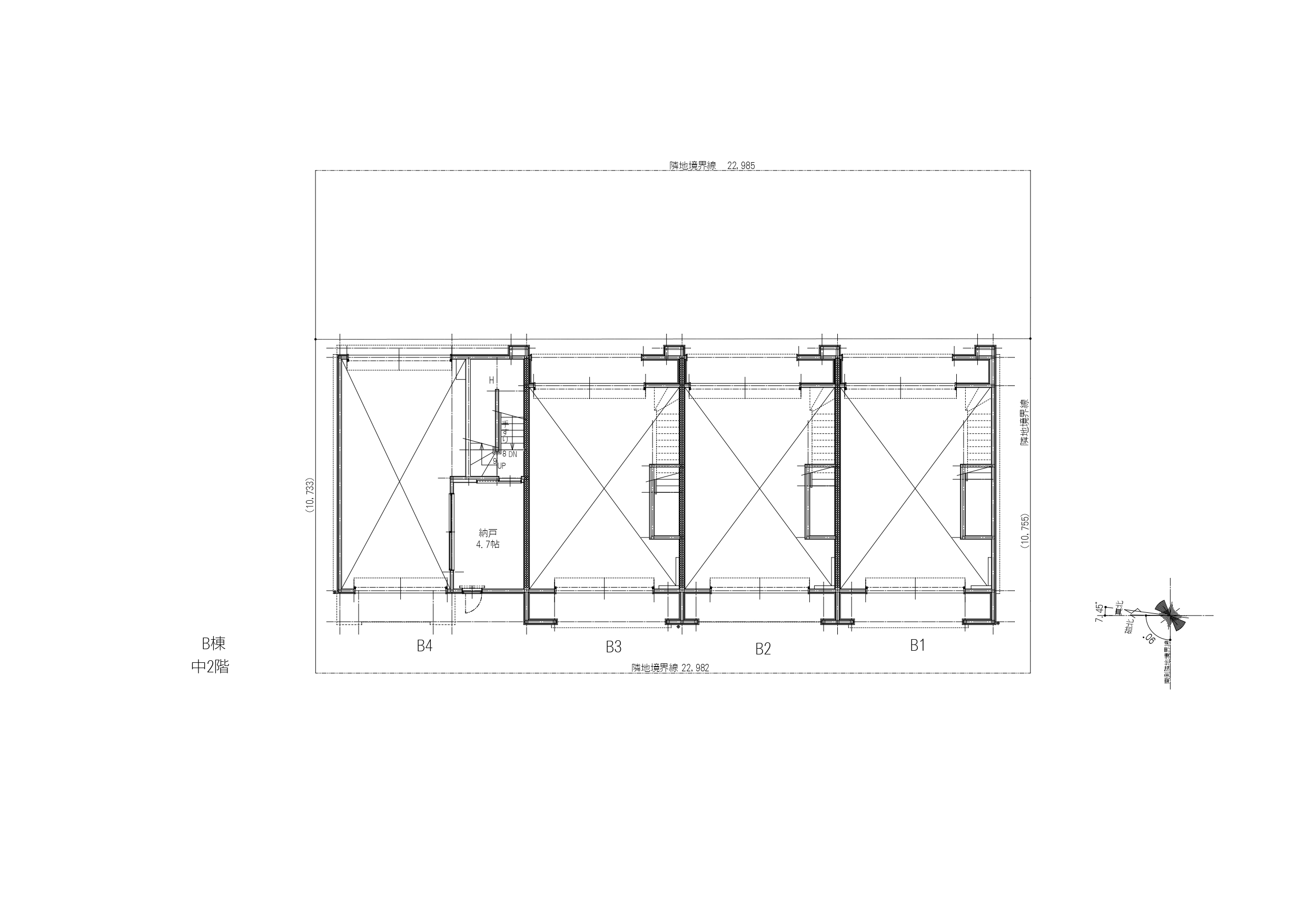
PLAN
見取り図
※画像をクリックすると拡大してご覧いただけます
SPEC
スペック
- 物件概要
-
■愛知県大府市追分町五丁目 262番、263番、264番、265番
■1棟4戸(1LDK 3戸+2LDK 1戸)
■2024年2月中旬完成予定
・A棟ガレージ内と別に専用駐車場有り
・A棟専用庭付き
・敷地内防犯カメラ付き - 竣工日
- 2024年2月
- 交 通
・国道23号線 共和ICまで車で約6分
・伊勢湾岸道路・名古屋高速道路・知多半島道路・名古屋第二環状自動車道アクセス抜群
・東海道本線 大府駅まで車で5分- 設 備
-
【ガレージ内設備】
シャッター/電動
付け柱
給水湯設備
照明/レール式・人感センサー※ダウンライト
換気扇/人感センサー
エアコン設置可
電気自動車充電用コンセント200V
ガスコック
テレビ用ジャック
宅配ボックス
【住宅設備】
エアコン/1基(LDK)
給湯器
照明器具
浴室
都市ガス
洗面台
モニター付インターホン
シャンプードレッサー - 賃貸条件
- ※満室のため非表示
- その他
- ペット不可
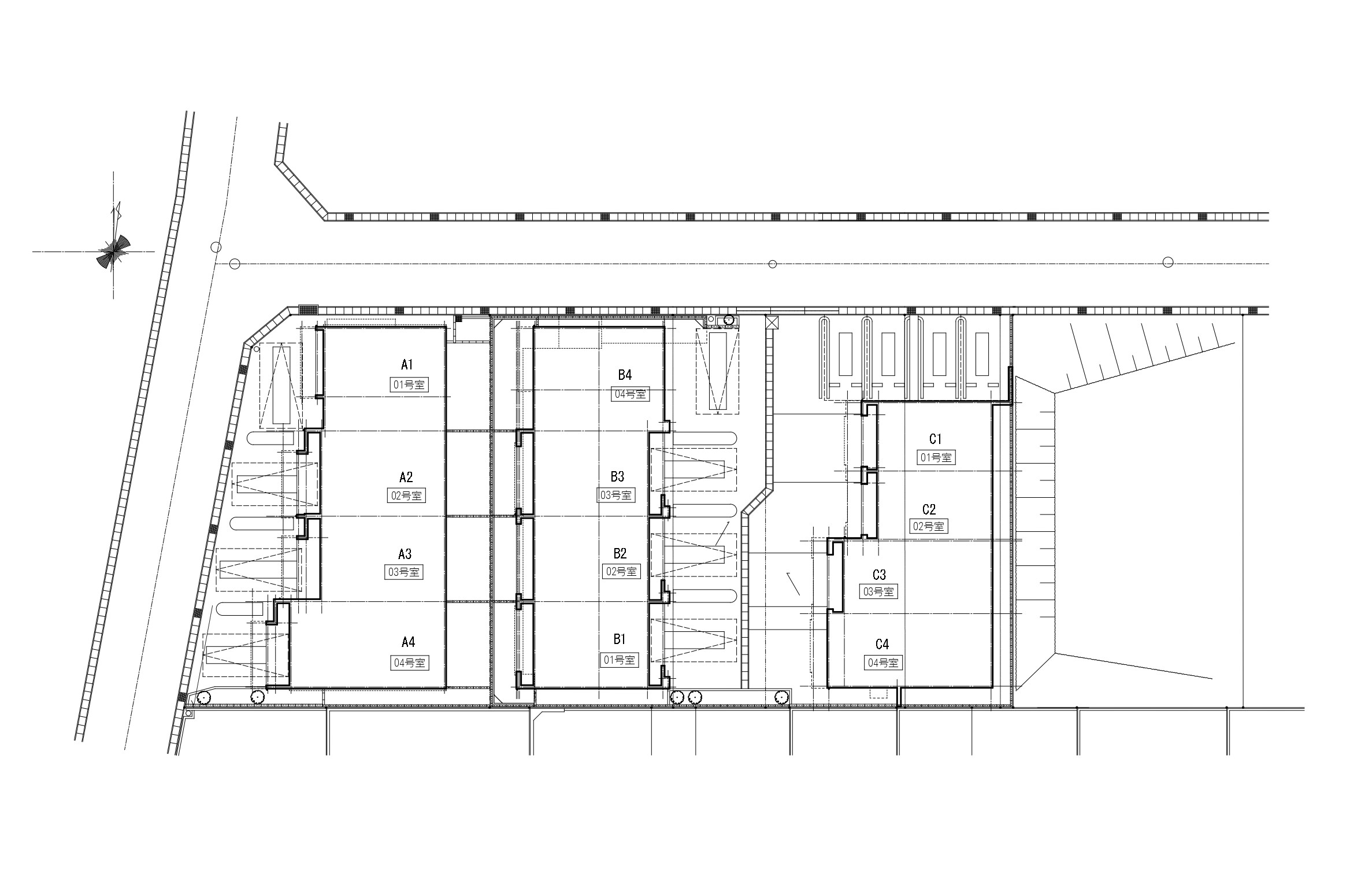
MAP
地 図
ROOM
部屋一覧
入居予約をご希望の方は左の予約ボタンを押してください。専用のフォームへ移動します。
- ●:キャンセル待ちなし
- まだご予約が入っていないお部屋です。
- ▲:キャンセル待ちあり
- すでにご予約が入っているお部屋です (やむを得ない事情で入居辞退される方も一定数おられますので、ご入居できる可能性は十分にあります。)
| 入居予約 | No. | 間取り | 広さ | 駐車場 | 賃料 | その他 | 空き状況 | 入居可能日 |
|---|---|---|---|---|---|---|---|---|
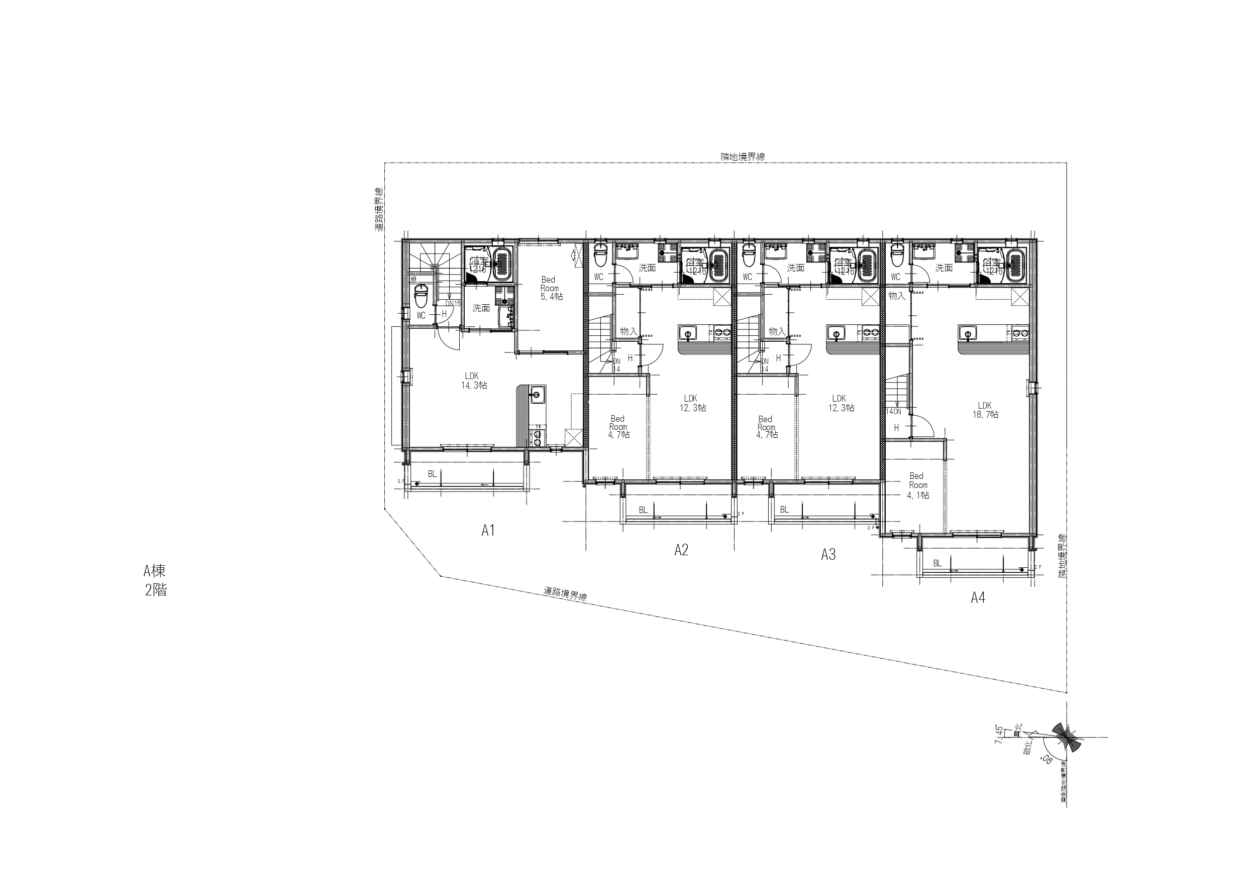
| A1 | 1LDK | LDK14.3帖+2F洋室5.4帖 | ガレージ幅7.0m×奥行6.0m(最大部分) | ー | シャッター幅3.7m×高さ2.35m | 入居中 | ||
| A2 | 1LDK | LDK12.3帖+2F洋室4.7帖 | ガレージ幅5.0m×奥行7.0m(最大部分) | ー | シャッター幅3.5m×高さ2.2m | 入居中 | ||
| A3 | 1LDK | LDK12.3帖+2F洋室4.7帖 | ガレージ幅5.0m×奥行7.0m(最大部分) | ー | シャッター幅3.5m×高さ2.2m | 入居中 | ||
| A4 | 2LDK | LDK18.7帖+1F洋室7.6帖+2F洋室4.1帖 | ガレージ幅5.0m×奥行8.9m(最大部分) | ー | シャッター幅3.5m×高さ2.2m | 入居中 | ||
| B1 | 1LDK | LDK10.7帖+2F洋室4.4帖 | ガレージ幅5.0m×奥行6.5m(最大部分) | ー | シャッター幅3.5m×高さ2.2m | 入居中 | ||
| B2 | 1LDK | LDK10.7帖+2F洋室4.4帖 | ガレージ幅5.0m×奥行6.5m(最大部分) | ー | シャッター幅3.5m×高さ2.4m | 入居中 | ||
| B3 | 1LDK | LDK10.7帖+2F洋室4.4帖 | ガレージ幅5.0m×奥行6.5m(最大部分) | ー | シャッター幅3.5m×高さ2.5m | 入居中 | ||
| B4 | 2LDK | LDK13.3帖+中二階洋室4.7帖+洋室4.3帖 | ガレージ幅6.0m×奥行7.5m(最大部分) | ー | シャッター幅3.2m×高さ2.4m | 入居中 | ||
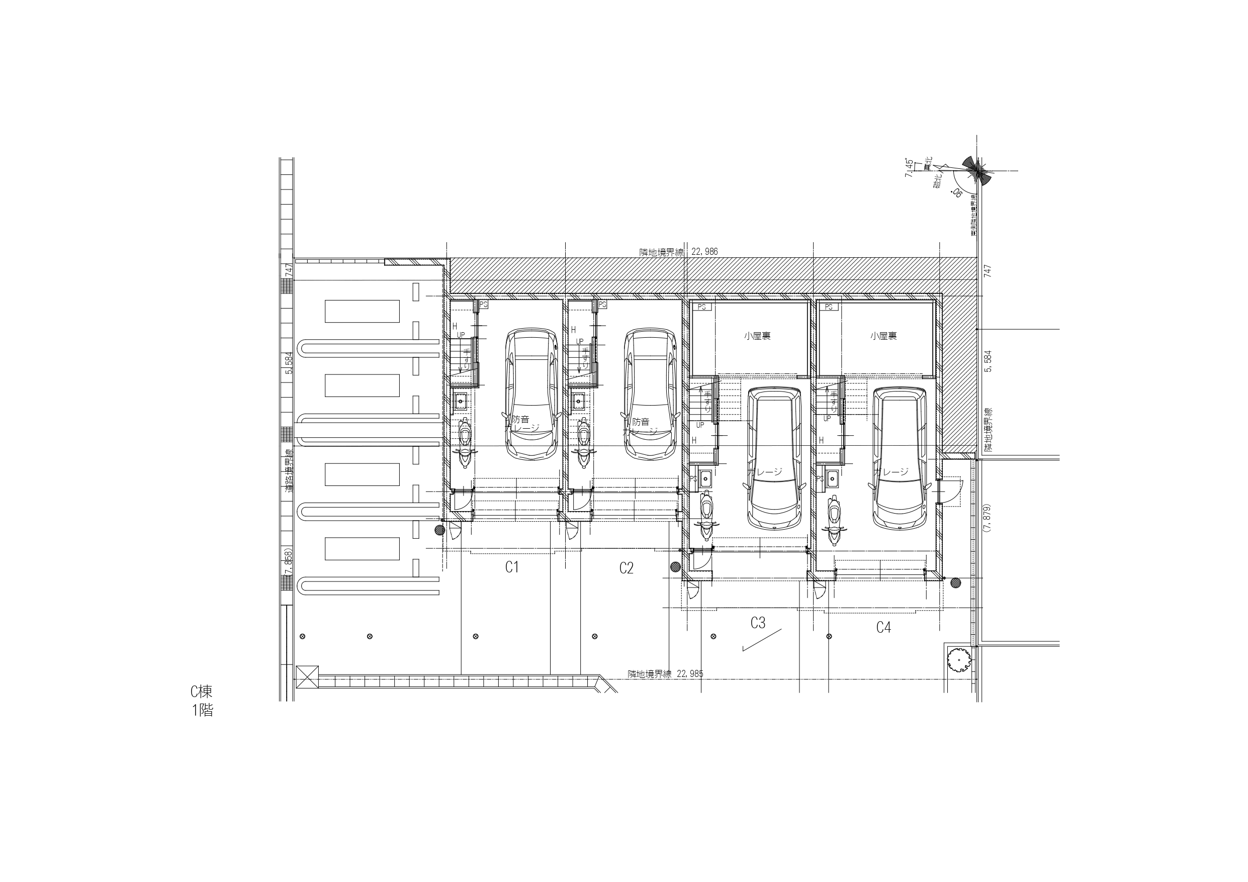
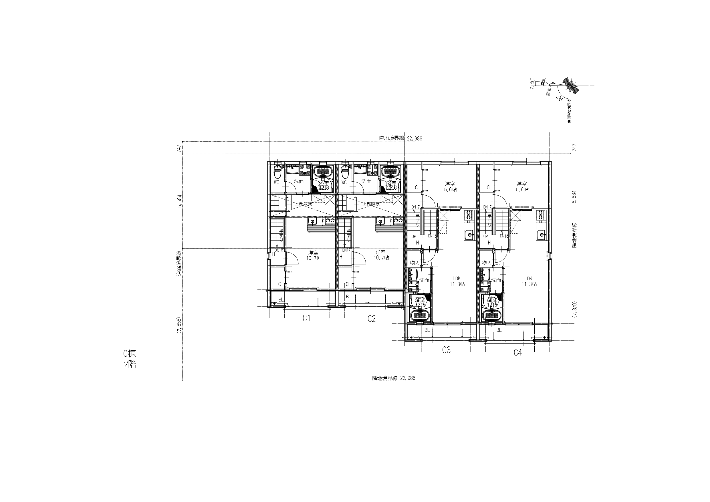
| C1 | 1K+ロフト | LDK10.7帖+ロフト4.4帖 | ガレージ幅4.0m×奥行6.5m(最大部分) | ー | シャッター幅2.8m×高さ2.4m | 入居中 | ||
| C2 | 1K+ロフト | LDK10.7帖+ロフト4.4帖 | ガレージ幅4.0m×奥行6.5m(最大部分) | ー | シャッター幅2.8m×高さ2.2m | 入居中 | ||
| C3 | 2LDK | LDK11.3帖+中二階洋室5.0帖+洋室5.6帖 | ガレージ幅4.2m×奥行6.7m(最大部分) | ー | シャッター幅3.1m×高さ2.4m | 入居中 | ||
| C4 | 2LDK | LDK11.3帖+中二階洋室5.0帖+洋室5.6帖 | ガレージ幅4.2m×奥行6.7m(最大部分) | ー | シャッター幅2.9m×高さ2.2m | 入居中 |
| No. | A1 |
|---|---|
| 間取り | 1LDK |
| 広さ | LDK14.3帖+2F洋室5.4帖 |
| 駐車場 | ガレージ幅7.0m×奥行6.0m(最大部分) |
| 賃料 | ー |
| その他 | シャッター幅3.7m×高さ2.35m |
| 空き状況 | 入居中 |
| 入居可能日 | |
| 入居予約 | |
| No. | A2 |
| 間取り | 1LDK |
| 広さ | LDK12.3帖+2F洋室4.7帖 |
| 駐車場 | ガレージ幅5.0m×奥行7.0m(最大部分) |
| 賃料 | ー |
| その他 | シャッター幅3.5m×高さ2.2m |
| 空き状況 | 入居中 |
| 入居可能日 | |
| 入居予約 | |
| No. | A3 |
| 間取り | 1LDK |
| 広さ | LDK12.3帖+2F洋室4.7帖 |
| 駐車場 | ガレージ幅5.0m×奥行7.0m(最大部分) |
| 賃料 | ー |
| その他 | シャッター幅3.5m×高さ2.2m |
| 空き状況 | 入居中 |
| 入居可能日 | |
| 入居予約 | |
| No. | A4 |
| 間取り | 2LDK |
| 広さ | LDK18.7帖+1F洋室7.6帖+2F洋室4.1帖 |
| 駐車場 | ガレージ幅5.0m×奥行8.9m(最大部分) |
| 賃料 | ー |
| その他 | シャッター幅3.5m×高さ2.2m |
| 空き状況 | 入居中 |
| 入居可能日 | |
| 入居予約 | |
| No. | B1 |
| 間取り | 1LDK |
| 広さ | LDK10.7帖+2F洋室4.4帖 |
| 駐車場 | ガレージ幅5.0m×奥行6.5m(最大部分) |
| 賃料 | ー |
| その他 | シャッター幅3.5m×高さ2.2m |
| 空き状況 | 入居中 |
| 入居可能日 | |
| 入居予約 | |
| No. | B2 |
| 間取り | 1LDK |
| 広さ | LDK10.7帖+2F洋室4.4帖 |
| 駐車場 | ガレージ幅5.0m×奥行6.5m(最大部分) |
| 賃料 | ー |
| その他 | シャッター幅3.5m×高さ2.4m |
| 空き状況 | 入居中 |
| 入居可能日 | |
| 入居予約 | |
| No. | B3 |
| 間取り | 1LDK |
| 広さ | LDK10.7帖+2F洋室4.4帖 |
| 駐車場 | ガレージ幅5.0m×奥行6.5m(最大部分) |
| 賃料 | ー |
| その他 | シャッター幅3.5m×高さ2.5m |
| 空き状況 | 入居中 |
| 入居可能日 | |
| 入居予約 | |
| No. | B4 |
| 間取り | 2LDK |
| 広さ | LDK13.3帖+中二階洋室4.7帖+洋室4.3帖 |
| 駐車場 | ガレージ幅6.0m×奥行7.5m(最大部分) |
| 賃料 | ー |
| その他 | シャッター幅3.2m×高さ2.4m |
| 空き状況 | 入居中 |
| 入居可能日 | |
| 入居予約 | |
| No. | C1 |
| 間取り | 1K+ロフト |
| 広さ | LDK10.7帖+ロフト4.4帖 |
| 駐車場 | ガレージ幅4.0m×奥行6.5m(最大部分) |
| 賃料 | ー |
| その他 | シャッター幅2.8m×高さ2.4m |
| 空き状況 | 入居中 |
| 入居可能日 | |
| 入居予約 | |
| No. | C2 |
| 間取り | 1K+ロフト |
| 広さ | LDK10.7帖+ロフト4.4帖 |
| 駐車場 | ガレージ幅4.0m×奥行6.5m(最大部分) |
| 賃料 | ー |
| その他 | シャッター幅2.8m×高さ2.2m |
| 空き状況 | 入居中 |
| 入居可能日 | |
| 入居予約 | |
| No. | C3 |
| 間取り | 2LDK |
| 広さ | LDK11.3帖+中二階洋室5.0帖+洋室5.6帖 |
| 駐車場 | ガレージ幅4.2m×奥行6.7m(最大部分) |
| 賃料 | ー |
| その他 | シャッター幅3.1m×高さ2.4m |
| 空き状況 | 入居中 |
| 入居可能日 | |
| 入居予約 | |
| No. | C4 |
| 間取り | 2LDK |
| 広さ | LDK11.3帖+中二階洋室5.0帖+洋室5.6帖 |
| 駐車場 | ガレージ幅4.2m×奥行6.7m(最大部分) |
| 賃料 | ー |
| その他 | シャッター幅2.9m×高さ2.2m |
| 空き状況 | 入居中 |
| 入居可能日 | |
| 入居予約 |
RECOMMEND
おすすめ物件
