CARBINS 01 愛知県 尾張旭市 桜ヶ丘町西413番地 ガレージハウス7戸
Garage Lusso
High GradeなG-styleclub登場!
PLAN
見取り図
※画像をクリックすると拡大してご覧いただけます
SPEC
スペック
- 物件概要
-
■大阪府大阪市鶴見区今津北4丁目
■2LDK1戸/1LDK3戸(うち1戸はスキップフロアタイプ)
■2022年4月末完成
〇G-styleclub初!ハイグレードなガレージ付きアパート登場。
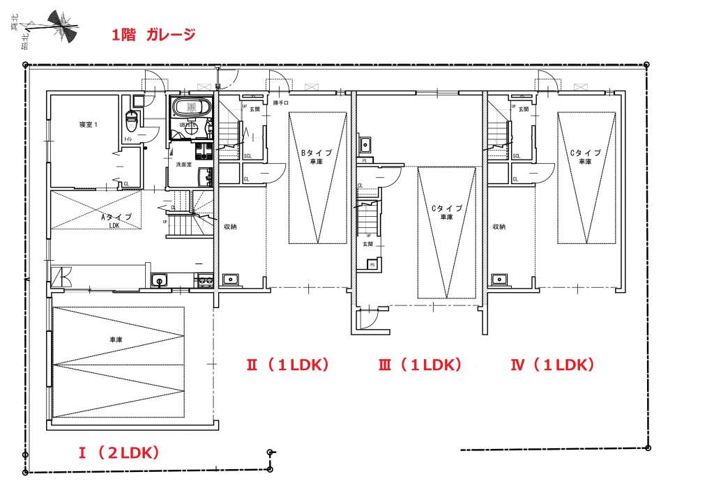
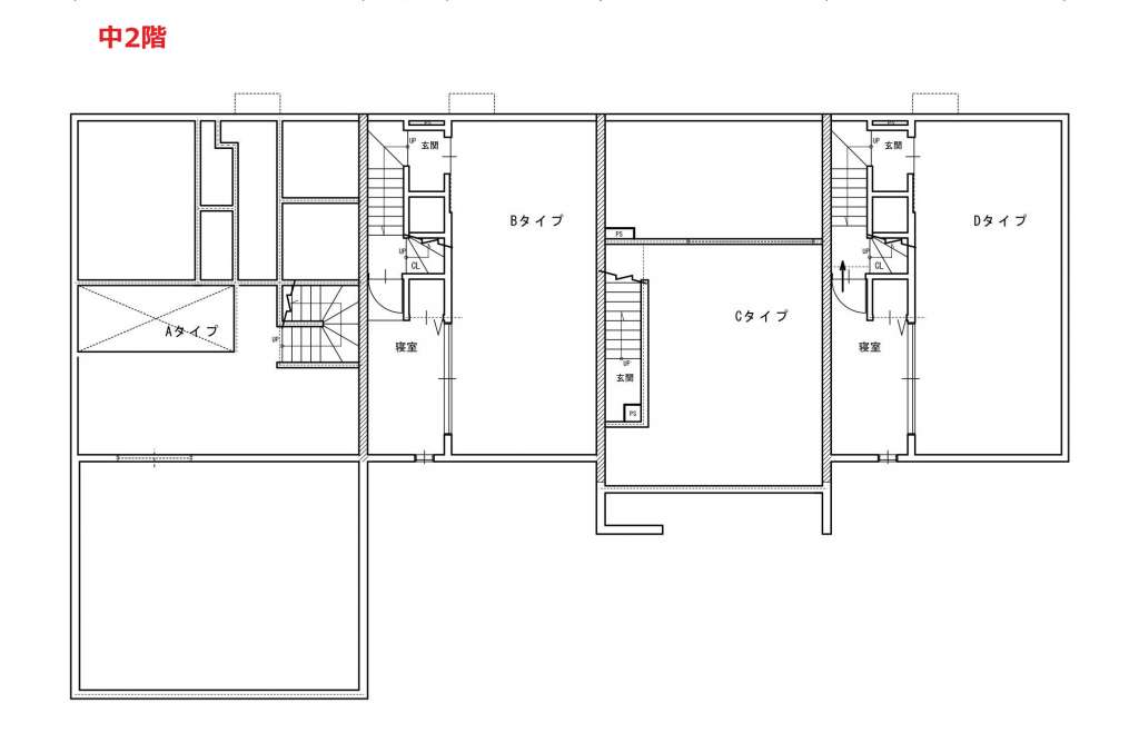
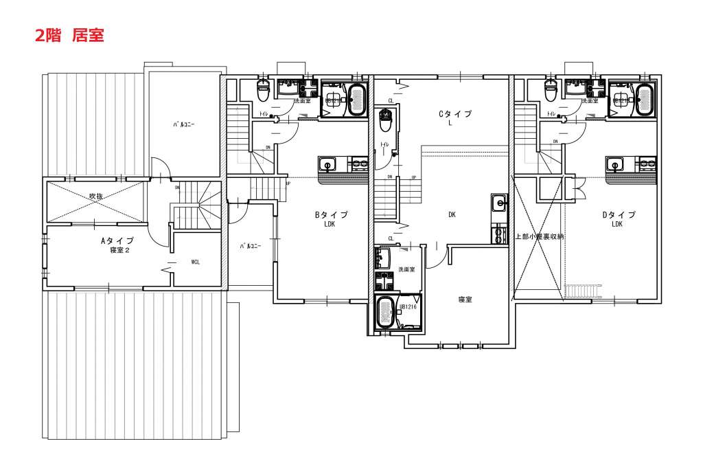
〇間取りは4タイプ。
・Ⅰ号室 2LDK:2台格納できるガレージ(車種により確認要)+ガレージ隣にリビング。各部屋もゆったりした間取り。
・Ⅱ号室 1LDK:収納スペース付きガレージ+開放感あふれるインナーバルコニー。
・Ⅲ号室 1LDK:スキップフロア採用でおしゃれなLDKを実現。
・Ⅳ号室 1LDK:収納スペース付きガレージに加え、小屋裏にも収納スペース付き。LDKは14帖のゆったりサイズ。 - 竣工日
- 2022年4月
- 交 通
- ・阪神高速 高井田IC くるま約14分
・近畿自動車道 東大阪北IC くるま約8分 - 設 備
-
☆ガレージ内設備
リモコン式電動シャッター
給湯設備・シャワー
ダウンライト(調光付き)
センサー付き換気扇
エアコン設置可
電気自動車対応 - 賃貸条件
- ※満室のため非表示
- その他
-
ペット不可
参考間取り。現況優先。
。
MAP
地 図
ROOM
部屋一覧
入居予約をご希望の方は左の予約ボタンを押してください。専用のフォームへ移動します。
- ●:キャンセル待ちなし
- まだご予約が入っていないお部屋です。
- ▲:キャンセル待ちあり
- すでにご予約が入っているお部屋です (やむを得ない事情で入居辞退される方も一定数おられますので、ご入居できる可能性は十分にあります。)
| 入居予約 | No. | 間取り | 広さ | 駐車場 | 賃料 | その他 | 空き状況 | 入居可能日 |
|---|---|---|---|---|---|---|---|---|
| Ⅰ | 2LDK | LDK13帖+洋室6.1帖+洋室6.3帖 | ガレージ幅5.2m×奥行6.3m(最大部分) | ー | リモコン式電動シャッター幅5.0m×高さ2.2m | 入居中 | ||
| Ⅱ | 1LDK | LDK13.5帖+BedRoom4.1帖 | ガレージ幅3.4m×奥行7.5m(最大部分)+収納スペース | ー | リモコン式電動シャッター幅3.3m×高さ2.2m | 入居中 | ||
| Ⅲ | 1LDKスキップフロア | L6.8帖+DK8.2帖+洋室7帖 | ガレージ幅4.0m×奥行5.4m(最大部分)+ガレージ奥に収納スペース | ー | リモコン式電動シャッター幅3.5m×高さ2.2m | 入居中 | ||
| Ⅳ | 1LDK | LDK14.1帖+BedRoom4.1帖 | ガレージ幅3.4m×奥行7.5m(最大部分)+収納スペース | ー | リモコン式電動シャッター幅3.3m×高さ2.2m | 入居中 |
| No. | Ⅰ |
|---|---|
| 間取り | 2LDK |
| 広さ | LDK13帖+洋室6.1帖+洋室6.3帖 |
| 駐車場 | ガレージ幅5.2m×奥行6.3m(最大部分) |
| 賃料 | ー |
| その他 | リモコン式電動シャッター幅5.0m×高さ2.2m |
| 空き状況 | 入居中 |
| 入居可能日 | |
| 入居予約 | |
| No. | Ⅱ |
| 間取り | 1LDK |
| 広さ | LDK13.5帖+BedRoom4.1帖 |
| 駐車場 | ガレージ幅3.4m×奥行7.5m(最大部分)+収納スペース |
| 賃料 | ー |
| その他 | リモコン式電動シャッター幅3.3m×高さ2.2m |
| 空き状況 | 入居中 |
| 入居可能日 | |
| 入居予約 | |
| No. | Ⅲ |
| 間取り | 1LDKスキップフロア |
| 広さ | L6.8帖+DK8.2帖+洋室7帖 |
| 駐車場 | ガレージ幅4.0m×奥行5.4m(最大部分)+ガレージ奥に収納スペース |
| 賃料 | ー |
| その他 | リモコン式電動シャッター幅3.5m×高さ2.2m |
| 空き状況 | 入居中 |
| 入居可能日 | |
| 入居予約 | |
| No. | Ⅳ |
| 間取り | 1LDK |
| 広さ | LDK14.1帖+BedRoom4.1帖 |
| 駐車場 | ガレージ幅3.4m×奥行7.5m(最大部分)+収納スペース |
| 賃料 | ー |
| その他 | リモコン式電動シャッター幅3.3m×高さ2.2m |
| 空き状況 | 入居中 |
| 入居可能日 | |
| 入居予約 |
RECOMMEND
おすすめ物件
