CARBINS 01 愛知県 尾張旭市 桜ヶ丘町西413番地 ガレージハウス7戸
99’GARAGE 南草津
人気物件につきお早目のご予約を!! JR南草津駅 徒歩14分の好立地 階段で上がれる大型ロフトスペース有り(1LDK+ロフト) オール電化と高断熱仕様で省エネを実現
PLAN
見取り図
※画像をクリックすると拡大してご覧いただけます
SPEC
スペック
- 物件概要
-
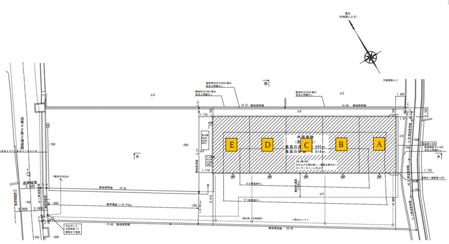
■滋賀県草津市矢橋町池ノ内1番1、6番12
■1棟5戸(1LDKロフト付き5戸)
■2023年6月下旬完成
- 竣工日
- 2023年6月
- 交 通
・草津JCT、新名神「草津田上IC」まで車で10分
・国道1号線まで車で5分
・湖岸道路まで車で4分
・「JR南草津駅」まで徒歩14分- 設 備
-
オール電化
システムK(W1800・IHコンロ)、システムバス1216(浴室暖房乾燥機付き)
対面キッチン
ウォシュレット
カラードアホン
給湯(電気)
エアコン設置済(LDK×1)
LDKフローリング仕上げ
車庫シャッター:電動リモコンシャッター
車庫床:ローラーストーン仕上げ - 賃貸条件
- ※満室のため非表示
- その他
- ペット不可
MAP
地 図
ROOM
部屋一覧
入居予約をご希望の方は左の予約ボタンを押してください。専用のフォームへ移動します。
- ●:キャンセル待ちなし
- まだご予約が入っていないお部屋です。
- ▲:キャンセル待ちあり
- すでにご予約が入っているお部屋です (やむを得ない事情で入居辞退される方も一定数おられますので、ご入居できる可能性は十分にあります。)
| 入居予約 | No. | 間取り | 広さ | 駐車場 | 賃料 | その他 | 空き状況 | 入居可能日 |
|---|---|---|---|---|---|---|---|---|
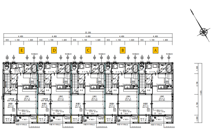
| A | 1LDKロフト付き | LDK9帖+洋室3帖+ロフト5.6帖 | ガレージ幅4,450×奥行6,825×高さ2,400(最大部・壁芯寸法) | ー | リモコンシャッター幅2,800×高さ2,300 | 入居中 | ||
| B | 1LDKロフト付き | LDK9帖+洋室3帖+ロフト5.6帖 | ガレージ幅4,450×奥行6,825×高さ2,400(最大部・壁芯寸法) | ー | リモコンシャッター幅2,800×高さ2,300 | 入居中 | ||
| C | 1LDKロフト付き | LDK9帖+洋室3帖+ロフト5.6帖 | ガレージ幅4,450×奥行6,825×高さ2,400(最大部・壁芯寸法) | ー | リモコンシャッター幅2,800×高さ2,300 | 入居中 | ||
| D | 1LDKロフト付き | LDK9帖+洋室3帖+ロフト5.6帖 | ガレージ幅4,450×奥行6,825×高さ2,400(最大部・壁芯寸法) | ー | リモコンシャッター幅2,800×高さ2,300 | 入居中 | ||
| E | 1LDKロフト付き | LDK9帖+洋室3帖+ロフト5.6帖 | ガレージ幅4,450×奥行6,825×高さ2,400(最大部・壁芯寸法) | ー | リモコンシャッター幅2,800×高さ2,300 (シャッター前屋外駐車1台付) | 入居中 |
| No. | A |
|---|---|
| 間取り | 1LDKロフト付き |
| 広さ | LDK9帖+洋室3帖+ロフト5.6帖 |
| 駐車場 | ガレージ幅4,450×奥行6,825×高さ2,400(最大部・壁芯寸法) |
| 賃料 | ー |
| その他 | リモコンシャッター幅2,800×高さ2,300 |
| 空き状況 | 入居中 |
| 入居可能日 | |
| 入居予約 | |
| No. | B |
| 間取り | 1LDKロフト付き |
| 広さ | LDK9帖+洋室3帖+ロフト5.6帖 |
| 駐車場 | ガレージ幅4,450×奥行6,825×高さ2,400(最大部・壁芯寸法) |
| 賃料 | ー |
| その他 | リモコンシャッター幅2,800×高さ2,300 |
| 空き状況 | 入居中 |
| 入居可能日 | |
| 入居予約 | |
| No. | C |
| 間取り | 1LDKロフト付き |
| 広さ | LDK9帖+洋室3帖+ロフト5.6帖 |
| 駐車場 | ガレージ幅4,450×奥行6,825×高さ2,400(最大部・壁芯寸法) |
| 賃料 | ー |
| その他 | リモコンシャッター幅2,800×高さ2,300 |
| 空き状況 | 入居中 |
| 入居可能日 | |
| 入居予約 | |
| No. | D |
| 間取り | 1LDKロフト付き |
| 広さ | LDK9帖+洋室3帖+ロフト5.6帖 |
| 駐車場 | ガレージ幅4,450×奥行6,825×高さ2,400(最大部・壁芯寸法) |
| 賃料 | ー |
| その他 | リモコンシャッター幅2,800×高さ2,300 |
| 空き状況 | 入居中 |
| 入居可能日 | |
| 入居予約 | |
| No. | E |
| 間取り | 1LDKロフト付き |
| 広さ | LDK9帖+洋室3帖+ロフト5.6帖 |
| 駐車場 | ガレージ幅4,450×奥行6,825×高さ2,400(最大部・壁芯寸法) |
| 賃料 | ー |
| その他 | リモコンシャッター幅2,800×高さ2,300 (シャッター前屋外駐車1台付) |
| 空き状況 | 入居中 |
| 入居可能日 | |
| 入居予約 |
RECOMMEND
おすすめ物件
