CARBINS 01 愛知県 尾張旭市 桜ヶ丘町西413番地 ガレージハウス7戸
BOZY BASE
彦根市正法寺町のガレージハウス!しかも角部屋!! ”名神高速道路 彦根IC”まで車で3分! ”イオンタウン彦根”まで車で5分! 階段で行き来できる大型ロフトや吹き抜けリビングで広々と充実した間取りです
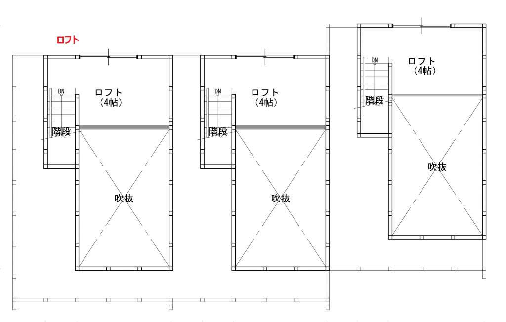
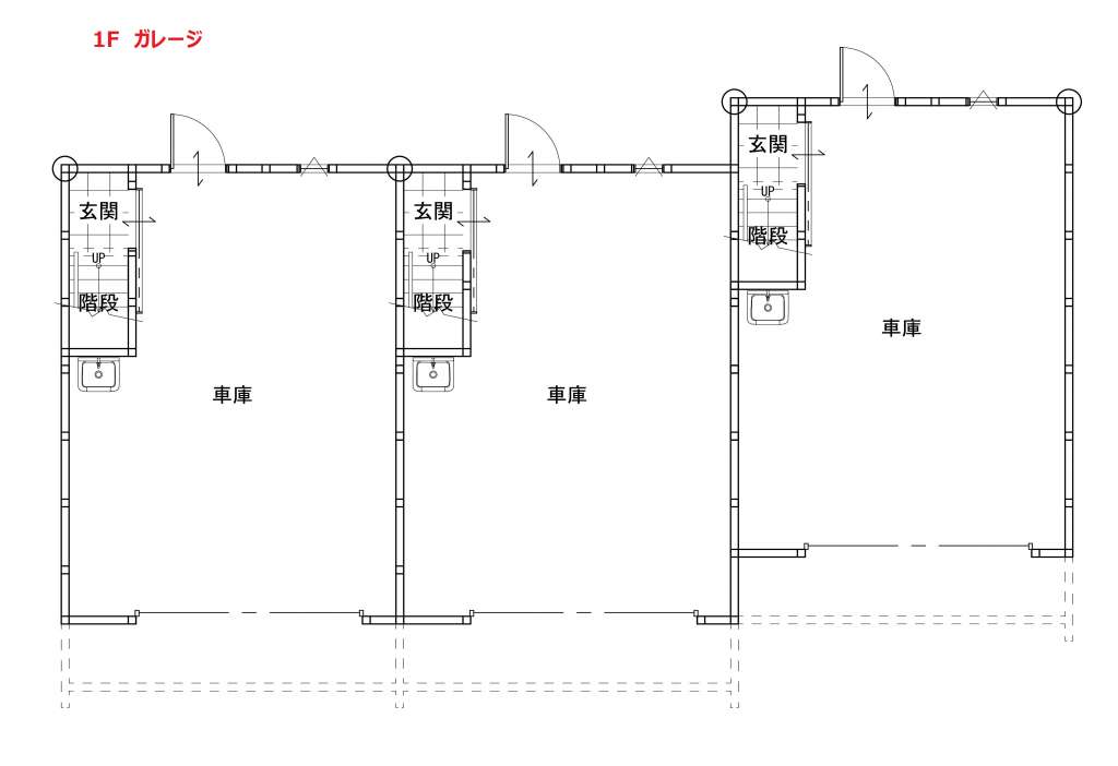
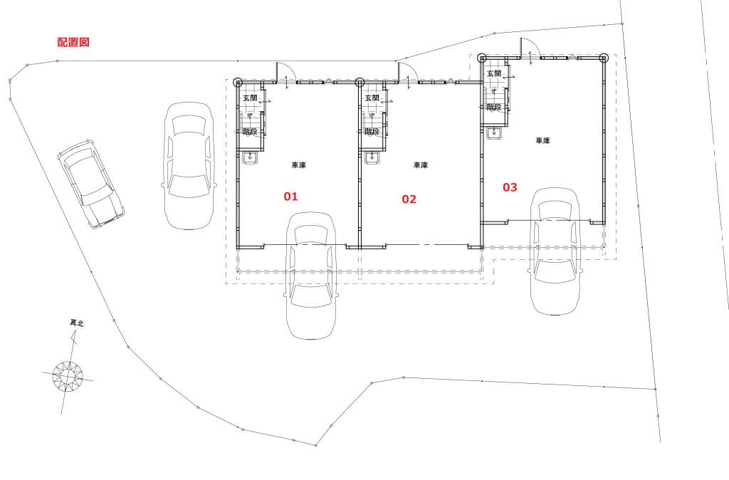
PLAN
見取り図
※画像をクリックすると拡大してご覧いただけます
SPEC
スペック
- 物件概要
-
■滋賀県彦根市正法寺町272-5
■1LDKロフト付き 3戸
■2022年1月完成
・彦根インターまですぐ!
・国道307号線沿いで中山道、国道8号線にもすぐの交通の要衝!
・大型商業施設「イオンタウン彦根」まで車で約5分、徒歩25分。
・ファミリーマート彦根原町店まで徒歩約6分。 - 竣工日
- 2022年1月
- 交 通
・JR彦根駅 車で約8分
・名神高速道路 彦根インターまで車で約3分
・中山道まで車で約1分
・国道8号線まで車で約5分
・湾岸道路まで車で約14分- 設 備
-
☆ガレージ内設備☆
リモコン式電動シャッター
給湯設備
レール式スポットライト
センサー付き換気扇
収納棚取り付け可能
エアコン設置可
電気自動車対応 - 賃貸条件
- ※満室のため非表示
- その他
-
ペット不可
・参考間取り。現況優先。
・
MAP
地 図
ROOM
部屋一覧
入居予約をご希望の方は左の予約ボタンを押してください。専用のフォームへ移動します。
- ●:キャンセル待ちなし
- まだご予約が入っていないお部屋です。
- ▲:キャンセル待ちあり
- すでにご予約が入っているお部屋です (やむを得ない事情で入居辞退される方も一定数おられますので、ご入居できる可能性は十分にあります。)
| 入居予約 | No. | 間取り | 広さ | 駐車場 | 賃料 | その他 | 空き状況 | 入居可能日 |
|---|---|---|---|---|---|---|---|---|
| 01 | 1LDKロフト付き | LDK7.9帖+BedRoom2.5帖 | ガレージ幅4.55m×奥行6.142m(最大部分) | ー | シャッター幅2.9m×高さ2.2m | 入居中 | ||
| 02 | 1LDKロフト付き | LDK7.9帖+BedRoom2.5帖 | ガレージ幅4.55m×奥行6.142m(最大部分) | ー | シャッター幅2.9m×高さ2.2m | 入居中 | ||
| 03 | 1LDKロフト付き | LDK7.9帖+BedRoom2.5帖 | ガレージ幅4.55m×奥行6.142m(最大部分) | ー | シャッター幅2.9m×高さ2.2m | 入居中 |
| No. | 01 |
|---|---|
| 間取り | 1LDKロフト付き |
| 広さ | LDK7.9帖+BedRoom2.5帖 |
| 駐車場 | ガレージ幅4.55m×奥行6.142m(最大部分) |
| 賃料 | ー |
| その他 | シャッター幅2.9m×高さ2.2m |
| 空き状況 | 入居中 |
| 入居可能日 | |
| 入居予約 | |
| No. | 02 |
| 間取り | 1LDKロフト付き |
| 広さ | LDK7.9帖+BedRoom2.5帖 |
| 駐車場 | ガレージ幅4.55m×奥行6.142m(最大部分) |
| 賃料 | ー |
| その他 | シャッター幅2.9m×高さ2.2m |
| 空き状況 | 入居中 |
| 入居可能日 | |
| 入居予約 | |
| No. | 03 |
| 間取り | 1LDKロフト付き |
| 広さ | LDK7.9帖+BedRoom2.5帖 |
| 駐車場 | ガレージ幅4.55m×奥行6.142m(最大部分) |
| 賃料 | ー |
| その他 | シャッター幅2.9m×高さ2.2m |
| 空き状況 | 入居中 |
| 入居可能日 | |
| 入居予約 |
RECOMMEND
おすすめ物件
