CARBINS 01 愛知県 尾張旭市 桜ヶ丘町西413番地 ガレージハウス7戸
K-16ガレージ出町
待望の近江八幡市内第1号物件登場!
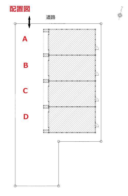
PLAN
見取り図
※画像をクリックすると拡大してご覧いただけます
SPEC
スペック
- 物件概要
-
■滋賀県近江八幡市出町421-7
■1LDK 4戸
■2020年5月末完成
待望の近江八幡市内第1号!
駅徒歩圏内。生活至便。
「アルプラザ近江八幡店」徒歩2分。
「イオン近江八幡店」車で8分。
近江八幡市役所まで徒歩5分。 - 竣工日
- 2020年5月
- 交 通
- ・名神高速道路「蒲生スマートIC」まで車で20分。
・湖岸道路まで車で8分。
・県道2号線まで車で1分、国道8号線まで車で11分。
・JR近江八幡駅 徒歩14分。 - 設 備
-
☆ガレージ内設備は次の通り☆
リモコン式電動シャッター
給湯設備
レール式スポットライト
センサー付き換気扇
収納棚取り付け可能
エアコン設置可
電気自動車対応
TV端子
☆居室設備:システムキッチン、システムバス、ウォシュレット、カラードアホン - 賃貸条件
- ※満室のため非表示
- その他
-
ペット不可
*。
間取りは参考。現況優先。
動画配信中!
MAP
地 図
ROOM
部屋一覧
入居予約をご希望の方は左の予約ボタンを押してください。専用のフォームへ移動します。
- ●:キャンセル待ちなし
- まだご予約が入っていないお部屋です。
- ▲:キャンセル待ちあり
- すでにご予約が入っているお部屋です (やむを得ない事情で入居辞退される方も一定数おられますので、ご入居できる可能性は十分にあります。)
| 入居予約 | No. | 間取り | 広さ | 駐車場 | 賃料 | その他 | 空き状況 | 入居可能日 |
|---|---|---|---|---|---|---|---|---|
| A | 1LDK | LDK11.2帖+洋室3.5帖 | ガレージ幅4.55m×奥行8.19m×高さ2.4m(最大部分) | ー | シャッター幅2.7m×高さ2.2m | 入居中 | ||
| B | 1LDK | LDK11.2帖+洋室3.5帖 | ガレージ幅4.55m×奥行8.19m×高さ2.4m(最大部分) | ー | シャッター幅2.7m×高さ2.2m | 入居中 | ||
| C | 1LDK | LDK11.2帖+洋室3.5帖 | ガレージ幅4.55m×奥行8.19m×高さ2.4m(最大部分) | ー | シャッター幅2.7m×高さ2.2m | 入居中 | ||
| D | 1LDK | LDK11.2帖+洋室3.5帖 | ガレージ幅4.55m×奥行8.19m×高さ2.4m(最大部分) | ー | シャッター幅2.7m×高さ2.2m | 入居中 |
| No. | A |
|---|---|
| 間取り | 1LDK |
| 広さ | LDK11.2帖+洋室3.5帖 |
| 駐車場 | ガレージ幅4.55m×奥行8.19m×高さ2.4m(最大部分) |
| 賃料 | ー |
| その他 | シャッター幅2.7m×高さ2.2m |
| 空き状況 | 入居中 |
| 入居可能日 | |
| 入居予約 | |
| No. | B |
| 間取り | 1LDK |
| 広さ | LDK11.2帖+洋室3.5帖 |
| 駐車場 | ガレージ幅4.55m×奥行8.19m×高さ2.4m(最大部分) |
| 賃料 | ー |
| その他 | シャッター幅2.7m×高さ2.2m |
| 空き状況 | 入居中 |
| 入居可能日 | |
| 入居予約 | |
| No. | C |
| 間取り | 1LDK |
| 広さ | LDK11.2帖+洋室3.5帖 |
| 駐車場 | ガレージ幅4.55m×奥行8.19m×高さ2.4m(最大部分) |
| 賃料 | ー |
| その他 | シャッター幅2.7m×高さ2.2m |
| 空き状況 | 入居中 |
| 入居可能日 | |
| 入居予約 | |
| No. | D |
| 間取り | 1LDK |
| 広さ | LDK11.2帖+洋室3.5帖 |
| 駐車場 | ガレージ幅4.55m×奥行8.19m×高さ2.4m(最大部分) |
| 賃料 | ー |
| その他 | シャッター幅2.7m×高さ2.2m |
| 空き状況 | 入居中 |
| 入居可能日 | |
| 入居予約 |
RECOMMEND
おすすめ物件
