CARBINS 01 愛知県 尾張旭市 桜ヶ丘町西413番地 ガレージハウス7戸
AT・ガレージ彦根
リビングから愛車が眺められるスキップフロアを採用!! 名神「彦根インター」まで車で約6分 「イオンタウン彦根」まで車で約6分、徒歩13分 JR「彦根駅」まで車で7分、徒歩15分 角部屋!! 別途屋外駐車場有り
PLAN
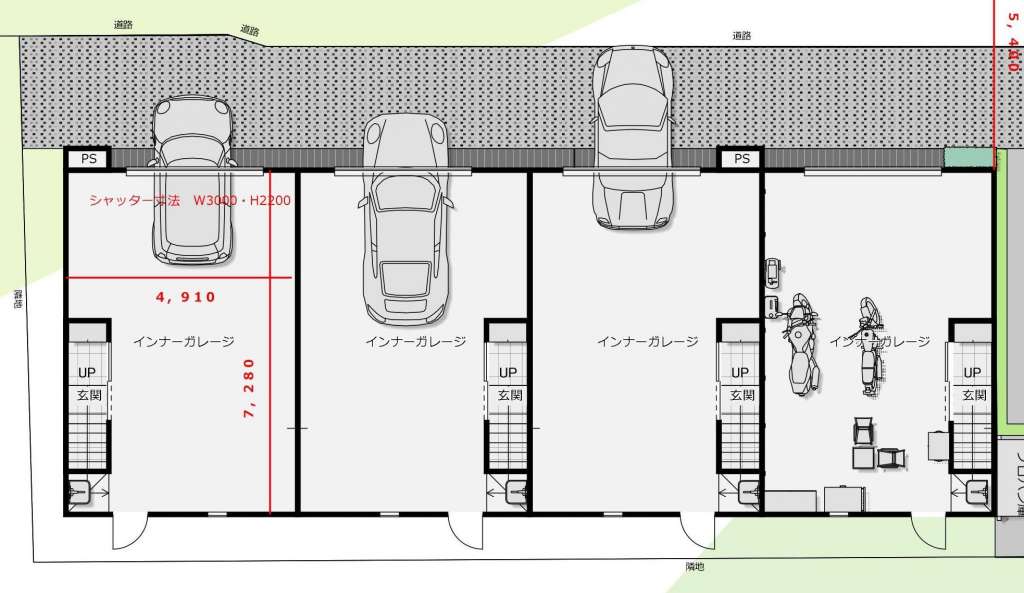
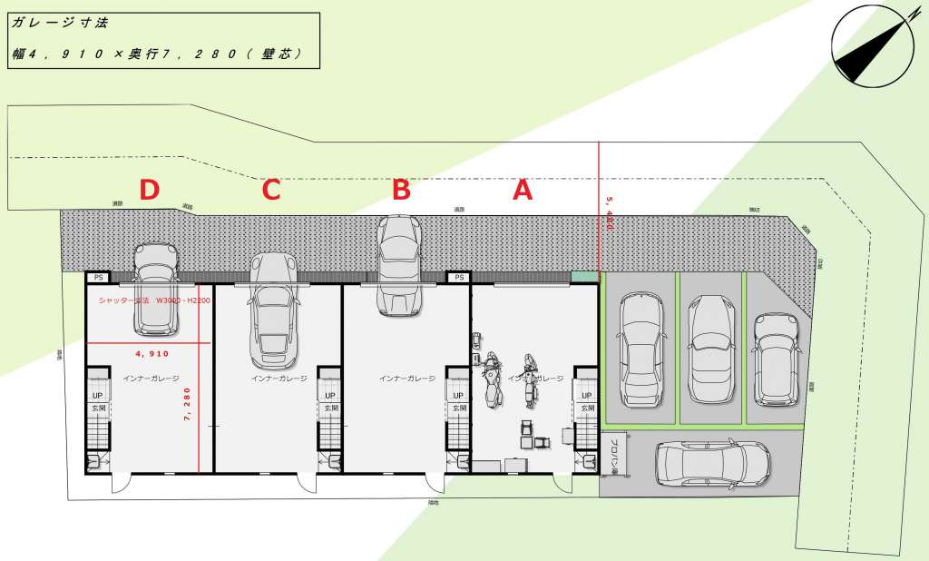
見取り図
※画像をクリックすると拡大してご覧いただけます
SPEC
スペック
- 物件概要
-
■滋賀県彦根市芹川町518
■1LDKスキップフロア 4戸
■2019年10月完成
待望の彦根市内第1号物件が登場!
リビングから愛車を眺められるスキップフロアリビングを採用!
・「イオンタウン彦根」まで車で約6分、徒歩13分。
・「バロー彦根店」まで徒歩7分。
・「オートバックス彦根店」まで車で5分。
名神高速道路インターやJR駅にもほど近く、アクセス抜群、住みやすい環境です。 - 竣工日
- 2019年10月
- 交 通
・名神高速道路「彦根インター」まで車で約6分。(彦根は京阪神・東海・北陸の分岐ターミナルです)
・湖岸道路まで車で15分。
・近江鉄道「ひこね芹川駅」まで徒歩2分。
・JR「彦根駅」まで車で7分、徒歩15分。
・国道8号線まで750m。- 設 備
-
☆ガレージ内設備は次の通り☆
リモコン式電動シャッター
給湯設備
レール式スポットライト
センサー付き換気扇
収納棚取り付け可能
エアコン設置可
電気自動車対応
TV端子
☆居室設備:システムキッチン、システムバス、ウォシュレット、カラードアホン - 賃貸条件
- ※満室のため非表示
- その他
-
ペット不可
☆間取りは参考。現況優先。
MAP
地 図
ROOM
部屋一覧
入居予約をご希望の方は左の予約ボタンを押してください。専用のフォームへ移動します。
- ●:キャンセル待ちなし
- まだご予約が入っていないお部屋です。
- ▲:キャンセル待ちあり
- すでにご予約が入っているお部屋です (やむを得ない事情で入居辞退される方も一定数おられますので、ご入居できる可能性は十分にあります。)
| 入居予約 | No. | 間取り | 広さ | 駐車場 | 賃料 | その他 | 空き状況 | 入居可能日 |
|---|---|---|---|---|---|---|---|---|
| A | 1LDK | LDK11.2帖+洋室4.8帖 | ガレージ幅4.91m×奥行7.28m(最大部分) | ー | シャッター幅3.0m×高さ2.2m | 入居中 | ||
| B | 1LDK | LDK11.2帖+洋室4.8帖 | ガレージ幅4.91m×奥行7.28m(最大部分) | ー | シャッター幅3.0m×高さ2.2m | 入居中 | ||
| C | 1LDK | LDK11.2帖+洋室4.8帖 | ガレージ幅4.91m×奥行7.28m(最大部分) | ー | シャッター幅3.0m×高さ2.2m | 入居中 | ||
| D | 1LDK | LDK11.2帖+洋室4.8帖 | ガレージ幅4.91m×奥行7.28m(最大部分) | ー | シャッター幅3.0m×高さ2.2m | 入居中 |
| No. | A |
|---|---|
| 間取り | 1LDK |
| 広さ | LDK11.2帖+洋室4.8帖 |
| 駐車場 | ガレージ幅4.91m×奥行7.28m(最大部分) |
| 賃料 | ー |
| その他 | シャッター幅3.0m×高さ2.2m |
| 空き状況 | 入居中 |
| 入居可能日 | |
| 入居予約 | |
| No. | B |
| 間取り | 1LDK |
| 広さ | LDK11.2帖+洋室4.8帖 |
| 駐車場 | ガレージ幅4.91m×奥行7.28m(最大部分) |
| 賃料 | ー |
| その他 | シャッター幅3.0m×高さ2.2m |
| 空き状況 | 入居中 |
| 入居可能日 | |
| 入居予約 | |
| No. | C |
| 間取り | 1LDK |
| 広さ | LDK11.2帖+洋室4.8帖 |
| 駐車場 | ガレージ幅4.91m×奥行7.28m(最大部分) |
| 賃料 | ー |
| その他 | シャッター幅3.0m×高さ2.2m |
| 空き状況 | 入居中 |
| 入居可能日 | |
| 入居予約 | |
| No. | D |
| 間取り | 1LDK |
| 広さ | LDK11.2帖+洋室4.8帖 |
| 駐車場 | ガレージ幅4.91m×奥行7.28m(最大部分) |
| 賃料 | ー |
| その他 | シャッター幅3.0m×高さ2.2m |
| 空き状況 | 入居中 |
| 入居可能日 | |
| 入居予約 |
RECOMMEND
おすすめ物件
