CARBINS 01 愛知県 尾張旭市 桜ヶ丘町西413番地 ガレージハウス7戸
ガレージハウス泉田
岡山市内!2戸限定!
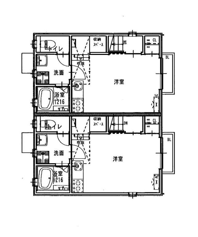
PLAN
見取り図
※画像をクリックすると拡大してご覧いただけます
SPEC
スペック
- 物件概要
- 竣工日
- 2020年3月
- 交 通
- 設 備
-
☆ガレージ内設備☆
リモコン式電動シャッター
給湯設備
レール式スポットライト
センサー付き換気扇
収納棚取り付け可能
エアコン設置可
電気自動車対応 - 賃貸条件
- ※満室のため非表示
- その他
- ペット不可
MAP
地 図
ROOM
部屋一覧
入居予約をご希望の方は左の予約ボタンを押してください。専用のフォームへ移動します。
- ●:キャンセル待ちなし
- まだご予約が入っていないお部屋です。
- ▲:キャンセル待ちあり
- すでにご予約が入っているお部屋です (やむを得ない事情で入居辞退される方も一定数おられますので、ご入居できる可能性は十分にあります。)
| 入居予約 | No. | 間取り | 広さ | 駐車場 | 賃料 | その他 | 空き状況 | 入居可能日 |
|---|---|---|---|---|---|---|---|---|
| 1 | ロフト付1K | 洋室約9帖+ロフト約4.5帖 | ガレージ幅4.0m×奥行6.45m(最大部分) | ー | 入居中 | |||
| 2 | ロフト付1K | 洋室約9帖+ロフト約4.5帖 | ガレージ幅4.0m×奥行6.45m(最大部分) | ー | 入居中 |
| No. | 1 |
|---|---|
| 間取り | ロフト付1K |
| 広さ | 洋室約9帖+ロフト約4.5帖 |
| 駐車場 | ガレージ幅4.0m×奥行6.45m(最大部分) |
| 賃料 | ー |
| その他 | |
| 空き状況 | 入居中 |
| 入居可能日 | |
| 入居予約 | |
| No. | 2 |
| 間取り | ロフト付1K |
| 広さ | 洋室約9帖+ロフト約4.5帖 |
| 駐車場 | ガレージ幅4.0m×奥行6.45m(最大部分) |
| 賃料 | ー |
| その他 | |
| 空き状況 | 入居中 |
| 入居可能日 | |
| 入居予約 |
RECOMMEND
おすすめ物件
