CARBINS 01 愛知県 尾張旭市 桜ヶ丘町西413番地 ガレージハウス7戸
TOP FUEL GARAGEⅡ(トップ フューエル ガレージⅡ) ※仮称)G-styleclub守谷市薬師台
好評につき守谷市第2弾登場
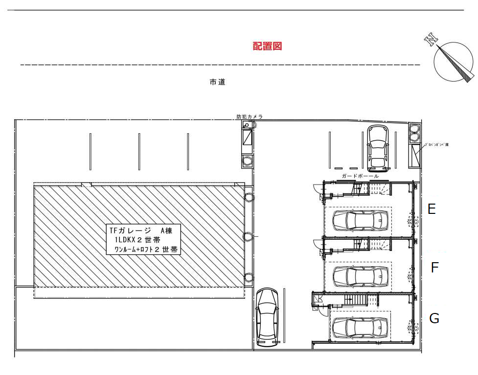
PLAN
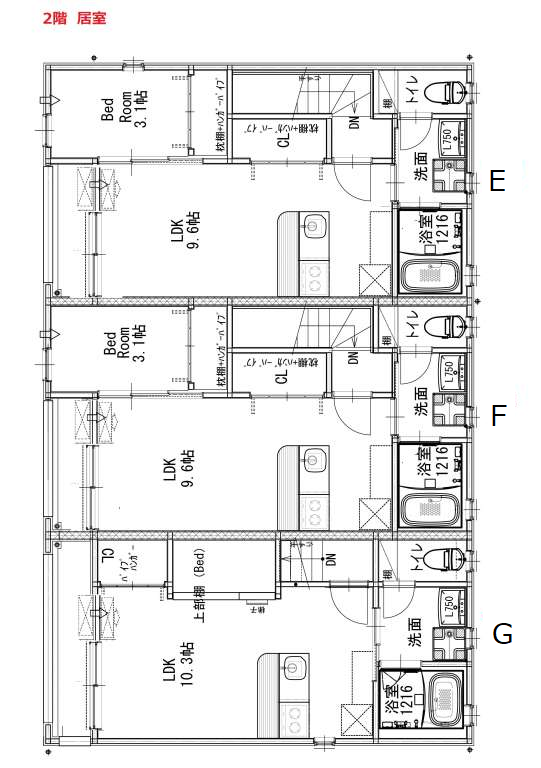
見取り図
※画像をクリックすると拡大してご覧いただけます
SPEC
スペック
- 物件概要
-
■茨城県守谷市薬師台4丁目6-1
■1棟3戸(1LDK 2戸/1K+BED 1戸)
■2023年1月下旬完成
・全戸屋外駐車スペース付き
・防犯カメラ設置! - 竣工日
- 2023年1月
- 交 通
・つくばEX守谷駅西口 関東鉄道バス新守谷行き 薬師台5丁目下車徒歩約5分
・常磐道 谷和原ICから4.5km- 設 備
-
☆ガレージ内設備☆
リモコン式電動シャッター
給湯設備
レール式スポットライト+ダウンライト
センサー付き換気扇
収納棚取り付け可能
エアコン設置可
電気自動車対応
TV用ジャックあり - 賃貸条件
- ※満室のため非表示
- その他
-
ペット不可
・間取は参考。現況優先。
・。
MAP
地 図
ROOM
部屋一覧
入居予約をご希望の方は左の予約ボタンを押してください。専用のフォームへ移動します。
- ●:キャンセル待ちなし
- まだご予約が入っていないお部屋です。
- ▲:キャンセル待ちあり
- すでにご予約が入っているお部屋です (やむを得ない事情で入居辞退される方も一定数おられますので、ご入居できる可能性は十分にあります。)
| 入居予約 | No. | 間取り | 広さ | 駐車場 | 賃料 | その他 | 空き状況 | 入居可能日 |
|---|---|---|---|---|---|---|---|---|
| E号 | 1LDK | LDK9.6帖+BedRoom3.1帖 | ガレージ幅3.6m×奥行7.2m(最大部分) | ー | リモコン式電動シャッター幅2.5m×高さ2.2m | 入居中 | ||
| F号 | 1LDK | LDK9.6帖+BedRoom3.1帖 | ガレージ幅3.6m×奥行7.2m(最大部分) | ー | リモコン式電動シャッター幅2.5m×高さ2.2m | 入居中 | ||
| G号 | 1K+BED | LDK10.3帖 | ガレージ幅3.0m×奥行6.8m(最大部分) | ー | リモコン式電動シャッター幅2.5m×高さ2.2m | 入居中 |
| No. | E号 |
|---|---|
| 間取り | 1LDK |
| 広さ | LDK9.6帖+BedRoom3.1帖 |
| 駐車場 | ガレージ幅3.6m×奥行7.2m(最大部分) |
| 賃料 | ー |
| その他 | リモコン式電動シャッター幅2.5m×高さ2.2m |
| 空き状況 | 入居中 |
| 入居可能日 | |
| 入居予約 | |
| No. | F号 |
| 間取り | 1LDK |
| 広さ | LDK9.6帖+BedRoom3.1帖 |
| 駐車場 | ガレージ幅3.6m×奥行7.2m(最大部分) |
| 賃料 | ー |
| その他 | リモコン式電動シャッター幅2.5m×高さ2.2m |
| 空き状況 | 入居中 |
| 入居可能日 | |
| 入居予約 | |
| No. | G号 |
| 間取り | 1K+BED |
| 広さ | LDK10.3帖 |
| 駐車場 | ガレージ幅3.0m×奥行6.8m(最大部分) |
| 賃料 | ー |
| その他 | リモコン式電動シャッター幅2.5m×高さ2.2m |
| 空き状況 | 入居中 |
| 入居可能日 | |
| 入居予約 |
RECOMMEND
おすすめ物件
