CARBINS 01 愛知県 尾張旭市 桜ヶ丘町西413番地 ガレージハウス7戸
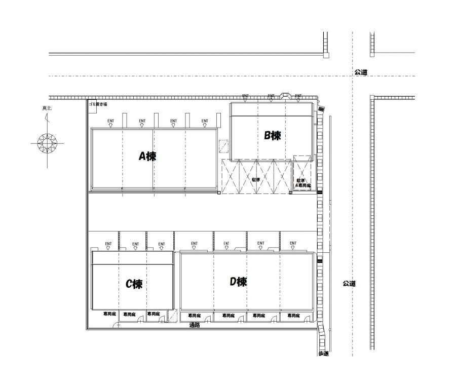
ウベルタリサA棟~D棟
人気物件!ゆったりした敷地で愛車の入出庫もラクラク。
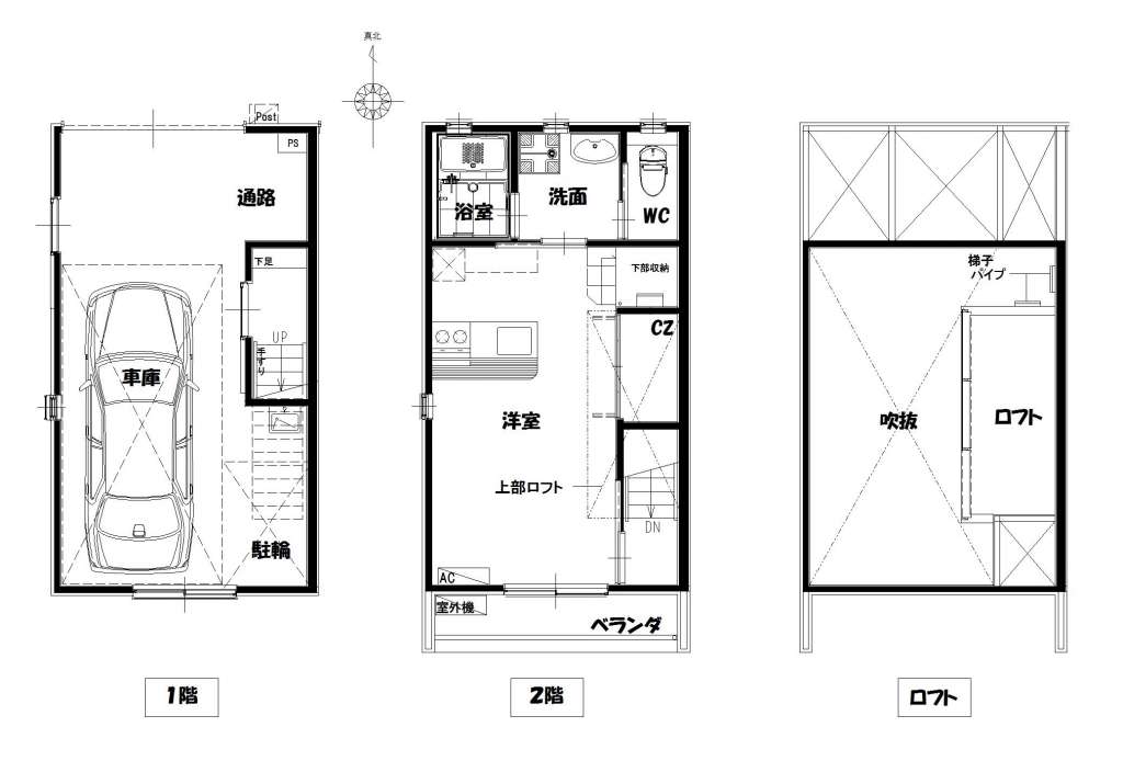
PLAN
見取り図
※画像をクリックすると拡大してご覧いただけます
SPEC
スペック
- 物件概要
-
■愛知県一宮市小信中島字西五反田20-1
■1LDK4戸×2棟+ロフト付1K3戸×2棟
■2013(平成25)年5月完成
元祖ビレッジ型ガレージハウス!
ゆったりした敷地で愛車の入出庫もラクラク。
北側に建つA/B棟は主要道路にすぐアクセス!
南側のC/D棟はなんと専用庭付き! - 竣工日
- 2013年5月
- 交 通
東海北陸道 尾西ICまで車で7分、一宮西IC10分
尾濃大橋まで車で6分
尾西大橋 車で3分
スーパー 徒歩10分
コンビニ 徒歩5分- 設 備
-
ガレージ内設備
・リモコン式電動シャッター
・給水給湯設備
・人感センサー付き換気扇
・レール式人感センサー付きスポット照明
・エアコン設置可能
・電気自動車対応
・ガスファンヒーターコックあり
・クギ、ビス打ち可能な柱あり - 賃貸条件
- ※満室のため非表示
- その他
- ペット不可
MAP
地 図
ROOM
部屋一覧
入居予約をご希望の方は左の予約ボタンを押してください。専用のフォームへ移動します。
- ●:キャンセル待ちなし
- まだご予約が入っていないお部屋です。
- ▲:キャンセル待ちあり
- すでにご予約が入っているお部屋です (やむを得ない事情で入居辞退される方も一定数おられますので、ご入居できる可能性は十分にあります。)
| 入居予約 | No. | 間取り | 広さ | 駐車場 | 賃料 | その他 | 空き状況 | 入居可能日 |
|---|---|---|---|---|---|---|---|---|
| A-1 | 1LDK | LDK10.9帖+Bedroom3.2帖 | ガレージ(最大部分)幅4.4ⅿ×奥行6.9ⅿ | ー | リモコン式電動シャッター 幅3.3ⅿ×高さ2.1ⅿ | 入居中 | ||
| A-2 | 1LDK | LDK10.9帖+Bedroom3.2帖 | ガレージ(最大部分)幅4.4ⅿ×奥行6.9ⅿ | ー | リモコン式電動シャッター 幅3.3ⅿ×高さ2.1ⅿ | 入居中 | ||
| A-3 | 1LDK | LDK10.9帖+Bedroom3.2帖 | ガレージ(最大部分)幅4.4ⅿ×奥行6.9ⅿ | ー | リモコン式電動シャッター 幅3.3ⅿ×高さ2.1ⅿ | 入居中 | ||
| A-5 | 1LDK | LDK10.9帖+Bedroom3.2帖 | ガレージ(最大部分)幅4.4ⅿ×奥行6.9ⅿ | ー | リモコン式電動シャッター 幅3.3ⅿ×高さ2.1ⅿ | 入居中 | ||
| B-1 | ロフト付き1K | LDK10.6帖+ロフト3.0帖 | ガレージ(最大部分)幅3.9ⅿ×奥行7.1ⅿ | ー | リモコン式電動シャッター 幅2.9ⅿ×高さ2.1ⅿ | 入居中 | ||
| B-2 | ロフト付き1K | LDK10.6帖+ロフト3.0帖 | ガレージ(最大部分)幅3.9ⅿ×奥行7.1ⅿ | ー | リモコン式電動シャッター 幅2.9ⅿ×高さ2.1ⅿ | 入居中 | ||
| B-3 | ロフト付き1K | LDK10.6帖+ロフト3.0帖 | ガレージ(最大部分)幅3.9ⅿ×奥行7.1ⅿ | ー | リモコン式電動シャッター 幅2.9ⅿ×高さ2.1ⅿ | 入居中 | ||
| C-1 | ロフト付き1K | LDK10.6帖+ロフト3.0帖 | ガレージ(最大部分)幅3.9ⅿ×奥行7.1ⅿ | ー | リモコン式電動シャッター 幅2.9ⅿ×高さ2.1ⅿ | 入居中 | ||
| C-2 | ロフト付き1K | LDK10.6帖+ロフト3.0帖 | ガレージ(最大部分)幅3.9ⅿ×奥行7.1ⅿ | ー | リモコン式電動シャッター 幅2.9ⅿ×高さ2.1ⅿ | 入居中 | ||
| C-3 | ロフト付き1K | LDK10.6帖+ロフト3.0帖 | ガレージ(最大部分)幅3.9ⅿ×奥行7.1ⅿ | ー | リモコン式電動シャッター 幅2.9ⅿ×高さ2.1ⅿ | 入居中 | ||
| D-1 | 1LDK | LDK10.2帖+Bedroom3.5帖 | ガレージ(最大部分)幅4.7ⅿ×奥行7.1ⅿ | ー | リモコン式電動シャッター 幅2.8ⅿ×高さ2.1ⅿ | 入居中 | ||
| D-2 | 1LDK | LDK10.2帖+Bedroom3.5帖 | ガレージ(最大部分)幅4.7ⅿ×奥行7.1ⅿ | ー | リモコン式電動シャッター 幅2.8ⅿ×高さ2.1ⅿ | 入居中 | ||
| D-3 | 1LDK | LDK10.2帖+Bedroom3.5帖 | ガレージ(最大部分)幅4.7ⅿ×奥行7.1ⅿ | ー | リモコン式電動シャッター 幅2.8ⅿ×高さ2.1ⅿ | 入居中 | ||
| D-5 | 1LDK | LDK10.2帖+Bedroom3.5帖 | ガレージ(最大部分)幅4.7ⅿ×奥行7.1ⅿ | ー | リモコン式電動シャッター 幅2.8ⅿ×高さ2.1ⅿ | 入居中 |
| No. | A-1 |
|---|---|
| 間取り | 1LDK |
| 広さ | LDK10.9帖+Bedroom3.2帖 |
| 駐車場 | ガレージ(最大部分)幅4.4ⅿ×奥行6.9ⅿ |
| 賃料 | ー |
| その他 | リモコン式電動シャッター 幅3.3ⅿ×高さ2.1ⅿ |
| 空き状況 | 入居中 |
| 入居可能日 | |
| 入居予約 | |
| No. | A-2 |
| 間取り | 1LDK |
| 広さ | LDK10.9帖+Bedroom3.2帖 |
| 駐車場 | ガレージ(最大部分)幅4.4ⅿ×奥行6.9ⅿ |
| 賃料 | ー |
| その他 | リモコン式電動シャッター 幅3.3ⅿ×高さ2.1ⅿ |
| 空き状況 | 入居中 |
| 入居可能日 | |
| 入居予約 | |
| No. | A-3 |
| 間取り | 1LDK |
| 広さ | LDK10.9帖+Bedroom3.2帖 |
| 駐車場 | ガレージ(最大部分)幅4.4ⅿ×奥行6.9ⅿ |
| 賃料 | ー |
| その他 | リモコン式電動シャッター 幅3.3ⅿ×高さ2.1ⅿ |
| 空き状況 | 入居中 |
| 入居可能日 | |
| 入居予約 | |
| No. | A-5 |
| 間取り | 1LDK |
| 広さ | LDK10.9帖+Bedroom3.2帖 |
| 駐車場 | ガレージ(最大部分)幅4.4ⅿ×奥行6.9ⅿ |
| 賃料 | ー |
| その他 | リモコン式電動シャッター 幅3.3ⅿ×高さ2.1ⅿ |
| 空き状況 | 入居中 |
| 入居可能日 | |
| 入居予約 | |
| No. | B-1 |
| 間取り | ロフト付き1K |
| 広さ | LDK10.6帖+ロフト3.0帖 |
| 駐車場 | ガレージ(最大部分)幅3.9ⅿ×奥行7.1ⅿ |
| 賃料 | ー |
| その他 | リモコン式電動シャッター 幅2.9ⅿ×高さ2.1ⅿ |
| 空き状況 | 入居中 |
| 入居可能日 | |
| 入居予約 | |
| No. | B-2 |
| 間取り | ロフト付き1K |
| 広さ | LDK10.6帖+ロフト3.0帖 |
| 駐車場 | ガレージ(最大部分)幅3.9ⅿ×奥行7.1ⅿ |
| 賃料 | ー |
| その他 | リモコン式電動シャッター 幅2.9ⅿ×高さ2.1ⅿ |
| 空き状況 | 入居中 |
| 入居可能日 | |
| 入居予約 | |
| No. | B-3 |
| 間取り | ロフト付き1K |
| 広さ | LDK10.6帖+ロフト3.0帖 |
| 駐車場 | ガレージ(最大部分)幅3.9ⅿ×奥行7.1ⅿ |
| 賃料 | ー |
| その他 | リモコン式電動シャッター 幅2.9ⅿ×高さ2.1ⅿ |
| 空き状況 | 入居中 |
| 入居可能日 | |
| 入居予約 | |
| No. | C-1 |
| 間取り | ロフト付き1K |
| 広さ | LDK10.6帖+ロフト3.0帖 |
| 駐車場 | ガレージ(最大部分)幅3.9ⅿ×奥行7.1ⅿ |
| 賃料 | ー |
| その他 | リモコン式電動シャッター 幅2.9ⅿ×高さ2.1ⅿ |
| 空き状況 | 入居中 |
| 入居可能日 | |
| 入居予約 | |
| No. | C-2 |
| 間取り | ロフト付き1K |
| 広さ | LDK10.6帖+ロフト3.0帖 |
| 駐車場 | ガレージ(最大部分)幅3.9ⅿ×奥行7.1ⅿ |
| 賃料 | ー |
| その他 | リモコン式電動シャッター 幅2.9ⅿ×高さ2.1ⅿ |
| 空き状況 | 入居中 |
| 入居可能日 | |
| 入居予約 | |
| No. | C-3 |
| 間取り | ロフト付き1K |
| 広さ | LDK10.6帖+ロフト3.0帖 |
| 駐車場 | ガレージ(最大部分)幅3.9ⅿ×奥行7.1ⅿ |
| 賃料 | ー |
| その他 | リモコン式電動シャッター 幅2.9ⅿ×高さ2.1ⅿ |
| 空き状況 | 入居中 |
| 入居可能日 | |
| 入居予約 | |
| No. | D-1 |
| 間取り | 1LDK |
| 広さ | LDK10.2帖+Bedroom3.5帖 |
| 駐車場 | ガレージ(最大部分)幅4.7ⅿ×奥行7.1ⅿ |
| 賃料 | ー |
| その他 | リモコン式電動シャッター 幅2.8ⅿ×高さ2.1ⅿ |
| 空き状況 | 入居中 |
| 入居可能日 | |
| 入居予約 | |
| No. | D-2 |
| 間取り | 1LDK |
| 広さ | LDK10.2帖+Bedroom3.5帖 |
| 駐車場 | ガレージ(最大部分)幅4.7ⅿ×奥行7.1ⅿ |
| 賃料 | ー |
| その他 | リモコン式電動シャッター 幅2.8ⅿ×高さ2.1ⅿ |
| 空き状況 | 入居中 |
| 入居可能日 | |
| 入居予約 | |
| No. | D-3 |
| 間取り | 1LDK |
| 広さ | LDK10.2帖+Bedroom3.5帖 |
| 駐車場 | ガレージ(最大部分)幅4.7ⅿ×奥行7.1ⅿ |
| 賃料 | ー |
| その他 | リモコン式電動シャッター 幅2.8ⅿ×高さ2.1ⅿ |
| 空き状況 | 入居中 |
| 入居可能日 | |
| 入居予約 | |
| No. | D-5 |
| 間取り | 1LDK |
| 広さ | LDK10.2帖+Bedroom3.5帖 |
| 駐車場 | ガレージ(最大部分)幅4.7ⅿ×奥行7.1ⅿ |
| 賃料 | ー |
| その他 | リモコン式電動シャッター 幅2.8ⅿ×高さ2.1ⅿ |
| 空き状況 | 入居中 |
| 入居可能日 | |
| 入居予約 |
RECOMMEND
おすすめ物件
