CARBINS 01 愛知県 尾張旭市 桜ヶ丘町西413番地 ガレージハウス7戸
EIGHT BASE
アクセス良好・好立地に12戸の大型物件登場!
PLAN
見取り図
※画像をクリックすると拡大してご覧いただけます
SPEC
スペック
- 物件概要
-
■愛知県知立市八ツ田町曲り19-2一部、19-5一部
■全12戸(1Kロフトベッド2戸/1LDK5戸/2LDKスキップフロア1戸/1LDKロフト付き(防音ガレージタイプ)1戸/1LDKロフト付き(防音タイプ)1戸/1LDK(防音ガレージタイプ)1戸/2LDK(防音タイプ)1戸
■2021年7月完成
全9タイプ、12戸の大型物件!
防音ガレージ初登場!
カリフォルニアテイストでオシャレなガレージライフを楽しみましょう♪
敷地内に屋外駐車場6台分あり。 - 竣工日
- 2021年7月
- 交 通
- ・国道23号線(知立バイパス)西中IC 車で約5分
・国道1号線 車で約5分
・伊勢湾岸自動車道 豊田南IC 車で約10分
・名古屋鉄道本線 知立駅 車で約10分 - 設 備
-
☆ガレージ内設備☆
リモコン式電動シャッター
給湯設備
レール式スポットライト+ダウンライト
センサー付き換気扇
収納棚取り付け可能
エアコン設置可
電気自動車対応
TV用ジャックあり
宅配ボックス付
敷地内に防犯カメラあり
<2階居室>
・各戸インターネット無料
・温水洗浄便座あり
・浴室暖房乾燥機 - 賃貸条件
- ※満室のため非表示
- その他
- ペット不可 参考間取り。現況優先。
MAP
地 図
ROOM
部屋一覧
入居予約をご希望の方は左の予約ボタンを押してください。専用のフォームへ移動します。
- ●:キャンセル待ちなし
- まだご予約が入っていないお部屋です。
- ▲:キャンセル待ちあり
- すでにご予約が入っているお部屋です (やむを得ない事情で入居辞退される方も一定数おられますので、ご入居できる可能性は十分にあります。)
| 入居予約 | No. | 間取り | 広さ | 駐車場 | 賃料 | その他 | 空き状況 | 入居可能日 |
|---|---|---|---|---|---|---|---|---|
| A-01 | Aタイプ:1LDK | LDK10.4帖+洋室3.7帖 | ガレージ幅5.0m×奥行7.5m(最大部分) | ー | シャッター幅3.4m×高さ2.2m | 入居中 | ||
| A-02 | Bタイプ:1Kロフトベッド | LDK10.4帖+ロフトベッド1.5帖 | ガレージ幅4.0m×奥行7.5m(最大部分) | ー | シャッター幅2.6m×高さ2.2m | 入居中 | ||
| A-03 | Bタイプ:1Kロフトベッド | LDK10.4帖+ロフトベッド1.5帖 | ガレージ幅4.0m×奥行7.5m(最大部分) | ー | シャッター幅2.6m×高さ2.2m | 入居中 | ||
| A-04 | Aタイプ:1LDK | LDK10.4帖+洋室3.7帖 | ガレージ幅5.0m×奥行7.5m(最大部分) | ー | シャッター幅3.4m×高さ2.2m | 入居中 | ||
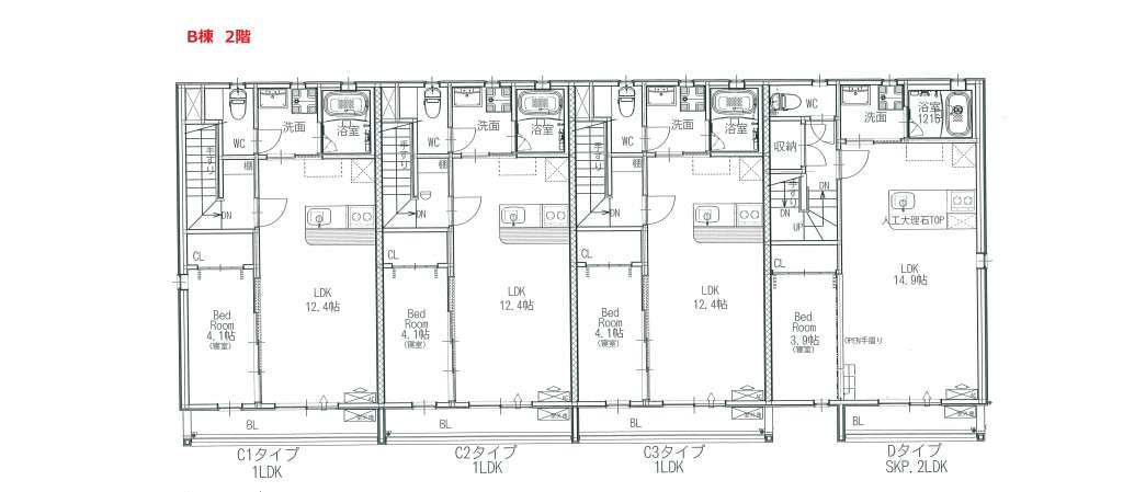
| B-01 | C1タイプ:1LDK(専用庭付き) | LDK12.4帖+洋室4.1帖 | ガレージ幅5.0m×奥行8.1m(最大部分) | ー | シャッター幅3.4m×高さ2.2m庭側:手動シャッター2.2m×高さ2.2m | 入居中 | ||
| B-02 | C2タイプ:1LDK(専用庭付き) | LDK12.4帖+洋室4.1帖 | ガレージ幅5.0m×奥行7.0m(最大部分) | ー | シャッター幅3.4m×高さ2.2m庭側:手動シャッター2.2m×高さ2.2m | 入居中 | ||
| B-03 | C2タイプ:1LDK(専用庭付き) | LDK12.4帖+洋室4.1帖 | ガレージ幅5.0m×奥行7.0m(最大部分) | ー | シャッター幅3.4m×高さ2.2m庭側:手動シャッター2.2m×高さ2.2m | 入居中 | ||
| B-04 | Dタイプ:2LDKスキップフロア(専用庭付き) | LDK14.9帖+洋室3.9帖+中2階洋室4.7帖 | ガレージ幅3.3m×奥行8.1m(最大部分)・物置4.7帖付き | ー | シャッター幅3.1m×高さ2.2m庭側:手動シャッター3.1m×高さ2.2m | 入居中 | ||
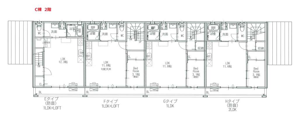
| C-01 | Hタイプ:2LDK(防音室・専用庭付き) | LDK11.6帖+防音室5.0帖+洋室3.1帖 | ガレージ幅6.0m×奥行6.3m(最大部分) | ー | シャッター幅3.2m×高さ2.2m庭側:手動シャッター3.2m×高さ2.2m | 入居中 | ||
| C-02 | Gタイプ:1LDK(防音ガレージ・専用庭付き) | LDK11.6帖+洋室3.1帖 | ガレージ幅6.0m×奥行6.3m(最大部分) | ー | シャッター幅3.2m×高さ2.2m庭側:手動シャッター3.2m×高さ2.2m | 入居中 | ||
| C-03 | Fタイプ:1LDKロフト付き(防音ガレージ・専用庭付き) | LDK11.6帖+洋室3.1帖+ロフト7.1帖 | ガレージ幅6.0m×奥行6.3m(最大部分) | ー | シャッター幅3.2m×高さ2.2m庭側:手動シャッター3.2m×高さ2.2m | 入居中 | ||
| C-04 | Eタイプ:1LDKロフト付き(防音室・専用庭付き) | LDK12.3帖+防音室5.3帖+ロフト5.9帖 | ガレージ幅5.0m×奥行6.3m(最大部分) | ー | シャッター幅3.2m×高さ2.2m庭側:手動シャッター2.5m×高さ2.2m | 入居中 |
| No. | A-01 |
|---|---|
| 間取り | Aタイプ:1LDK |
| 広さ | LDK10.4帖+洋室3.7帖 |
| 駐車場 | ガレージ幅5.0m×奥行7.5m(最大部分) |
| 賃料 | ー |
| その他 | シャッター幅3.4m×高さ2.2m |
| 空き状況 | 入居中 |
| 入居可能日 | |
| 入居予約 | |
| No. | A-02 |
| 間取り | Bタイプ:1Kロフトベッド |
| 広さ | LDK10.4帖+ロフトベッド1.5帖 |
| 駐車場 | ガレージ幅4.0m×奥行7.5m(最大部分) |
| 賃料 | ー |
| その他 | シャッター幅2.6m×高さ2.2m |
| 空き状況 | 入居中 |
| 入居可能日 | |
| 入居予約 | |
| No. | A-03 |
| 間取り | Bタイプ:1Kロフトベッド |
| 広さ | LDK10.4帖+ロフトベッド1.5帖 |
| 駐車場 | ガレージ幅4.0m×奥行7.5m(最大部分) |
| 賃料 | ー |
| その他 | シャッター幅2.6m×高さ2.2m |
| 空き状況 | 入居中 |
| 入居可能日 | |
| 入居予約 | |
| No. | A-04 |
| 間取り | Aタイプ:1LDK |
| 広さ | LDK10.4帖+洋室3.7帖 |
| 駐車場 | ガレージ幅5.0m×奥行7.5m(最大部分) |
| 賃料 | ー |
| その他 | シャッター幅3.4m×高さ2.2m |
| 空き状況 | 入居中 |
| 入居可能日 | |
| 入居予約 | |
| No. | B-01 |
| 間取り | C1タイプ:1LDK(専用庭付き) |
| 広さ | LDK12.4帖+洋室4.1帖 |
| 駐車場 | ガレージ幅5.0m×奥行8.1m(最大部分) |
| 賃料 | ー |
| その他 | シャッター幅3.4m×高さ2.2m庭側:手動シャッター2.2m×高さ2.2m |
| 空き状況 | 入居中 |
| 入居可能日 | |
| 入居予約 | |
| No. | B-02 |
| 間取り | C2タイプ:1LDK(専用庭付き) |
| 広さ | LDK12.4帖+洋室4.1帖 |
| 駐車場 | ガレージ幅5.0m×奥行7.0m(最大部分) |
| 賃料 | ー |
| その他 | シャッター幅3.4m×高さ2.2m庭側:手動シャッター2.2m×高さ2.2m |
| 空き状況 | 入居中 |
| 入居可能日 | |
| 入居予約 | |
| No. | B-03 |
| 間取り | C2タイプ:1LDK(専用庭付き) |
| 広さ | LDK12.4帖+洋室4.1帖 |
| 駐車場 | ガレージ幅5.0m×奥行7.0m(最大部分) |
| 賃料 | ー |
| その他 | シャッター幅3.4m×高さ2.2m庭側:手動シャッター2.2m×高さ2.2m |
| 空き状況 | 入居中 |
| 入居可能日 | |
| 入居予約 | |
| No. | B-04 |
| 間取り | Dタイプ:2LDKスキップフロア(専用庭付き) |
| 広さ | LDK14.9帖+洋室3.9帖+中2階洋室4.7帖 |
| 駐車場 | ガレージ幅3.3m×奥行8.1m(最大部分)・物置4.7帖付き |
| 賃料 | ー |
| その他 | シャッター幅3.1m×高さ2.2m庭側:手動シャッター3.1m×高さ2.2m |
| 空き状況 | 入居中 |
| 入居可能日 | |
| 入居予約 | |
| No. | C-01 |
| 間取り | Hタイプ:2LDK(防音室・専用庭付き) |
| 広さ | LDK11.6帖+防音室5.0帖+洋室3.1帖 |
| 駐車場 | ガレージ幅6.0m×奥行6.3m(最大部分) |
| 賃料 | ー |
| その他 | シャッター幅3.2m×高さ2.2m庭側:手動シャッター3.2m×高さ2.2m |
| 空き状況 | 入居中 |
| 入居可能日 | |
| 入居予約 | |
| No. | C-02 |
| 間取り | Gタイプ:1LDK(防音ガレージ・専用庭付き) |
| 広さ | LDK11.6帖+洋室3.1帖 |
| 駐車場 | ガレージ幅6.0m×奥行6.3m(最大部分) |
| 賃料 | ー |
| その他 | シャッター幅3.2m×高さ2.2m庭側:手動シャッター3.2m×高さ2.2m |
| 空き状況 | 入居中 |
| 入居可能日 | |
| 入居予約 | |
| No. | C-03 |
| 間取り | Fタイプ:1LDKロフト付き(防音ガレージ・専用庭付き) |
| 広さ | LDK11.6帖+洋室3.1帖+ロフト7.1帖 |
| 駐車場 | ガレージ幅6.0m×奥行6.3m(最大部分) |
| 賃料 | ー |
| その他 | シャッター幅3.2m×高さ2.2m庭側:手動シャッター3.2m×高さ2.2m |
| 空き状況 | 入居中 |
| 入居可能日 | |
| 入居予約 | |
| No. | C-04 |
| 間取り | Eタイプ:1LDKロフト付き(防音室・専用庭付き) |
| 広さ | LDK12.3帖+防音室5.3帖+ロフト5.9帖 |
| 駐車場 | ガレージ幅5.0m×奥行6.3m(最大部分) |
| 賃料 | ー |
| その他 | シャッター幅3.2m×高さ2.2m庭側:手動シャッター2.5m×高さ2.2m |
| 空き状況 | 入居中 |
| 入居可能日 | |
| 入居予約 |
RECOMMEND
おすすめ物件
