CARBINS 01 愛知県 尾張旭市 桜ヶ丘町西413番地 ガレージハウス7戸
ガレージハウス ポール リカール
交通の便良好な好立地!暮らし方に応じて選べる3タイプ
PLAN
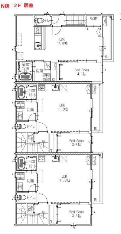
見取り図
※画像をクリックすると拡大してご覧いただけます
SPEC
スペック
- 物件概要
-
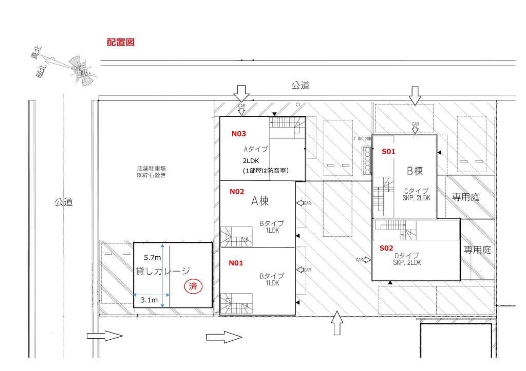
■愛知県一宮市公園通6丁目29番の一部、他
■2棟5戸(1LDK2戸/2LDKスキップフロア2戸/2LDK(1部屋は防音室)1戸
■2021年10月完成
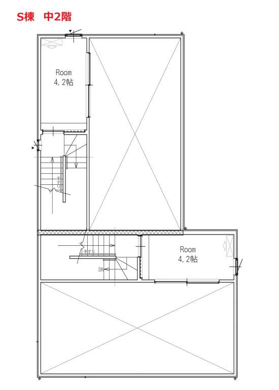
・2LDKスキップフロアタイプは中2階からガレージが見える人気の高いタイプ。専用庭と屋外駐車場2台付き!
・ガレージ横に防音室のある「音スタイル」は限定1戸。屋外駐車場1台付き。
・1LDK2戸は電動式シャッターが3.3mの幅広タイプ。ガレージ広々! - 竣工日
- 2021年10月
- 交 通
- ・名鉄一宮駅 JR尾張一宮駅 自転車で約8分、車で約2分
・名古屋高速一宮中IC入口 車で約5分
・国道22号 車で約4分 - 設 備
-
☆ガレージ内設備☆
リモコン式電動シャッター
給湯設備
レール式スポットライト+センサー付ダウンライト
センサー付き換気扇
収納棚取り付け可能
エアコン設置可
電気自動車対応
TV用ジャックあり
宅配ボックス有 - 賃貸条件
- ※満室のため非表示
- その他
- ペット不可 ・参考間取り。現況優先。。
MAP
地 図
ROOM
部屋一覧
入居予約をご希望の方は左の予約ボタンを押してください。専用のフォームへ移動します。
- ●:キャンセル待ちなし
- まだご予約が入っていないお部屋です。
- ▲:キャンセル待ちあり
- すでにご予約が入っているお部屋です (やむを得ない事情で入居辞退される方も一定数おられますので、ご入居できる可能性は十分にあります。)
| 入居予約 | No. | 間取り | 広さ | 駐車場 | 賃料 | その他 | 空き状況 | 入居可能日 |
|---|---|---|---|---|---|---|---|---|
| N01 | 1LDK | LDK11.6帖+洋室3.3帖 | ガレージ幅5.9m×奥行6.3m(最大部分) | ー | シャッター幅3.3m×高さ2.2m | 入居中 | ||
| N02 | 1LDK | LDK11.6帖+洋室3.3帖 | ガレージ幅5.9m×奥行6.3m(最大部分) | ー | シャッター幅3.3m×高さ2.2m | 入居中 | ||
| N03 | 2LDK・1部屋は防音室(音スタイル) | LDK14.0帖+洋室4.1帖+防音室7.2帖 | ガレージ幅4.1m×奥行5.6m(最大部分) | ー | シャッター幅2.8m×高さ2.2m | 入居中 | ||
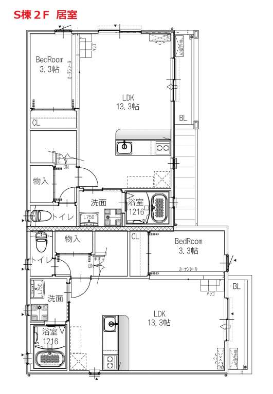
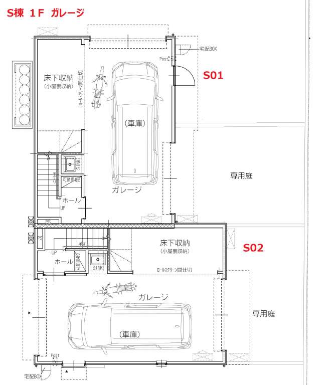
| S01 | 2LDKスキップフロア | LDK13.3帖+洋室3.3帖+中2階4.2帖 | ガレージ幅5.3m×奥行7.4m(最大部分) | ー | シャッター幅3.0m×高さ2.2m | 入居中 | ||
| S02 | 2LDKスキップフロア | LDK13.3帖+洋室3.3帖+中2階4.2帖 | ガレージ幅5.3m×奥行7.4m(最大部分) | ー | シャッター幅2.8m×高さ2.2m | 入居中 |
| No. | N01 |
|---|---|
| 間取り | 1LDK |
| 広さ | LDK11.6帖+洋室3.3帖 |
| 駐車場 | ガレージ幅5.9m×奥行6.3m(最大部分) |
| 賃料 | ー |
| その他 | シャッター幅3.3m×高さ2.2m |
| 空き状況 | 入居中 |
| 入居可能日 | |
| 入居予約 | |
| No. | N02 |
| 間取り | 1LDK |
| 広さ | LDK11.6帖+洋室3.3帖 |
| 駐車場 | ガレージ幅5.9m×奥行6.3m(最大部分) |
| 賃料 | ー |
| その他 | シャッター幅3.3m×高さ2.2m |
| 空き状況 | 入居中 |
| 入居可能日 | |
| 入居予約 | |
| No. | N03 |
| 間取り | 2LDK・1部屋は防音室(音スタイル) |
| 広さ | LDK14.0帖+洋室4.1帖+防音室7.2帖 |
| 駐車場 | ガレージ幅4.1m×奥行5.6m(最大部分) |
| 賃料 | ー |
| その他 | シャッター幅2.8m×高さ2.2m |
| 空き状況 | 入居中 |
| 入居可能日 | |
| 入居予約 | |
| No. | S01 |
| 間取り | 2LDKスキップフロア |
| 広さ | LDK13.3帖+洋室3.3帖+中2階4.2帖 |
| 駐車場 | ガレージ幅5.3m×奥行7.4m(最大部分) |
| 賃料 | ー |
| その他 | シャッター幅3.0m×高さ2.2m |
| 空き状況 | 入居中 |
| 入居可能日 | |
| 入居予約 | |
| No. | S02 |
| 間取り | 2LDKスキップフロア |
| 広さ | LDK13.3帖+洋室3.3帖+中2階4.2帖 |
| 駐車場 | ガレージ幅5.3m×奥行7.4m(最大部分) |
| 賃料 | ー |
| その他 | シャッター幅2.8m×高さ2.2m |
| 空き状況 | 入居中 |
| 入居可能日 | |
| 入居予約 |
RECOMMEND
おすすめ物件
