CARBINS 01 愛知県 尾張旭市 桜ヶ丘町西413番地 ガレージハウス7戸
Gスタイル豊明
アクセス良好!住環境便利!
PLAN
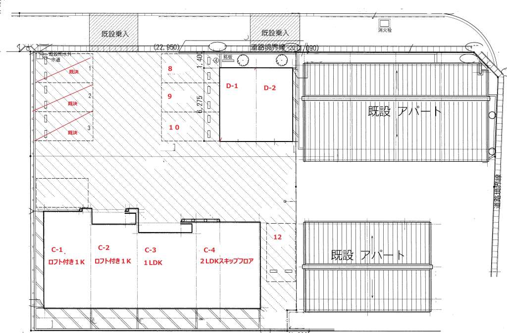
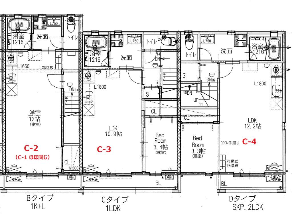
見取り図
※画像をクリックすると拡大してご覧いただけます
SPEC
スペック
- 物件概要
-
■愛知県豊明市新田町中ノ割152-12
■2LDKスキップフロア1戸/1LDK1戸/ロフト付1K2戸
■2018(H30)年11月末完成
人気物件「Gスタイル豊明」第2弾!しかも、これまた人気の2LDKスキップフロアを併設!
近隣は飲食店や商店など充実。 - 竣工日
- 2018年11月
- 交 通
- ・名鉄バス「吉池郵便局」バス停、ひまわりバス「吉池郵便局」バス停 目の前。
・名四国道まで車で5分。
・伊勢湾岸自動車道豊明ICまで車で5分。
・名鉄本線 豊明駅まで車で3分。 - 設 備
-
☆ガレージ内設備は次の通り☆
リモコン式電動シャッター
給湯設備
レール式スポットライト
センサー付き換気扇
収納棚取り付け可能
エアコン設置可
電気自動車対応
TV端子 - 賃貸条件
- ※満室のため非表示
- その他
- ペット不可
MAP
地 図
ROOM
部屋一覧
入居予約をご希望の方は左の予約ボタンを押してください。専用のフォームへ移動します。
- ●:キャンセル待ちなし
- まだご予約が入っていないお部屋です。
- ▲:キャンセル待ちあり
- すでにご予約が入っているお部屋です (やむを得ない事情で入居辞退される方も一定数おられますので、ご入居できる可能性は十分にあります。)
| 入居予約 | No. | 間取り | 広さ | 駐車場 | 賃料 | その他 | 空き状況 | 入居可能日 |
|---|---|---|---|---|---|---|---|---|
| C-1 | ロフト付1K | 洋室12.0帖+ロフト4.0帖 | ガレージ幅3.9m×奥行7.3m(最大部分) | ー | シャッター幅2.4m×高さ2.2m | 入居中 | ||
| C-2 | ロフト付1K | 洋室12.0帖+ロフト4.0帖 | ガレージ幅3.9m×奥行7.0m(最大部分) | ー | シャッター幅2.4m×高さ2.2m | 入居中 | ||
| C-3 | 1LDK | LDK10.9帖+BedRoom3.4帖 | ガレージ幅5.0m×奥行6.3m(最大部分) | ー | シャッター幅3.0m×高さ2.2m | 入居中 | ||
| C-4 | 2LDKスキップフロア | LDK12.2帖+洋室3.3帖+中2階4.3帖 | ガレージ幅3.3m×奥行7.2m(最大部分)・小屋裏物置付き | ー | シャッター幅3.0m×高さ2.2m | 入居中 |
| No. | C-1 |
|---|---|
| 間取り | ロフト付1K |
| 広さ | 洋室12.0帖+ロフト4.0帖 |
| 駐車場 | ガレージ幅3.9m×奥行7.3m(最大部分) |
| 賃料 | ー |
| その他 | シャッター幅2.4m×高さ2.2m |
| 空き状況 | 入居中 |
| 入居可能日 | |
| 入居予約 | |
| No. | C-2 |
| 間取り | ロフト付1K |
| 広さ | 洋室12.0帖+ロフト4.0帖 |
| 駐車場 | ガレージ幅3.9m×奥行7.0m(最大部分) |
| 賃料 | ー |
| その他 | シャッター幅2.4m×高さ2.2m |
| 空き状況 | 入居中 |
| 入居可能日 | |
| 入居予約 | |
| No. | C-3 |
| 間取り | 1LDK |
| 広さ | LDK10.9帖+BedRoom3.4帖 |
| 駐車場 | ガレージ幅5.0m×奥行6.3m(最大部分) |
| 賃料 | ー |
| その他 | シャッター幅3.0m×高さ2.2m |
| 空き状況 | 入居中 |
| 入居可能日 | |
| 入居予約 | |
| No. | C-4 |
| 間取り | 2LDKスキップフロア |
| 広さ | LDK12.2帖+洋室3.3帖+中2階4.3帖 |
| 駐車場 | ガレージ幅3.3m×奥行7.2m(最大部分)・小屋裏物置付き |
| 賃料 | ー |
| その他 | シャッター幅3.0m×高さ2.2m |
| 空き状況 | 入居中 |
| 入居可能日 | |
| 入居予約 |
RECOMMEND
おすすめ物件
