CARBINS 01 愛知県 尾張旭市 桜ヶ丘町西413番地 ガレージハウス7戸
ガレージハウスアルディート
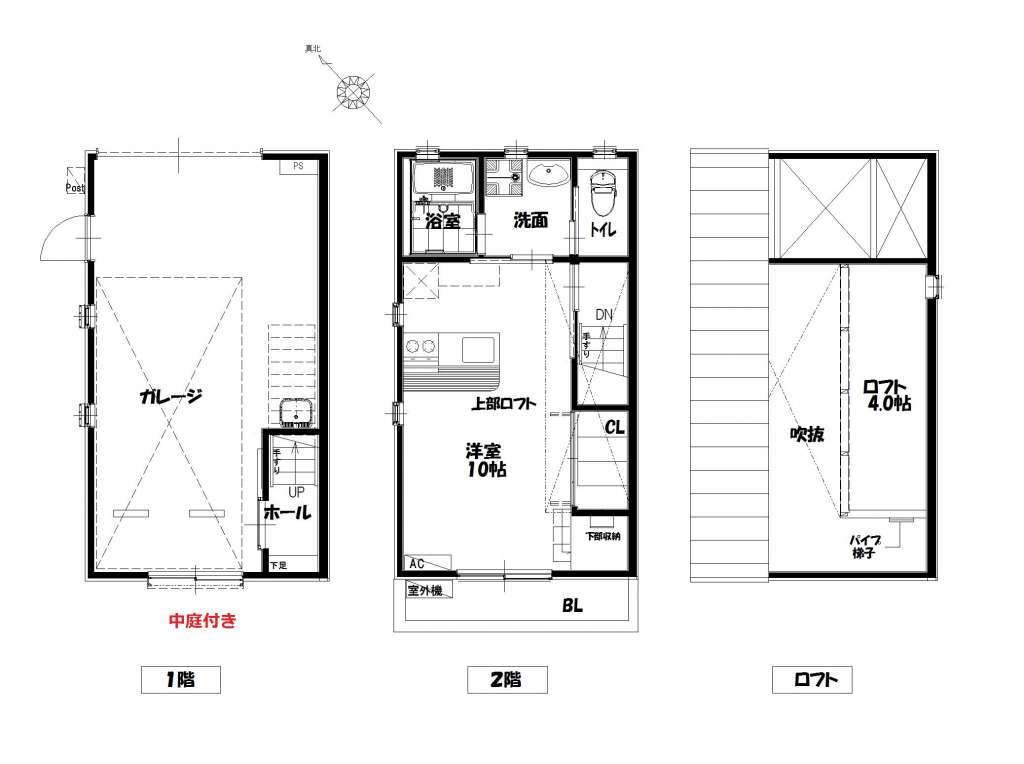
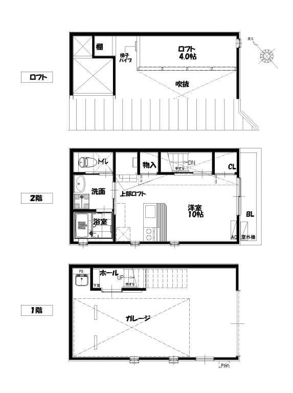
PLAN
見取り図
※画像をクリックすると拡大してご覧いただけます
SPEC
スペック
- 物件概要
-
■愛知県刈谷市井ヶ谷町下前田28-1
■ロフト付1K 3戸
■2013(平成25)年9月完成
今やデッドストックの吹抜けタイプ・ロフト付き!ほかの1Kでは味わえない高い天井で充実の開放感!
普通車と大形バイクを余裕で格納できる広さ十分のガレージに、専用庭までついています! - 竣工日
- 2013年9月
- 交 通
- 伊勢湾岸自動車道 豊明IC 車10分
伊勢湾岸自動車道 豊田南IC クルマ10分 - 設 備
-
☆ガレージ内設備
リモコン式電動シャッター
給湯設備
レール式スポットライト
センサー付き換気扇
収納棚取り付け可能
エアコン設置可
電気自動車対応 - 賃貸条件
- ※満室のため非表示
- その他
-
ペット不可
・ピアゴまで360m
・辻村外科病院 470m
・コンビニ 360m
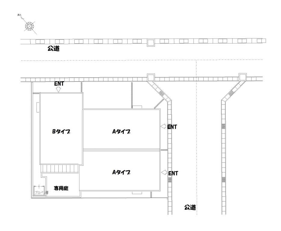
MAP
地 図
ROOM
部屋一覧
入居予約をご希望の方は左の予約ボタンを押してください。専用のフォームへ移動します。
- ●:キャンセル待ちなし
- まだご予約が入っていないお部屋です。
- ▲:キャンセル待ちあり
- すでにご予約が入っているお部屋です (やむを得ない事情で入居辞退される方も一定数おられますので、ご入居できる可能性は十分にあります。)
| 入居予約 | No. | 間取り | 広さ | 駐車場 | 賃料 | その他 | 空き状況 | 入居可能日 |
|---|---|---|---|---|---|---|---|---|
| A | 1Kロフト付(Bタイプ) | LDK10.0帖+ロフト4.0帖 | ガレージ幅3.9m×奥行7.1m(最大部分) | ー | シャッター幅2.9m×高さ2.1m | 入居中 | ||
| B | 1Kロフト付き(Aタイプ) | LDK10.0帖+ロフト4.0帖 | ガレージ幅3.9m×奥行7.1m(最大部分) | ー | シャッター幅2.9m×高さ2.1m | 入居中 | ||
| C | 1Kロフト付き(Aタイプ) | LDK10.0帖+ロフト4.0帖 | ガレージ幅3.9m×奥行7.1m(最大部分) | ー | シャッター幅2.9m×高さ2.1m | 入居中 |
| No. | A |
|---|---|
| 間取り | 1Kロフト付(Bタイプ) |
| 広さ | LDK10.0帖+ロフト4.0帖 |
| 駐車場 | ガレージ幅3.9m×奥行7.1m(最大部分) |
| 賃料 | ー |
| その他 | シャッター幅2.9m×高さ2.1m |
| 空き状況 | 入居中 |
| 入居可能日 | |
| 入居予約 | |
| No. | B |
| 間取り | 1Kロフト付き(Aタイプ) |
| 広さ | LDK10.0帖+ロフト4.0帖 |
| 駐車場 | ガレージ幅3.9m×奥行7.1m(最大部分) |
| 賃料 | ー |
| その他 | シャッター幅2.9m×高さ2.1m |
| 空き状況 | 入居中 |
| 入居可能日 | |
| 入居予約 | |
| No. | C |
| 間取り | 1Kロフト付き(Aタイプ) |
| 広さ | LDK10.0帖+ロフト4.0帖 |
| 駐車場 | ガレージ幅3.9m×奥行7.1m(最大部分) |
| 賃料 | ー |
| その他 | シャッター幅2.9m×高さ2.1m |
| 空き状況 | 入居中 |
| 入居可能日 | |
| 入居予約 |
RECOMMEND
おすすめ物件
