CARBINS 01 愛知県 尾張旭市 桜ヶ丘町西413番地 ガレージハウス7戸
ガレージハウス アルディートトリノ
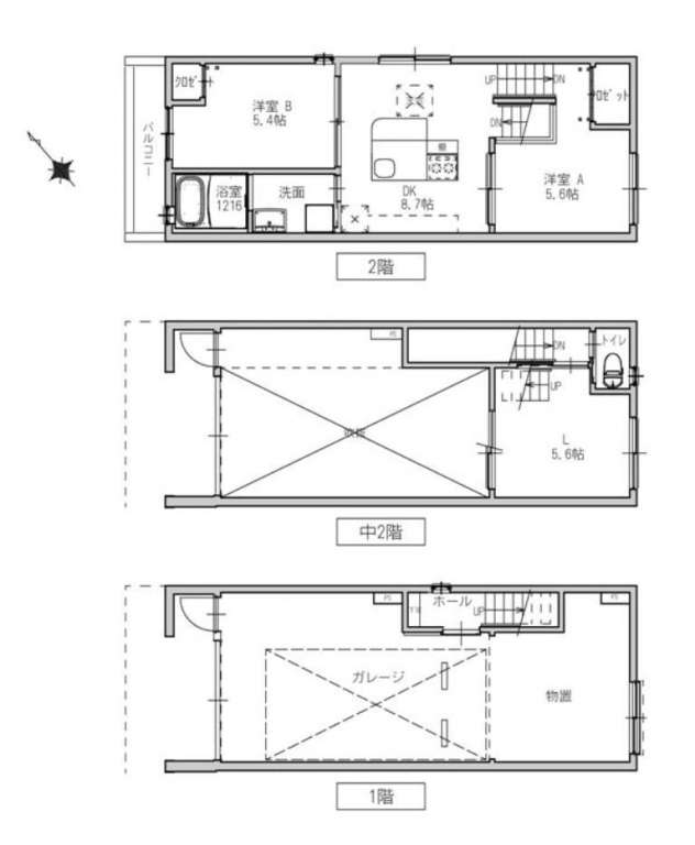
・希少なスキップフロア2LDK! ・庭付 ・シャッター前に駐車可(現地要確認)
PLAN
見取り図
※画像をクリックすると拡大してご覧いただけます
SPEC
スペック
- 物件概要
-
■愛知県刈谷市井ヶ谷町下前田28-6
■中2階2LDK 2戸
■2014(平成26)年12月完成
・みよし、豊田方面にもアクセスしやすい立地。
・人気のスキップフロア&アイランドキッチン。
・シャッター前にも駐車スペースあり - 竣工日
- 2014年12月
- 交 通
- 名鉄バス「愛知教育大学前」停 徒歩9分
伊勢湾岸道路 豊明IC、豊田南ICいずれも車10分
刈谷スマートIC車4分
伊勢湾岸道路の前 - 設 備
-
ガレージ内設備
・リモコン式電動シャッター
・給湯給水設備
・人感センサー付換気扇
・人感センサー付レール式照明
・電気自動車充電用コンセントあり
・ガスファンヒーター用コックあり
・エアコン設置可
・飾り柱あり(クギ・ビス打ち可。収納棚取付可) - 賃貸条件
- ※満室のため非表示
- その他
-
ペット不可
・コンビニエンスストア(ファミリーマート) 徒歩3分
・ホームセンター 徒歩4分
・ピアゴ井ヶ谷店 徒歩2分
・ドラッグストアゲンキー徒歩2分
MAP
地 図
ROOM
部屋一覧
入居予約をご希望の方は左の予約ボタンを押してください。専用のフォームへ移動します。
- ●:キャンセル待ちなし
- まだご予約が入っていないお部屋です。
- ▲:キャンセル待ちあり
- すでにご予約が入っているお部屋です (やむを得ない事情で入居辞退される方も一定数おられますので、ご入居できる可能性は十分にあります。)
| 入居予約 | No. | 間取り | 広さ | 駐車場 | 賃料 | その他 | 空き状況 | 入居可能日 |
|---|---|---|---|---|---|---|---|---|
| G1 | 中2階2LDK | L5.6帖+DK8.7帖+洋室5.4帖+洋室5.6帖 | ガレージ幅4.0m×奥行9.4m(最大部分) | ー | シャッター幅3.0m×高さ2.15m | 入居中 | ||
| G2 | 中2階2LDK | L5.6帖+DK8.7帖+洋室5.4帖+洋室5.6帖 | ガレージ幅4.0m×奥行9.4m(最大部分) | ー | シャッター幅3.0m×高さ2.15m | 入居中 |
| No. | G1 |
|---|---|
| 間取り | 中2階2LDK |
| 広さ | L5.6帖+DK8.7帖+洋室5.4帖+洋室5.6帖 |
| 駐車場 | ガレージ幅4.0m×奥行9.4m(最大部分) |
| 賃料 | ー |
| その他 | シャッター幅3.0m×高さ2.15m |
| 空き状況 | 入居中 |
| 入居可能日 | |
| 入居予約 | |
| No. | G2 |
| 間取り | 中2階2LDK |
| 広さ | L5.6帖+DK8.7帖+洋室5.4帖+洋室5.6帖 |
| 駐車場 | ガレージ幅4.0m×奥行9.4m(最大部分) |
| 賃料 | ー |
| その他 | シャッター幅3.0m×高さ2.15m |
| 空き状況 | 入居中 |
| 入居可能日 | |
| 入居予約 |
RECOMMEND
おすすめ物件
