CARBINS 01 愛知県 尾張旭市 桜ヶ丘町西413番地 ガレージハウス7戸
astrum(アストルム)
国道1号線まで車で約6分の好立地!全戸シャッター前に屋外駐車場付き!
PLAN
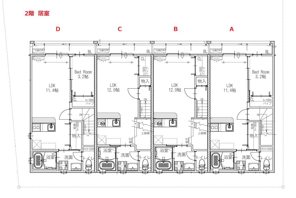
見取り図
※画像をクリックすると拡大してご覧いただけます
SPEC
スペック
- 物件概要
-
■愛知県安城市池浦町池東2-39の一部
■1棟4戸(1LDK2戸/1Kロフトベッド付き2戸)
■2022年7月末完成
・全戸屋外駐車場付き(シャッター前)。しかも、1LDKタイプの場合は車種により2台駐車可能!(サイズ・車種は要確認)
・敷地内に防犯カメラ1台設置
・イトーヨーカドー安城店まで車で約5分 - 竣工日
- 2022年7月
- 交 通
- ・国道1号線 今本町西交差点 車約6分
・国道23号線 高棚福釜IC 車約13分
・伊勢湾岸自動車道 豊田南IC 車約15分
・名鉄名古屋本線 新安城駅 車約4分 - 設 備
-
☆ガレージ内設備☆
リモコン式電動シャッター
給湯設備
レール式スポットライト+ダウンライト
センサー付き換気扇
収納棚取り付け可能
エアコン設置可
電気自動車対応
TV用ジャックあり - 賃貸条件
- ※満室のため非表示
- その他
-
ペット不可
参考間取り・現況優先。
。
MAP
地 図
ROOM
部屋一覧
入居予約をご希望の方は左の予約ボタンを押してください。専用のフォームへ移動します。
- ●:キャンセル待ちなし
- まだご予約が入っていないお部屋です。
- ▲:キャンセル待ちあり
- すでにご予約が入っているお部屋です (やむを得ない事情で入居辞退される方も一定数おられますので、ご入居できる可能性は十分にあります。)
| 入居予約 | No. | 間取り | 広さ | 駐車場 | 賃料 | その他 | 空き状況 | 入居可能日 |
|---|---|---|---|---|---|---|---|---|
| A | 1LDK | LDK11.4帖+洋室3.2帖 | ガレージ幅4.55m×奥行8.19m(最大部分) | ー | リモコン式電動シャッター幅3.0m×高さ2.2m | 入居中 | ||
| B | 1Kロフトベッド付き | LDK12.0帖 | ガレージ幅4.0m×奥行8.19m(最大部分) | ー | リモコン式電動シャッター幅2.6m×高さ2.2m | 入居中 | ||
| C | 1Kロフトベッド付き | LDK12.0帖 | ガレージ幅4.0m×奥行8.19m(最大部分) | ー | リモコン式電動シャッター幅2.6m×高さ2.2m | 入居中 | ||
| Ⅾ | 1LDK | LDK11.4帖+洋室3.2帖 | ガレージ幅4.55m×奥行8.19m(最大部分) | ー | リモコン式電動シャッター幅3.0m×高さ2.2m | 入居中 |
| No. | A |
|---|---|
| 間取り | 1LDK |
| 広さ | LDK11.4帖+洋室3.2帖 |
| 駐車場 | ガレージ幅4.55m×奥行8.19m(最大部分) |
| 賃料 | ー |
| その他 | リモコン式電動シャッター幅3.0m×高さ2.2m |
| 空き状況 | 入居中 |
| 入居可能日 | |
| 入居予約 | |
| No. | B |
| 間取り | 1Kロフトベッド付き |
| 広さ | LDK12.0帖 |
| 駐車場 | ガレージ幅4.0m×奥行8.19m(最大部分) |
| 賃料 | ー |
| その他 | リモコン式電動シャッター幅2.6m×高さ2.2m |
| 空き状況 | 入居中 |
| 入居可能日 | |
| 入居予約 | |
| No. | C |
| 間取り | 1Kロフトベッド付き |
| 広さ | LDK12.0帖 |
| 駐車場 | ガレージ幅4.0m×奥行8.19m(最大部分) |
| 賃料 | ー |
| その他 | リモコン式電動シャッター幅2.6m×高さ2.2m |
| 空き状況 | 入居中 |
| 入居可能日 | |
| 入居予約 | |
| No. | Ⅾ |
| 間取り | 1LDK |
| 広さ | LDK11.4帖+洋室3.2帖 |
| 駐車場 | ガレージ幅4.55m×奥行8.19m(最大部分) |
| 賃料 | ー |
| その他 | リモコン式電動シャッター幅3.0m×高さ2.2m |
| 空き状況 | 入居中 |
| 入居可能日 | |
| 入居予約 |
RECOMMEND
おすすめ物件
