CARBINS 01 愛知県 尾張旭市 桜ヶ丘町西413番地 ガレージハウス7戸
ルーセント石谷
東海市に大型物件登場!
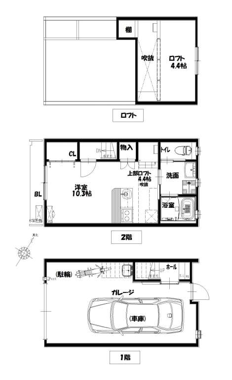
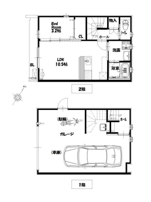
PLAN
見取り図
※画像をクリックすると拡大してご覧いただけます
SPEC
スペック
- 物件概要
-
■愛知県東海市名和町石谷38-1
■1LDK2戸+ロフト付1K5戸
■2015(平成27)年9月完成
アクセスのいい東海市に新たに登場!
名古屋方向へも反対方向へも移動しやすい東海市はオススメ! - 竣工日
- 2015年9月
- 交 通
- 西知多産業道路まで車で3分、名古屋高速 大高ICまで車で5分、伊勢湾岸道 東海ICまで車で5分
- 設 備
-
☆ガレージ内設備☆
リモコン式電動シャッター
給湯設備
レール式スポットライト
センサー付き換気扇
収納棚取り付け可能
エアコン設置可
電気自動車対応 - 賃貸条件
- ※満室のため非表示
- その他
- ペット不可
MAP
地 図
ROOM
部屋一覧
入居予約をご希望の方は左の予約ボタンを押してください。専用のフォームへ移動します。
- ●:キャンセル待ちなし
- まだご予約が入っていないお部屋です。
- ▲:キャンセル待ちあり
- すでにご予約が入っているお部屋です (やむを得ない事情で入居辞退される方も一定数おられますので、ご入居できる可能性は十分にあります。)
| 入居予約 | No. | 間取り | 広さ | 駐車場 | 賃料 | その他 | 空き状況 | 入居可能日 |
|---|---|---|---|---|---|---|---|---|
| A-1 | ロフト付1K(B) | 10.3帖+ロフト4.4帖 | ガレージ7.2m×4.0m(最大部分) | ー | 入居中 | |||
| A-2 | ロフト付1K(A) | 10.3帖+ロフト4.4帖 | ガレージ7.2m×4.0m(最大部分) | ー | 入居中 | |||
| A-3 | ロフト付1K(A) | 10.3帖+ロフト4.4帖 | ガレージ7.2m×4.0m(最大部分) | ー | 入居中 | |||
| B-1 | 1LDK(C) | 10.5帖+3.2帖 | ガレージ7.2m×5.0m(最大部分) | ー | 入居中 | |||
| B-2 | ロフト付1K(A) | 10.3帖+ロフト4.4帖 | ガレージ7.2m×4.0m(最大部分) | ー | 入居中 | |||
| B-3 | ロフト付1K(A) | 10.3帖+ロフト4.4帖 | ガレージ7.2m×4.0m(最大部分) | ー | 入居中 | |||
| B-5 | 1LDK(C) | 10.5帖+3.2帖 | ガレージ7.2m×5.0m(最大部分) | ー | 入居中 |
| No. | A-1 |
|---|---|
| 間取り | ロフト付1K(B) |
| 広さ | 10.3帖+ロフト4.4帖 |
| 駐車場 | ガレージ7.2m×4.0m(最大部分) |
| 賃料 | ー |
| その他 | |
| 空き状況 | 入居中 |
| 入居可能日 | |
| 入居予約 | |
| No. | A-2 |
| 間取り | ロフト付1K(A) |
| 広さ | 10.3帖+ロフト4.4帖 |
| 駐車場 | ガレージ7.2m×4.0m(最大部分) |
| 賃料 | ー |
| その他 | |
| 空き状況 | 入居中 |
| 入居可能日 | |
| 入居予約 | |
| No. | A-3 |
| 間取り | ロフト付1K(A) |
| 広さ | 10.3帖+ロフト4.4帖 |
| 駐車場 | ガレージ7.2m×4.0m(最大部分) |
| 賃料 | ー |
| その他 | |
| 空き状況 | 入居中 |
| 入居可能日 | |
| 入居予約 | |
| No. | B-1 |
| 間取り | 1LDK(C) |
| 広さ | 10.5帖+3.2帖 |
| 駐車場 | ガレージ7.2m×5.0m(最大部分) |
| 賃料 | ー |
| その他 | |
| 空き状況 | 入居中 |
| 入居可能日 | |
| 入居予約 | |
| No. | B-2 |
| 間取り | ロフト付1K(A) |
| 広さ | 10.3帖+ロフト4.4帖 |
| 駐車場 | ガレージ7.2m×4.0m(最大部分) |
| 賃料 | ー |
| その他 | |
| 空き状況 | 入居中 |
| 入居可能日 | |
| 入居予約 | |
| No. | B-3 |
| 間取り | ロフト付1K(A) |
| 広さ | 10.3帖+ロフト4.4帖 |
| 駐車場 | ガレージ7.2m×4.0m(最大部分) |
| 賃料 | ー |
| その他 | |
| 空き状況 | 入居中 |
| 入居可能日 | |
| 入居予約 | |
| No. | B-5 |
| 間取り | 1LDK(C) |
| 広さ | 10.5帖+3.2帖 |
| 駐車場 | ガレージ7.2m×5.0m(最大部分) |
| 賃料 | ー |
| その他 | |
| 空き状況 | 入居中 |
| 入居可能日 | |
| 入居予約 |
RECOMMEND
おすすめ物件
