CARBINS 01 愛知県 尾張旭市 桜ヶ丘町西413番地 ガレージハウス7戸
Good Life Base 太陽
知立バイパス上重原インターすぐ!4棟の大型ガレージタウンが登場!
PLAN
見取り図
※画像をクリックすると拡大してご覧いただけます
SPEC
スペック
- 物件概要
-
■愛知県知立市鳥居3丁目5-13
■1LDK 3戸/スキップフロア2LDK 2戸/ロフト付1K 3戸/ロフト付1LDK 3戸
■2016(平成28)年10月完成
・敷地内に4タイプの間取り。青空駐車場2台あり(別途費用要)
・23号線 上重原インターまで車で3分の好立地
・間取図は参考間取り、現況優先となります。 - 竣工日
- 2016年10月
- 交 通
- ・23号線 上重原インターまで車で3分程度
・アイシン本社、デンソー本社まで車で10分程度
・名鉄知立駅まで車で10分程度、JR刈谷駅まで車で10分程度
近隣にはスーパーやコンビニもあって便利な場所です。 - 設 備
-
☆ガレージ内設備は次の通り☆
リモコン式電動シャッター
給湯設備
レール式スポットライト
センサー付き換気扇
収納棚取り付け可能
エアコン設置可
電気自動車対応
☆居室設備☆
人工大理石天板のキッチン、シートタイルフロア - 賃貸条件
- ※満室のため非表示
- その他
-
ペット不可
A棟、B棟はシャッター前に青空駐車場有り。
C-1,D-3はシャッター前に青空駐車場あり。
MAP
地 図
ROOM
部屋一覧
入居予約をご希望の方は左の予約ボタンを押してください。専用のフォームへ移動します。
- ●:キャンセル待ちなし
- まだご予約が入っていないお部屋です。
- ▲:キャンセル待ちあり
- すでにご予約が入っているお部屋です (やむを得ない事情で入居辞退される方も一定数おられますので、ご入居できる可能性は十分にあります。)
| 入居予約 | No. | 間取り | 広さ | 駐車場 | 賃料 | その他 | 空き状況 | 入居可能日 |
|---|---|---|---|---|---|---|---|---|
| A-1 | 1LDK | LDK11.4帖+洋室3.2帖 | ガレージ幅4.55m×8.19m(いずれも最大部分) | ー | シャッター幅3.0m×高さ2.2m | 入居中 | ||
| A-2 | 1LDK | LDK11.4帖+洋室3.2帖 | ガレージ幅4.55m×8.19m(いずれも最大部分) | ー | シャッター幅3.0m×高さ2.2m | 入居中 | ||
| A-3 | 1LDK | LDK11.4帖+洋室3.2帖 | ガレージ幅4.55m×8.19m(いずれも最大部分) | ー | シャッター幅3.0m×高さ2.2m | 入居中 | ||
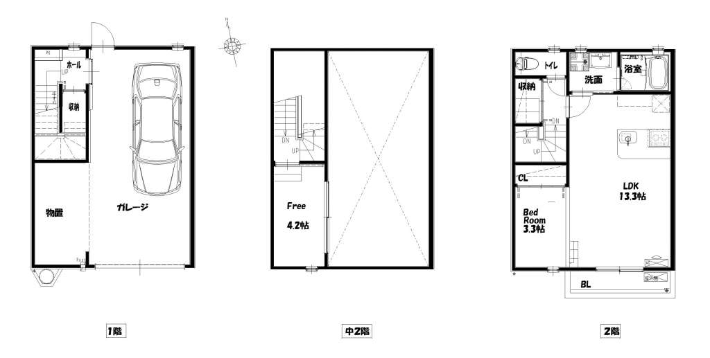
| B-1 | スキップフロア2LDK | LDK13.3帖+洋室3.3帖+4.2帖 | ガレージ幅5.46m(一部天井高1.39m)×7.5m(いずれも最大部分) | ー | シャッター幅3.0m×高さ2.2m | 入居中 | ||
| B-2 | スキップフロア2LDK | LDK13.3帖+洋室3.3帖+4.2帖 | ガレージ幅5.46m(一部天井高1.39m)×7.5m(いずれも最大部分) | ー | シャッター幅3.0m×高さ2.2m | 入居中 | ||
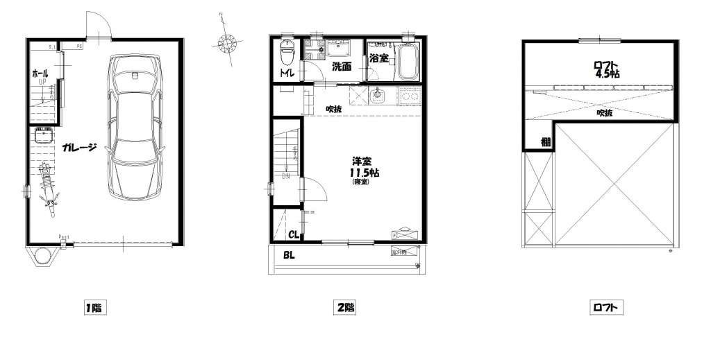
| C-1 | ロフト付1K | LDK11.5帖+ロフト4.5帖 | ガレージ幅4.75m×6.37m(いずれも最大部分) | ー | シャッター幅3.0m×高さ2.2m | 入居中 | ||
| C-2 | ロフト付1K | LDK11.5帖+ロフト4.5帖 | ガレージ幅4.75m×6.37m(いずれも最大部分) | ー | シャッター幅3.0m×高さ2.2m | 入居中 | ||
| C-3 | ロフト付1K | LDK11.5帖+ロフト4.5帖 | ガレージ幅4.75m×6.37m(いずれも最大部分) | ー | シャッター幅3.0m×高さ2.2m | 入居中 | ||
| D-1 | ロフト付1LDK | LDK11.1帖+洋室2.9帖+ロフト6.1帖 | ガレージ幅5.46m×6.5m(いずれも最大部分) | ー | シャッター幅3.0m×高さ2.2m | 入居中 | ||
| D-2 | ロフト付1LDK | LDK11.1帖+洋室2.9帖+ロフト6.1帖 | ガレージ幅5.46m×6.5m(いずれも最大部分) | ー | シャッター幅3.0m×高さ2.2m | 入居中 | ||
| D-3 | ロフト付1LDK | LDK11.1帖+洋室2.9帖+ロフト6.1帖 | ガレージ幅5.46m×6.5m(いずれも最大部分) | ー | シャッター幅3.0m×高さ2.2m | 入居中 |
| No. | A-1 |
|---|---|
| 間取り | 1LDK |
| 広さ | LDK11.4帖+洋室3.2帖 |
| 駐車場 | ガレージ幅4.55m×8.19m(いずれも最大部分) |
| 賃料 | ー |
| その他 | シャッター幅3.0m×高さ2.2m |
| 空き状況 | 入居中 |
| 入居可能日 | |
| 入居予約 | |
| No. | A-2 |
| 間取り | 1LDK |
| 広さ | LDK11.4帖+洋室3.2帖 |
| 駐車場 | ガレージ幅4.55m×8.19m(いずれも最大部分) |
| 賃料 | ー |
| その他 | シャッター幅3.0m×高さ2.2m |
| 空き状況 | 入居中 |
| 入居可能日 | |
| 入居予約 | |
| No. | A-3 |
| 間取り | 1LDK |
| 広さ | LDK11.4帖+洋室3.2帖 |
| 駐車場 | ガレージ幅4.55m×8.19m(いずれも最大部分) |
| 賃料 | ー |
| その他 | シャッター幅3.0m×高さ2.2m |
| 空き状況 | 入居中 |
| 入居可能日 | |
| 入居予約 | |
| No. | B-1 |
| 間取り | スキップフロア2LDK |
| 広さ | LDK13.3帖+洋室3.3帖+4.2帖 |
| 駐車場 | ガレージ幅5.46m(一部天井高1.39m)×7.5m(いずれも最大部分) |
| 賃料 | ー |
| その他 | シャッター幅3.0m×高さ2.2m |
| 空き状況 | 入居中 |
| 入居可能日 | |
| 入居予約 | |
| No. | B-2 |
| 間取り | スキップフロア2LDK |
| 広さ | LDK13.3帖+洋室3.3帖+4.2帖 |
| 駐車場 | ガレージ幅5.46m(一部天井高1.39m)×7.5m(いずれも最大部分) |
| 賃料 | ー |
| その他 | シャッター幅3.0m×高さ2.2m |
| 空き状況 | 入居中 |
| 入居可能日 | |
| 入居予約 | |
| No. | C-1 |
| 間取り | ロフト付1K |
| 広さ | LDK11.5帖+ロフト4.5帖 |
| 駐車場 | ガレージ幅4.75m×6.37m(いずれも最大部分) |
| 賃料 | ー |
| その他 | シャッター幅3.0m×高さ2.2m |
| 空き状況 | 入居中 |
| 入居可能日 | |
| 入居予約 | |
| No. | C-2 |
| 間取り | ロフト付1K |
| 広さ | LDK11.5帖+ロフト4.5帖 |
| 駐車場 | ガレージ幅4.75m×6.37m(いずれも最大部分) |
| 賃料 | ー |
| その他 | シャッター幅3.0m×高さ2.2m |
| 空き状況 | 入居中 |
| 入居可能日 | |
| 入居予約 | |
| No. | C-3 |
| 間取り | ロフト付1K |
| 広さ | LDK11.5帖+ロフト4.5帖 |
| 駐車場 | ガレージ幅4.75m×6.37m(いずれも最大部分) |
| 賃料 | ー |
| その他 | シャッター幅3.0m×高さ2.2m |
| 空き状況 | 入居中 |
| 入居可能日 | |
| 入居予約 | |
| No. | D-1 |
| 間取り | ロフト付1LDK |
| 広さ | LDK11.1帖+洋室2.9帖+ロフト6.1帖 |
| 駐車場 | ガレージ幅5.46m×6.5m(いずれも最大部分) |
| 賃料 | ー |
| その他 | シャッター幅3.0m×高さ2.2m |
| 空き状況 | 入居中 |
| 入居可能日 | |
| 入居予約 | |
| No. | D-2 |
| 間取り | ロフト付1LDK |
| 広さ | LDK11.1帖+洋室2.9帖+ロフト6.1帖 |
| 駐車場 | ガレージ幅5.46m×6.5m(いずれも最大部分) |
| 賃料 | ー |
| その他 | シャッター幅3.0m×高さ2.2m |
| 空き状況 | 入居中 |
| 入居可能日 | |
| 入居予約 | |
| No. | D-3 |
| 間取り | ロフト付1LDK |
| 広さ | LDK11.1帖+洋室2.9帖+ロフト6.1帖 |
| 駐車場 | ガレージ幅5.46m×6.5m(いずれも最大部分) |
| 賃料 | ー |
| その他 | シャッター幅3.0m×高さ2.2m |
| 空き状況 | 入居中 |
| 入居可能日 | |
| 入居予約 |
RECOMMEND
おすすめ物件
